Keresés

Részletes keresés

kiggyo Creative Commons License 2015.02.08 0 0 77370

Puffer:

http://forum.index.hu/Article/showArticle?t=9173884&la=133665967

 

A bal oldali keresővel tudsz topicokra is keresni. Ajálnom még a vegyes tüzelésű kazán, hőszivattyú, falfűtés, napenergia topicocat is.

Előzmény: DCSNZS (77369)
DCSNZS Creative Commons License 2015.02.08 0 0 77369

segits már legyszi,hol ez a puffer topic, mert nemtalálom ,nemlátom sehol.

linkeld mar be legyszives

Előzmény: kiggyo (77368)
kiggyo Creative Commons License 2015.02.08 0 0 77368

Nézz àt a puffer topicba, ott többen is csináltak sk.

Előzmény: DCSNZS (77366)
DCSNZS Creative Commons License 2015.02.08 0 0 77367
Előzmény: pajaci (77355)
DCSNZS Creative Commons License 2015.02.08 0 0 77366

hi

nincs veletlenul egy hocserelo nelkuli puffer-nek egy szerkezeti rajza ,miután letudnám ezt gyártani?

udv

Előzmény: pajaci (77355)
morgen66 Creative Commons License 2015.02.07 0 0 77365

Szerintem az egyik legjobb. Német minőség.

Előzmény: salieri81 (77364)
salieri81 Creative Commons License 2015.02.07 0 0 77364

Nekem sarokszelepek kellenek, az ár még belefér  a keretbe ,mennyire ajánlott(megbízható) ez az oventrop ?

 

Előzmény: morgen66 (77357)
kiggyo Creative Commons License 2015.02.07 0 0 77363

Az biztos hogy annál olcsóbb a fűtőanyag minél kevesebb hozzáadott érték van benne. A pelletet fából (szép fából ráadásul a hamutartalom miatt) csinálják, kilónként 20-30Ft energiabefektetéssel. Olyan a kényelme mint a gáznak. Az apríték az eggyel előtti lépcső, olcsóbb és még automatizálható. Én farönkkel tüzelek mert az a legolcsóbb, cserébe pakolni kell a kazánt, ez van.

Kíváncsi lennék a fagáz kontra normál kazán független mérésére, melyik milyen hatásfokú a valóságban.

Előzmény: ottar (77361)
kormi07 Creative Commons License 2015.02.07 0 0 77362

Hi

 

olyan is van, aki maga csinált

le

Előzmény: DCSNZS (77354)
ottar Creative Commons License 2015.02.07 0 0 77361

Hát én már mindenféle véleményt hallottam a faelgázosítós kazánokról.  Van kollégám aki nagyon elégedett vele,  van aki nem szereti. 

Ha azt el tudom érni,  hogy egy kellő méretű puffert mondjuk  két naponta kell felfűteni,  és adja a meleget jól szabályozva,  akkor örülök.  Az hogy ezt vegyes vagy faelgázosítós csinálja,  a hatékonyság és a be kerülés költség eldönti. Illetve ezért is kérdezek.  :-) 

A pellettől idegenkedem. Egy feldolgozott termék,  aminek az ára és az elérhetősége túl sok tényezőtől függ. 

A fa meg nő.  (nagyon leegyszerűsítve). :-) 

 

Előzmény: kiggyo (77347)
ottar Creative Commons License 2015.02.07 0 0 77360

A mi hazánkból kispórolnám a gázt ha lehet.  

A szünetmentes tápos átutalás szimpatikus gondolat.  

 

Előzmény: morgen66 (77351)
ottar Creative Commons License 2015.02.07 0 0 77359

Két házról van szó! 

 A puffer kérdés  a sógoréknál merült fel,  ott van a tartály. náluk a kényelem,  és az esetleges spórolás miatt kérdés a puffer. 

Nálunk van hőszigetelés,  m ég ha csak 5cm is.  Mi jövőre tervezzük a nagy felújítást - átépítést.  

Beleértve a gépészet cseréjét. 

Előzmény: halaloszto (77343)
kiggyo Creative Commons License 2015.02.07 0 0 77358

Pufert csináltathatsz újat is, de kis odafigyeléssel lehet fillérekért arra alkalmas régi tartályt venni, mindig hirdetnek itt-ott.

Szigetelni rendkívül egyszerű, körbetekered a legolcsóbb tekercses kőzetgyapottal, ha nem akarod hogy poroljon akkor alukasírozottal. Ha a tartály bazi nagy és lóg rajta akkor végén csirkehálóval betekered és stabilan áll rajta.

Nekem így van 20cm szigeteléssel egy 3 m3-es IFA lajtoskocsi tartály felállítva (6mm falvastagság, 10eFt volt).

Előzmény: DCSNZS (77354)
morgen66 Creative Commons License 2015.02.07 0 0 77357
Előzmény: salieri81 (77356)
salieri81 Creative Commons License 2015.02.07 0 0 77356

És gyári 16 -os csőcsatlakozós sarokszelepes?

Nem semmi költség.

Előzmény: morgen66 (77353)
pajaci Creative Commons License 2015.02.07 0 0 77355

igen

igen

 

hi

Előzmény: DCSNZS (77354)
DCSNZS Creative Commons License 2015.02.07 0 0 77354

hi

 

csináltatott már vki puffert?

le lehet ezt ugy szigetelni, ahogy kell?

morgen66 Creative Commons License 2015.02.07 0 0 77353

Jó hozzá.

Komfortosabb ha van termofej.

Kell egy 16/ 1/2" külső menet,  vagy ha igényesebben akarod megcsinálni akkor fali korong és króm bekötőcső.

http://www.elcon.co.hu/termekcs.php?term_id=313

 

vagy

 

http://www.megatherm.hu/1615-350mm-rcd-kromozott-bekotocso-press-konyokkel

 

és még kell hozzá egy eurókonusz csatlakozó

 

http://fittingbolt.hu/index.php?p=parts_detail&cat_id=146

 

csak hogy ne minden egy helyen legyen. :-)

Előzmény: salieri81 (77352)
salieri81 Creative Commons License 2015.02.07 0 0 77352

radiátoros ,kondenzációs kombikazán, 5 rétegű cső.

Érdemes termofejet rakni minden szobába? kivéve ,ahol a termosztát van?

Valamint ehhez kell még egy átalakító is ,ami csatlakozik az 5 rétegű csőhöz.!?

Előzmény: morgen66 (77350)
morgen66 Creative Commons License 2015.02.07 0 0 77351

Azt írtad napkollektort akarsz feltenni,akkor már nem akkora a függőség.

De ha gázzal fűtesz akkor is kell áram.

Vegyesnél is kell áram ,igaz szünetmentessel áthidalható pár óra.

4 m3 tartályt leszigetelni nem kis költség, nézz utána mennyibe lenne leszigetelni,és mennyibe lenne egy új pufi, számolni kell melyik éri meg jobban.

Nagyobb radiátor kell a kondenzációs kazánhoz is,márpedig szeptembertől csak azt tehetsz be az új tervezet szerint.

De ha leszigeteled a lakást lehet betenni hővisszanyerő szellőztetést is,minden csak pénzkérdés.

 

http://helios.hu/?h%C5%91visszanyer%C5%91s-szell%C5%91ztetes,40

Előzmény: ottar (77342)
morgen66 Creative Commons License 2015.02.07 0 0 77350

Érdemes.

Persze nem mindegy milyen fűtési rendszerre kell.

Előzmény: salieri81 (77345)
joevagyok68 Creative Commons License 2015.02.07 0 0 77349

Van 50 négyzetméter pincénk, ha nagyon kell akkor le tudok benne választani tárolóhelyet 20 m3 tűzifának. :) 

 

Az pont jo a tuzifa kivagas/hasogatas utani 3. - 4. evben tarolasahoz !

Az elso kettoben viszont jobb lenne a szabadban tarolni !  

Előzmény: ottar (77341)
joevagyok68 Creative Commons License 2015.02.07 0 0 77348

1. Faelgázosító, vagy vegyeskazán? (Olvasgatva a fórumon az elmúlt pár nap termését, kezdek ez utóbbi felé hajlani.) 

 

Miert is ? Mirol maradtam le....

Előzmény: ottar (77320)
kiggyo Creative Commons License 2015.02.07 0 0 77347

Fagáz kazánnal kapcsolatban beszélj és menj el pár felhasználóhoz hogy mik a tapasztalatai. A kéményseprődet kérdezd meg kinél van a környéken, ő tudja. Anno egy nagyobbat akartak a cégnél, körbejártuk a témát és elég lehangoló tapasztalatokat mondtak a gazdák. Ezért lett végül pellet.

Előzmény: ottar (77341)
kiggyo Creative Commons License 2015.02.07 0 0 77346

Persze mindig szigetelés a legfontosabb. Írta hogy lesz később minden de most így kell beköltözniük és pár évig nem nyúlnak a házhoz, gondolom pénz miatt. Ebből az 1-2 évböl szokott 5-6 lenni. Van vegyikazán, megvan a puffernek való, tipikus pénz nincs anyag és kedv van helyzet.

Így egy kis munkával sokkal komfortosabban tudnák használni ha benne van a pufi, és lehet később sem dobják ki a pufit majd a jővőbeni rendszerből. Pénzbe nem nagyon kerül.

Egy ilyen régi házat nagy melóval lehet AE házzá tenni, padlót, mindent felverni (tudom mert hasonlóval próbálkoztam én is), lehet sosem lesz téma náluk hőszivattyú, stb ..

Előzmény: halaloszto (77343)
salieri81 Creative Commons License 2015.02.07 0 0 77345
joevagyok68 Creative Commons License 2015.02.07 0 0 77344

Azert ez nala nem biztos, hogy igy van !

Van futesrendszere

van vegyeskazanja...a regi idokbol kiindulva biztos nem kisteljesitmenyu

gondolom van kemeny is hozza...

van 'puffernek valoja'..

Csak a 'sallangokat' kell megvennie es van egy pufferes rendszere !

Ha kesobb hoszigetel csak 1xűbb lesz az elete...annyi lesz a valtozas, hogy ritkabban kell begyuttani !

Kesobb meg akar reszenkent is 'ujitgathat'-cserelgethet benne barmit...kazant>faelgazra , holeadot, stb.

Felteve ha van szaraz faja....

Előzmény: halaloszto (77343)
halaloszto Creative Commons License 2015.02.07 0 0 77343

a szigeteletlen hazat mindegy mivel futi, pufferrel vagy anelkul, hoszipkaval vagy faval, elobb utobb rajon hogy muszaj hoszigetelni. es abban a pillanatban ertelmetlenne valik mindaz a beruhazas amit a szigeteletlen haz futhetosegere koltott. ez a helyzet lenyege. 

 

 

Előzmény: kiggyo (77340)
ottar Creative Commons License 2015.02.06 0 0 77342

Köszönöm!

A hőszivattyút sem vetem el teljesen, de ahhoz ugye a padlófűtés lenne célszerűbb, vagy nagy felületű radiátorok. Ugye?

Egyik sem igazán játszik. 

Meg attól kicsit idegenkedem, hogy a fűtésem az áramszolgáltatástól függjön teljes mértékben.. 

De persze körbenézek azért. 

(nem holnap állunk neki bontani.. :))

 

Előzmény: morgen66 (77339)
ottar Creative Commons License 2015.02.06 0 0 77341

Köszönöm!

Van 50 négyzetméter pincénk, ha nagyon kell akkor le tudok benne választani tárolóhelyet 20 m3 tűzifának. :) 

A puffertartályra (ha az olajtartályból csináljuk), mekkora és milyen szigetelés kell? Kózetgyapot? 

 

Előzmény: kiggyo (77340)
kiggyo Creative Commons License 2015.02.06 0 0 77340

A ház egy 70-es évekbeli szigeteletlen ház, ahoz még majdnem kevés is a 4000l puffer, főleg nagy előremenő hőfokot igénylő régi radiátoros rendszerhez. Lehet vagy 20kw höigénye annak a háznak. Vegyikazánhoz érdemes rakni, felhasználható akár az olajtartály is kimosva. Gázhoz tényleg felesleges.

 

Fagáz kazánhoz száraz fa kell, anélkül csak szívás az egész. A száraz fa alatt értem hogy van egy több évnyi kapacitású fedett fatárolód.

 

Előzmény: morgen66 (77339)
morgen66 Creative Commons License 2015.02.06 0 0 77339

1. Puffert érdemes betenni , de a 4m3 az nagyon sok egy ekkora házhoz.

    Gázzal fűteni puffert nem érdemes ,drága lenne.

 

2. Faelgáz szerintem de pénzkérdés.

    De ha már akarsz  napelemet akkor miért nem Hőszivattyúra cseréled az egész fűtésed és Hmv ellátásod,főleg hogy még plusz 

    12 centi szigetelést akarsz.

Nézz át a Hőszivattyús topikba is.

 

Előzmény: ottar (77320)
morgen66 Creative Commons License 2015.02.06 0 0 77338

Minden megoldás jó, te döntesz ami neked szimpatikus.

Ha nem akarod a falakat szétvésetni akkor falon kívül,de ha a padlót felszeded akkor lehet vinni a padlóba is a csöveket.

Falon kívül rézcső ,padlóban ötrétegű cső ajánlott.

De van több lehetőség is. 

Előzmény: szasa6 (77333)
citcat 18-16v Creative Commons License 2015.02.06 0 0 77337

próbálj rá préselni,talán seít.

Előzmény: _kip_ (77336)
_kip_ Creative Commons License 2015.02.06 0 0 77336

Westen Turbo, a cső azt hiszem Henco

 

Előzmény: kiggyo (77329)
nixon70 Creative Commons License 2015.02.06 0 0 77335

A bal oldali a szelep.

Azt tekergesd.

Előzmény: gyuri860213 (77334)
gyuri860213 Creative Commons License 2015.02.06 0 0 77334

Sziasztok.

A fürdőszobai törököző szárítót hogyan tudom szabályozni? amikor csak a szobákat szeretném fűteni akkor is megy a szárító és nagyon meleg van a fürdőben.

ilyen szárítóm van:

Az alsó műanyag kupak alatt van egy imbuszos szelep, azzal tudom állítani?! csak a jobb oldali kupakot vettem le, nem tudom a bal oldali csonkon van-e imbusz!? ha igen mindkettőt csavarjam beljebb!?

Köszi.

szasa6 Creative Commons License 2015.02.06 0 0 77333

Sziasztok!

 

Idén cserés lenne a fűtsünk (konvektor - kondenzációs kazán radiátorral). Pályáztunk az ÉMI-s pályázatban (döntés még ugye nincs).

Az ajánlatban szénacél csövezés van, de az még képlékeny... Mivel érdemes majd csövezni? Van ahol falban vagy a padlóban vezettetném el, hogy ne látszódjon és foglaljon helyet az amúgy is kicsi szobából.

De a nagyobb szobákban mehetne a padló felett a falon is, ott nem zavarna.

Láttam többféle megoldás, de nem tudom melyik lenne az ideális megoldás...

UazosMisi Creative Commons License 2015.02.06 0 0 77332

Üdv! Bár valószínűleg már eldőlt a dolog, nálunk a cégnél megy egy grundfos ups 25 50 es szivattyú, ami 96 os gyártású! 40 fokos víz keringetésére van használva 6 mm es csőben nyomja a vizet, az idomokban jó ha van 5ös furat, a cső hossza kb 3 méter. van hogy hetekig megy éjjel nappal csak hétvégén van kikapcsolva! Csak most jutott eszembe mert most itt dolgozok mellette! Gondoltam megírom hogy biztos legyen a dolog!

Üdv

Tibor

Előzmény: vftsforever (77284)
joevagyok68 Creative Commons License 2015.02.06 0 0 77331

Már talán a vegyesesbe IS kérdezted...tegnap

Ott is leírtam, de leírom még1x, mert lehet nem olvastad...

 

Pufferes topik

keresószó

2T bekötés

vagy

Fűtőkör meleg víz kivét puffer tetejéből

Ilyenkor érdemes olyan puffert venni - de amúgy is - amiben a csonk után belül felfelé , illetve alul lefelé kunkor van !

Előzmény: DCSNZS (77330)
DCSNZS Creative Commons License 2015.02.06 -1 0 77330

sziasztok!

A következő képpen akarom kiépíteni a rendszerem szerintetek meglehet ezt így oldani????

legy egy Viadrus 5 tagú öntvény+Hajdu1000l puffer

 

ha begyujtok először a radiátorokat fűtse, majd ha elérte a fokot átkapcsoljon és fűtse a puffert!

Ha a radiátor lehűl már a tárolt pufferból vegyen.

 

honnan tudja h. 2x a radiátor a pufferről dolgozzon?

hogy működik ez?

 

ődv

kiggyo Creative Commons License 2015.02.06 0 0 77329

mivel fűt, hány fokos vízzel?

Vegyikazánnál láttam már forralás után ilyet sajnos, nem bírja a cső.

Előzmény: _kip_ (77328)
_kip_ Creative Commons License 2015.02.06 0 0 77328

Üdv Urak!

 

Anyósomnála fűtési rendszer ötrétegű csővel + radiátor lett kialakítva.

Polgári ház, jó hosszú (5-7-8m) egyenes szakaszokkal, Alpex press idommal.

A jelenség az, hogy a hosszú szakaszok T leágazásoknál minha "kicsúszott" volna a cső "könnyezni" kezdtek az idom pereménél a csatlakozások.

 

A hőtágulás kihúzta a csövet, vagy mi történt?

Rápréselés segíthet,vagy idom csere? Mert akkor cső is rövid és plussz oldók stb :-(

 

Zöldár Creative Commons License 2015.02.06 0 0 77327

Köszönöm.

 

Akkor van még kettő évem a projektig !

Előzmény: kiggyo (77326)
kiggyo Creative Commons License 2015.02.06 0 0 77326

Gyári, hitelesített mérőket kapsz 40eFt körül, teljesen jól működik.

 

Googlizz rá, van több webshop is aki árulja. Be kell kötni a visszatérő csőbe mint egy vízórát, az előremenőbe egy hőmérő szenzort és 10 évig működik gond nélkül.

Előzmény: Zöldár (77325)
Zöldár Creative Commons License 2015.02.06 0 0 77325

Sziasztok !

 

Érdeklődnék hogy a hőmennyiség mérés mennyire objektív és mennyire költséges ?

 Az eset  : van egy lakás , jelenleg kazáncsere előtt. Nyilván kondenzációs a jó megoldás, de ha már lúd , akkor ... tehát a szomszéd lakás is erről lenne fűtve. Az átadott hőmennyiséget viszont mérni kell,  másképpen nem bót !

 

 Víz és villany almérőknél kitűnően működik.

 Persze végül lehet terület alapon is elszámolni, de az nem az igazi.

digium Creative Commons License 2015.02.05 0 0 77324

Nagyon köszönöm mindenkinek a választ!

 

Ezek szerint kb. 850.000 Ft +-150.000 Ft lenne hőleadó nélkül egy kondis kazán ára telepítéssel együtt nálunk.

Előzmény: citcat 18-16v (77318)
kiggyo Creative Commons License 2015.02.05 0 0 77323

Te már tanulhatsz más hibáiból,pl az enyémből. Nem volt az rossz elsőre sem, de méregetős, számolós maximalista típus vagyok.

Ha nyitott rendszered van akkor a forralás ügyet megúszod gond nélkül. Gravitál az egyébként egymás mellett is, csak magas puffer kell és egy kis felszállóág. Maga a kazán is bejátszik felszállóágként, van ott felhajtóerő. Ha csövezel, föleg ha egymás mellett van a kettő nem nagy plusz a vastagabb cső.

Zártnál is működnie kell, ott a megfelelően méretezett tágulásira figyelj meg a NAGY keresztmetű biztonsági szelepre. Sok gőzt tud fejleszteni 30-40kw. 

 

A napkoli cser kft féle alumínium höelnyelő, doboz nélkül kértem mert a szarufák között van egy plexi alatt. Fagyállóval töltve  szivattyú tolja a puffer hőcserélőjébe. 4 db 50-60 fokon tartja a 3000l vizemet egész nyáron.

 

Ha a pufi vizét akarod direktben felkergetni akkor hőcserélő sem kell, tudsz drain-back rendszert csinálni,de ahoz réz abszorber ajánlott.

A napenergiás topicban régebben sokáig volt téma, less bele.

 

Előzmény: csubar86 (77322)
csubar86 Creative Commons License 2015.02.05 0 0 77322

Szép alkotás, gratulálok! Bár olvasom, hogy sokadik próbálkozásra lett ilyen, ezek után nem remélem, hogy elsőre sikerül a jó és optimális rendszert eltalálnom, s ezek szerint kb. egy szezon tuti rá fog menni, mire mindent bejátszok. :D

 

Okos ötlet a kazán kihelyezése, így tényleg csak egyszer kell bepakolni, s onnan már csak közvetlenül a tűzre megy a fa. Így mondjuk ahogy számolom, 60-70 liter víz van a csöveidben a kazán és a puffer között, tehát itt járható a gravitációs megoldás, mert van bőven víz, nálam sajnos a kettő egymás mellett lesz, így ezért vetettem el ezt a megoldást, pedig ez lenne a legjobb.

 

A napkollektorhoz lenne kérdésem:

- milyen tájolású tetőre tetted fel őket (gondolom a tető maga hagyományos sátortető),

- illetve mit takar az hőfokban, hogy melegen tartja a puffert,

- továbbá ha csak a hőelnyelőt vetted meg, akkor ezenkívül mit csináltál még vele, hogy fel tudd szerelni a tetőre?

 

Ezzel elgondolkodtattál, lehet, hogy megérné egy-két napkollektort feltenni, hogy a puffert melegítse, s így be tudna segíteni a HMV-be nyáron (de még a kisegítés is megtérülő lehet, ha 3*1,2 kW-s fűtőszál lesz a tárolóban).

 

Előzmény: kiggyo (77300)
Alapi42 Creative Commons License 2015.02.05 0 0 77321

 Tegyél félre másfél millát. Ha szerencsés vagy nem léped túl !

Előzmény: digium (77316)
ottar Creative Commons License 2015.02.05 0 0 77320

Sziasztok!

Véleményeteket szeretném kérni, 2 ügyben. 

1. Sógoromék most vesznek-vettek egy házat. Jó állapotú, a hetvenes években épült, durván 100 nm, plusz alagsor. jelenleg hőszigetelés nélküli. (hosszabb távon nyilván egy nyílászárócsere és hőszigetelés is be van tervezve, egyelőre így kell beköltözniük). Vastagcsöves radiátoros (radal ha jól emlékszem) nyílt rendszer van náluk. Van a pincében egy álló gázkazán, és egy vegyestüzelésű kazán. Mindkettő jó állapotban (az egész házat azt alku előtt átnézettük egy szakemberrel). Utóbbihoz a régi idők emlékeként egy hatalmas (saccra 4 m3) olajtartály, meg megvan az olajégő fej is..  A kérdésem: Lenne értelme annak, hogy (figyelembe véve, hogy néhány évig valószínűleg nem nyúlnak a házhoz) beszereltessünk egy puffert, amit a vegyestüzelésűvel (esetleg a gázzal) fel lehet fűteni, és arról menne a fűtés? (Most eszembe jut, hogy vad ötlet lenne a már meglévő olajtartályt átalakítani pufferré?) 

 

2. ez már saját. Szitu: Szintén hetvenes években épült ház, 93 nm, plusz 50 nm pince, B38 porotherm, jelenleg van rajta 5 cm eps (előző tulaj rakatta rá).

Van a pincében egy parapetes fég fali kazán, meg egy kissé lelakott vegyes kazán. A terveink: Valószínűleg tetőtér beépítés (nem teljesen, maradna pakolópadlás is), plusz a jelenlegi teraszt is beépítenénk. Ezzel a lakóterület összesen durván olyan 150 nm-re nőne. Ezzel együtt kapna a ház még hőszigetelést (én plusz 12 cm grafitosra gondoltam) és komoly nyílászárókat a mostani belső redőnytokos ablakok helyett, és ennek megfelelően a tetőtér rendesen szigetelve. 

Én az átépítésnél mindenképpen szeretnék napelemes rendszert a tetőre. Jó adottságú, déli tetősík van, áramot meg eszünk elég sokat (474 kW a legutóbbi fogyasztás, és ez nem lesz kevesebb...) Gondolom ez releváns info. 

Namost a kérdés a fűtés, és a melegvízellátás. A Fég fali kazán szerintem mindenképpen megy a kukába (a vegyes is). A gázvezeték óra utáni részét mindenképpen át kell alakítani, a beépítésnek útban lenne. Nagyon ostobán vezették, a ház udvar-terasz felőli oldalát ékteleníti. A másik oldalon sokkal egyszerűbb lett volna elvinni, és ugyanúgy a pincébe jutna... A meglévő kémény jó helyen van ahhoz, hogy a nappaliba egy kisebb esztétikus kandallókályha legyen, ami adott esetben akár áramtól, és mindentől függetlenül a nappalit-étkezőt egy picit melengetni tudja, meg még szép is. A meglévő kéméyn bontéséval és a helyére egy dupla hőszigetelt kémény építésével meg lehetne oldani a pincébe a kazán telepítését is. A fűtés, HMV rendszerrel kapcsolatban elvárás, hogy gazdaságos, egyszerű nem túl nagy bekerülési költségű legyen, és ha valami környezetbarát megoldást találunk az még jobb. Ami még sarokpont: Padlófűtést nagyon költséges lenne utólag a házba hekkelni, a radiátorossal ki vagyunk békülve.  És itt jönnek a kérdések: 

1. Faelgázosító, vagy vegyeskazán? (Olvasgatva a fórumon az elmúlt pár nap termését, kezdek ez utóbbi felé hajlani.) Pelletfűtést nem szeretnék. 

2. Esetleg érdemes a gázt teljesen  megszüntetni, és az így megspórolt költség egésze vagy egy része (új gázkazán ára, tervezés-engedélyeztetés költsége, kivitelezés, szerelvények-szelepek, plusz kémény) menjen bele a napelem bővítésébe, és temperáló fűtésre menjen egy elektromos fűtési lehetőség a pufferbe (nem vagyunk otthon hosszabb ideig, stb.)? 

HMV-t fenti kondíciók mellett mivel érdemes gyártani? Villanybojler, oszt jónapot :-)? Vagy kollektor? 

 

Bocsánat ha hosszú voltam, ezt a témát szeretném jól körbejárni, mert elég nagy tétel az építkezésnél.... 

Előre is köszönöm...

 

 

 

pajaci Creative Commons License 2015.02.05 0 0 77319

A kazán meg az egyéb cuccok (termosztát kémény) árát megtalálod a neten, add össze. Tervezés 30-40, szerelők pesten 100alatt egy kapavágást se csinálnak, az inkább 150körül lesz. A gázszolgáltatód meg elmondja neked az órára és a rájuk tartozó díjakra vonatkozó összeget.

Előzmény: digium (77316)
citcat 18-16v Creative Commons License 2015.02.05 0 0 77318

Ez nagyban függ attól hogy a telken belül lévő fővezetéken van -e szakaszolás mert ha nincs akkor  ahány fogyasztó van azt  azt mind le kell szerelni a gáz meo miatt( a gázórákat) és azt neked kell kicsengetned, és még várhatóan atöbbi lakó meg fog lincselni mert ha náluk valami szabálytalanul van kötve akkor nekik nem kötnek vissza amíg azt meg nem csinálják.

 Szerintem kb3-4000,000Ft biztos kell hozzá,így látatlanban nem lehet kitalálni mert nagyon sok és költséges dolog van ami vagy kell vagy nem.

Érdemes kiszámolni hogy megéri-e azt a gázt bekötni mert lehet hogy egy jó pellet kandallóval vagy  vegyes kazánnal, jobban járnál.

Előzmény: digium (77316)
digium Creative Commons License 2015.02.04 0 0 77317

Bocs, helyszínt nem mondtam: Budapest XI...

Előzmény: digium (77316)
digium Creative Commons License 2015.02.04 0 0 77316

Segítsetek légyszíves, a családom szeretné megtudni, hogy körülbelül mibe kerülne bekötni egy házunkba a gázt. Nincs pofám kihívni valakit úgy, hogy szinte biztosan nem rendelném meg a munkát...

Főbb paraméterek:

- A gáz bent van a telken, de ebben a házba nincs bekötve, mellette pont 3 méterre megy a földben a telken lévő másik épülethez a méretlen gázvezeték (gázterven Ng 32 PE jelöléssel).

- Közmű-hozzájárulás jó régen befizetve.

- Kellene külön gázóra erre az épületre, ha lehet akkor a külső házfalra, mely pont a telki csőhöz legközelebbi oldalon lenne, és szinte egyből a fal mögött lenne a cirkó. Összesen kb. 5-5,5 méter csövezés a méretlen csőtől a mérőn át a cirkóig. 

- Csak egy kondis kombi kazán lenne rajta.

- Mindent hivatalosan szeretnénk.

 

Gázterv: ?

Gázbekötés: ?

Gázóra: ?

Kéményseprők: ?

Ariston kombi 24kW + sensys + kémény + felszerelés + beüzemelés: 450e ?

Amennyiben lehagytam valamit szóljatok.

 

A hőleadó oldal költségei most ez ügyben nem érdekelnek.

Nem kellenek pontos árak +- 20%-al már elégedett lennék.

 

Nagyon köszönöm

morgen66 Creative Commons License 2015.02.04 0 0 77315

Ezt a helyszínen lehet pontosan megmondani.

Írj mail-t.

Előzmény: Catman (77278)
morgen66 Creative Commons License 2015.02.04 0 0 77314

Hol lenne a csere?

Előzmény: Bertrand de Beaufourt (77299)
tubi0019 Creative Commons License 2015.02.04 0 0 77313

kösy az infókat

 

Előzmény: pajaci (77312)
pajaci Creative Commons License 2015.02.04 0 0 77312

Ha hivatalosan csinálod, akkor a tervező megmondja hova lehet. Ha feketén, akkor meg oda teszed ahova jólesik.

Előzmény: tubi0019 (77311)
tubi0019 Creative Commons License 2015.02.04 0 0 77311

még egy kérdés.a vegyes kazán mellé be lehet rakni?mert arra is gondoltam hogy építek neki egy külön kis rész a teraszon egy kb. 2 négyzetméteres helyet amit a hideg kicsit érni fog mert nyitott a terasz. de ez a kazán csak ősszel tavasszal és ha elfogy a fa akkor lesz üzemeltetve.

Előzmény: pajaci (77310)
pajaci Creative Commons License 2015.02.04 0 0 77310

Mind a két kazán előremenőjére teszel egy visszacsapó szelet, utána kötöd össze őket.

Előzmény: tubi0019 (77309)
tubi0019 Creative Commons License 2015.02.04 0 0 77309
Sziasztok olyan kérdésem volna hogy falikazánt rá lehet e kötni a rendszerre úgy hogy a kazántól ami megy be a lakásba előremenő és visszatérő csőre közvetlenül egy T vel oldanánk meg. Vagy pedig kellene oda egy
Váltószelep ami a melegvizet érzékeli és kinyitja arra a körre.csak azért kérdezem mert nem tudom hogy mennyire befolyásolja a vegyes kazán szivattyúját.
mucden Creative Commons License 2015.02.04 0 0 77308

Sziasztok!

 

Van egy Junkers Cereclass ZW24-2 DHAE... kombikazánom. Januárban letiltott presszosztát hibával. Mint kiderült a ventillátor nem kapcsolt be, mivel tönkrement a vezérlőpanelen a ventillátort kapcsoló relé. A relé cserélve lett, azóta ebből a szempontból jól működik a kazán.

Viszont előjött egy sokkal rejtélyesebb hiba:

A kazán gyakran "kiakad". Ilyenkor a kijelzőn a HMV beállított értéke villog ill. egy csap ikon jelzi, hogy HMV gyártás van folymatban. A kijelző pont így működik egyébként, amikor melegvíz vételezés történik, de a HMV NTC szerint még nem érte el a víz a kívánt hőmérsékletet. Vízmelegítés nincs (természetesen melegvizet sem engedek sehol), csak a keringető szivattyú megy (meg talán a ventillátor). Ebből a kikadt állapotból több féleképp lehet újra üzembe helyezni:

  1. kikapcs, bekapcs
  2. sokat kell várni (több órát)
  3. melegvíz megnyitása, elzárása

A kikadt állapotot nem sikerült még stabilan reprodukálni. Gyakran sikerül előhozni, ha a melegvizet hirtelen kinyitom, majd elzárom.

A 3. elhárítási mód miatt az áramlásérzékelő hibájára tippeltem, ezért egy kiakadt állapot közben oldottam az áramlásérzékelő csatlakozóját. Nem történt semmi. Az elektronika felőli csatlakozót rövidre zártam, szimulálva az áramláskapcsolót. De így sem történt semmi. Lecsatlakoztatott áramláskapcsoló mellett megnyitottam a melegvizet és némi folyatás után a kazán újra üzemképes lett. Ezekből arra következtetek, hogy az áramláskapcsoló mégis jó, a 2. és 3. módszer azért eredményezett javulást, mert a HMV NTC egy adott hőmérséklet alá csökkent.

 

A kiakadás ok-okozati viszonyát sajnos még nem tudtam kiokumulálni, ebben kérnék segítséget.

Találomra nem állnék neki panelt, alkatrészeket cserélni.

 

kiggyo Creative Commons License 2015.02.04 0 1 77307

jövőre lesz arról is adatom. 

Most a következőket mérem a pufferből kifelé:

- HMV kör

- fűtés kör

- napelem kör

 

Továbbá mérem a fa mennyiségét, ebből tudok tippelni a jövőre nézve.

Azt akarom megtudni hogy hány Ft/MJ összegért fűtök fával, erre ez a mérés kell. Hiszen hőszivattyú esetén nem a puffert, hanem közvetlenül a fűtéskört fűteném, azt, amit most mérek hőmennyiségmérővel,nem lenne érdekes a puffer vesztesége A hőszivattyús kollégáktól akarok majd VALÓS mérési adatokat kérni, hogy adott rendszer mennyi áramból mennyi MJ-t csinált adott hónapokban, ezzel meg bírom tippelni hogy érdemes-e hőszivattyúra váltani.

 

Ebből egy rendszerhatásfokot tudok mérni, azaz benne lesz az összes veszteség:

- amit a kazán a kéményen kitol

- a kazánházba leadott hőmennyiség

- a csőrendszer vesztesége a pufferig (szigetelt 2" cső)

- a puffer külső burkolatának hővesztesége, ami egyébként a garázst fűti

 

A kazánkörre lenne jó hőmennyiségmérőt tenni még, de a gravitációs áramlás miatt nehézkes, 2" kellene.

 

Amúgy a két begyújtási üzemmód közötti különbség:

1, ezt csinálom most:

- 2 naponta a kihűlt kazánt telepakolom fával (30-40kg), begyújtom

- a kazán nyitott huzatszabályozóval bemelegszik, majd 70-80fok körülre szépen beáll amikor elindul az áramlás, a huzatszabályozó résnyire nyitva ilyenkor. A kémény ilyenkor akár 150-200fokos is szokott lenni (azt is mérem).

- maximum egyszer rakok még rá, a puffer felmelegszik, nem rakok rá többet, a tűz kialszik, az áramlás leáll

- a kazánban lévő 150l meleg víz kárba vész

 

Ilyenkor rövid ideig (néhány óra) megy 2 naponta a kazán, nagy füstgázveszteséggel, és a 150l langyos víz kárba vész. 

 

2, ezt próbáltam egyszer, kicsit macerásabb:

- folyamatosan pakolom a kazánt, nagy rönkökkel, amik nem égnek hanem parazsolnak

- pici huzat, és nem füstöl mivel a kazán már átmelegedett

- langyos kéménycső, meg lehet fogni

 

Ilyenkor kisebb a hőveszteség a kéményen, viszont folyamatosan. A kazántest, csővezeték hővesztesége is folyamatos. Talán jobb hatásfokkal ég a tűz, egyátalán nincs füstje.

 

Érzésre a 2. esetben mintha kevesebb fa fogyna, a logika szerint viszont az 1. esetnek kellene jobbnak lennie.

No ez egy jövőbeni mérés lesz.

 

Előzmény: ..pözsó.. (77305)
Bertrand de Beaufourt Creative Commons License 2015.02.04 0 0 77306

írtam az infokukacra

Előzmény: KSZD (77304)
..pözsó.. Creative Commons License 2015.02.04 0 0 77305

Szia kiggyo!

 

Nagyon jó a rendszered! Kíváncsi lennék a hőmennyiségmérőd adataira, amikor a lefojtott levegővel fűtesz, és a normál "nagylángos"-sal összehasonlítva.

 

Köszi: Pali

Előzmény: kiggyo (77300)
KSZD Creative Commons License 2015.02.04 0 0 77304

Szia !

Egyértelmű volt az első hozzászólásból. Van ilyen lehetőség is.

 

Előzmény: Bertrand de Beaufourt (77303)
Bertrand de Beaufourt Creative Commons License 2015.02.04 0 0 77303

Szia,

 

köszi szépen, de azt hiszem, nem volt elég érthető: nekem olyasvalaki kellene (mérnöki iroda? nem tudom), aki a kazáncserét és a kéménymunkákat egyszerre megtervezi, esetleg ki is vitelezi.

Előzmény: KSZD (77302)
KSZD Creative Commons License 2015.02.04 0 0 77302

Üdv Bertrand!

 

Szívesen segítek.

Info az adatlapomon.

 

Előzmény: Bertrand de Beaufourt (77299)
joevagyok68 Creative Commons License 2015.02.04 0 0 77301

Nincs még egy ilyen ifa tartályod talonban ?  :-)

Most, hogy még kapott + hőszigetelést a ház, sokkal többet kibír az 1000-es puffer !

AZ előző napi begyúttásból tegnap este hétkor még 75 fokos volt a puffer felső 1/4-e.

Így csak egy fél-3/4 adagot tudtam ellőni a kazánban .

Bővíteni/cserélni kéne...

DE ha már csere, akkor jó lenne hőcserélősre csinálni, mint nálad !

 

Előzmény: kiggyo (77300)
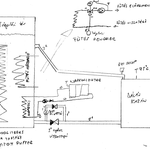
kiggyo Creative Commons License 2015.02.04 0 1 77300

Ígéretemnek megfelelően csináltam egy skiccet, CAD-ben is meg akarom egyszer végre rajzolni csak sosincs időm.

 

Röviden összefoglalva a rendszert és a tervezési szempontokat, amiből kifolyólag a sokadik kísérletezés után egyre csak egyszerűbb és megbízhatóbb lett a rendszer. Nem rajzoltam fel a tárgy szempontjából lényegtelen, az állandó kísérletezés, mérés eszközeit (hőmennyiségmérők, stb).

 

Szóval a szempontok:

A fatüzelés olcsóságát akartam a gáz kényelmével ötvözni. Egyértelműen a puffer a legfontosabb része, minél nagyobb legyen. A fatüzelés nem kényelmes ha kis kazánod van mert állandóan szaladgálhatsz rárakni. Nagy tűzterű kazán kell. Ha már nagy tűztér, akkor nagy teljesítmény, ez jó, mivel a puffert gyorsan felfűti, a ház pillanatnyi hőigénye itt lényegtelen. Ha már nagy tűztér akkor lehessen olcsón, méteres rönkfával tüzelni, ez is adott, sőt akár bálával is ha később az tudok olcsón szerezni (kipróbáltam, rohadt koszolós dolog, de működik).

Nem akartam a fát cipelni a kazánig, és koszolni vele meg a hamuval, ezért a kazán menjen minél messzebb. A kazánházat kiraktam a melléképület végébe, közvetlen a fatároló mellé, ahová tető alá befér egy kamion fa, ekkora tételben olcsó venni, és évekig száradhat is. A lerakodás után többször nem kell megfogni a fát, nem kell hasogatni, csak rádobni a mellette lévő kazánra. A kosz is távol marad.

 

A puffer bekerült 15m-rrel arrébb lévő garázsba, ami a lakótér szomszédja. A hulladékhője a garázst fűti, nem vész kárba.

A gravitációs ás nyitott puffertartály rendszer miértjét már előzőleg leírtam, nem ragoznám, begyújtok és áram nélkül is felfűti rétegesen a puffert.

 

HMV:

A HMV hőcserélő (25m 18mm rézcső) a pufi aljától a tetejéig meg, lent ritka, fent sűrűbb menetosztással. A keverőszelep KELL rá, mivel 90C puffernél leforráznád magad. Később került rá cirkulációs szivattyú is.

Fűtési idényben fából, azon kívül napkoliból van meleg víz. Van sorban rajta egy átfolyós fűtőpatron is, évente 2x kell, amikor lusta vagyok csak a HMV miatt begyújtani mert fűteni nem kell.

 

A fűtés hőcserélő (25m 18mm rézcső) egy zárt rendszerű, 2 bar nyomású fal és padlófűtés rendszert lát el, motoros keverőszeleppel és egy szem 25-60 Grundfos Alpha szivattyúval. A termosztatikus keverőszelep (ESBE 327) nem vált be ide, túl pontatlan volt, nagy fojtása volt és érződött a hőingadozás. A motoros tökéletesen működik. Időjáráskövető szabályozásra is van lehetőség, de nincs rá egyelőre szükség, közel állandó 23-25 fok előremenővel elvagyok.

 

A napkoli 4 tábla CSer-féle alu hőelnyelő, fagyálóval feltöltve, tavasztól-őszig melegen tartja a puffert.

 

A rendszert én kihoztam kényelmesen egy gázos fűtésrendszer árából, mivel a gázterv, kémény, kazán közel 1MFt lett volna anno.

Ha kereskedelmi forgalomban veszünk mindent akkor sem vészes a bekerülés, és a kényelem tökéletes. 2 naponta elég begyújtani. Olyat is próbáltam hogy folyamatosan pakolom (naponta reggel és este), és lefojtom a levegőjét, így folyamatosan parázslik a rönk, úgy is jó hatásfokkal égette a fát és nem füstölt. 

 

Idén bekerültek hőmennyiségmérők, gyűjtöm az adatokat mennyi fából hány kwh meleget csinálok, azaz lesz egy komplett rendszerhatásfok mérésem is.

 

Tudom nem álalánosan elterjedt a megoldásom, viszont ha rendszerben gondolkodsz, és nem toldod-foldod a gépészetedet akkor lehet olcsón hatékonyat csinálni, csak minden szempontot át kell gondolni. 3-4 évig tervezgettem a házam gépészetét, eljártam megnézni másnál mi van, és úgy alakult ki a végleges koncepció.

Az ismerettségi köreimben sokan estek bele abba a hibába, hogy spórolás miatt indítottak egy gáz+radiátor rendszerrel, majd pár év múlva kezdtek el eszelni hogy de jó lenne ez-az. No utólag már a hozzátoldott rendszerrel együtt van egy drágább és rosszabb öszvér valamijük.

A fal és padlófűtés is azért lett, mert biztos vagyok benne hogy 5-10 év múlva filléres termék lesz a hőszivattyú, és azzal is tudok majd fűteni.

 

Bertrand de Beaufourt Creative Commons License 2015.02.04 0 0 77299

Sziasztok,

 

csereérett lett 20 éves Ocean kombi cirko kazánunk, és mivel a nyílászárók is cserélve lettek, már nem bízom a rosszul záródó (jól szellőző) lakásban. Viszont ez magával rántja a kéménybélelést is (amúgy is ráfér) Van egy kb 8-10 m-es kémény, mellette egy szellőző, amibe sajnos nem lehet másik csövet húzni, mert közös a felső lakóval. Hívtam pár kéményest, egyesek azt mondták, hogy nem oldható meg csőben cső (koaxiális?), kell külön bejövő ág (ekkor át kell húzni a csövet a fél lakáson) mások szerint megoldható. Ha megoldható, akkor egyesek szerint viszont olyan kazánt kell vásárolni, amelyik ki tudja nyomni ezen a 10 méteren az égésterméket (vagy beszívni a levegőt?), tehát vegyek kondenzációst. Ahogy olvastam, a kondenzációs kazán nem minden esetben jó, hozzá kell tervezni a fűtést (80 m2 a lakás), azt meg nem tervezem hozzátervezni. Beszéltem kazánossal, a legtöbb vonogatta a vállát, hogy mondjam meg milyen kazánt hozzon, és ő olyat hoz. Gázsszerelés árajánlatokban ijesztő szórás volt, volt, aki egy 200e-es kazánhoz adott 250e forint szerelési díjat, az egyik kéményes azt mondta, hogy ez max 50e forint.

 

Nem abban szeretnék egy kis segítséget kérni, hogy itt ez megfejtődjön, hanem hogy kihez fordulhatok, aki az egész izét egyben kezeli, egyben ad ajánlatot, és ki is vitelezi. Én ehhez nem értek, és a google sem segített túl sokat, szóval ha tudnátok pár fogódzkodót adni, azt megköszönném.

 

murray Creative Commons License 2015.02.04 0 0 77298

üdv, fűtéskorszerűsítés miatt (cirko) elszivó kell a gáztüzhely fölé . a gázterv típust nem ír, külső fali kivezetéses legyen és kész.

erre gondoltam:

 

http://www.edigital.hu/Hagyomanyos-elszivo/Mora-OP510X-paraelszivo-p365986.html

 

jó ez? a főgáz elfogadja?

köszi

 

pajaci Creative Commons License 2015.02.04 0 0 77297

Nem ég le soha, feltéve ha grundfost veszel. 6-7 ezer használtan.

Előzmény: vftsforever (77293)
Catman Creative Commons License 2015.02.04 0 0 77296

Sziasztok, a lentivel kapcsolatban tud valaki segíteni?

 

Illetve közben még eszembe jutott még egy, a WC-t és a tartályt is vissza kellene még szerelni csempézés után.

Előzmény: Catman (77278)
pajaci Creative Commons License 2015.02.04 0 0 77295

Kétcsöves gőzvezetékest csináltál? Nekem olyan van.

Előzmény: kiggyo (77292)
halaloszto Creative Commons License 2015.02.04 0 0 77294

szerezz parezerert egyet tartaleknak a polcra a meglevo melle. aztan hajra. nem kockaztatsz sokat.

 

Vajk

Előzmény: vftsforever (77293)
vftsforever Creative Commons License 2015.02.04 0 0 77293

napi 12orat siman dog menni ha van munka, qlkor folyamatosan mennie,kell:-/ Mindenki mast mond, van aki szerint leeg, vam aki szerint semmi baj nek lesz!

Előzmény: halaloszto (77285)
kiggyo Creative Commons License 2015.02.03 0 0 77292

Igen, szivattyú gond volt. Lehet ez áramszünet, leverődő fi relé is, számolni kell vele. A lefúvószelep is csak a gőzrobbanástól véd meg. Erre egyedüli megnyugtató megoldásként az átöblítős dupla honeywell szelepet találtam anno, ahoz hálózati víz és lefolyó kell csak. Aztán maradtam a nyitottnál. 

Amúgy azt is sikerült már felforralni, de gőzölgött egy kicsit és annyi.

Előzmény: csubar86 (77291)
csubar86 Creative Commons License 2015.02.03 0 0 77291

Örülök a tapasztalataidnak, mármint hogy leírtad őket. De a végeredményben, ha jól olvasom, mindkétszer a szivattyúval volt a problémád (egyszer nem kapcsoltad be, egyszer leállt), nem?

Előzmény: kiggyo (77287)
csubar86 Creative Commons License 2015.02.03 0 0 77290

Értem, bár azért gondolom kisebb a diffúzió a betonban. Hát nálunk azért kicsit kisebb lesz a rendszer, csupán 200 m2-ről van szó :D

Előzmény: kiggyo (77288)
csubar86 Creative Commons License 2015.02.03 0 0 77289

Hm, ötletes megoldás :) ;)

Előzmény: kiggyo (77286)
kiggyo Creative Commons License 2015.02.03 0 0 77288

Diffúzió:

Sajna a beton alatt is működik. Ha van sok vas és diff. mentes műanyag cső a rendszerben előbb-utóbb ruskósodik, kimosással, inhibitorral azonban menthető. Csak ugye bazisok inhibitor kell ha a pufiban is az a víz van.

Nálunk 6 év alatt szart be a halott, mondjuk az nagy rendszer, 2x400m2 alapterület.

 

Előzmény: csubar86 (77263)
kiggyo Creative Commons License 2015.02.03 0 0 77287

Nem akarlak győzködni, csak a saját tapasztalataimat leírom ez ügyben.

 

Kitaláltam (tuk) annó, hogy elég lesz a 32-es 5 rétegű cső a kazán és a pufi közé, mert az még nyomást is bír 95 fokon, itt meg nincs is nyomás.

Van keringető, huzatszabályozó, lefúvószelep, mi gond lehet.

 

2 eset volt egy éven belül. 

 

1, én hülyeségemből nem ment a keringető, akkor kaptam észbe amikor már rotyogott  a kazán. Bekapcsoltam a keringetőt, és SEMMI hatása sem volt, mivel a kazán mindkét csövén fújta vissza a vizet/gőzt a puffer felé, nem tudott ellene dolgozni a keringető harmatos nyomása. Kinyitottam a kazánt, lelocsoltam a fát, kialudt a tűz, MEGÚSZTAM. Velem aztán nem történik többet ilyen.

 

2, Megállt a keringető magától. A kazán éppen előtte lett jól megpakolva, mert a puffer kérte a meleget. Reggel megpakoltam, elmentem dolgozni.

Délután hazaértem, sok-sok víz ömlött az udvarra a kazánházból.

Ami történt:

- a keringés leállt

- a huzatszabályozó lezárt, de a fa parazsolt tovább

- a biztonsági szelepen és a két csövön visszafújta a vizet a pufferbe

- még melegebb lett a kazán

- elolvadta gumicső a kazánon amin keresztül az ajtóba ment a víz (nagy, bálás kazán, ajtóban is van víz)

- a csövön szépen elfolyt a 3m3 puffervizem

- a kazán parazsolt tovább, és víz híján felmelegedett. Annyira, hogy leégett a KÜLSŐ burkolatáról a festék, elolvadt a huzatszabályozó, a hőmérő óra rajta, és kinyílt az ajtaja a hőtáguláskor

- amikor beléptem nyitott ajtó mellett éget benne a fa, és a külsején a festék.

- a műanyag 5 rétegű csőnek kampó lett a gőztől

 

Mivel lemezkazán (6mm fallal) egy kis hőkezeléssel, vetemedéssel megúszta, és 5 évvel rövidült az élete.

 

A házam NEM ÉGETT le, kizárólag a szerencsének köszönhetően.

 

No ekkor döntöttem úgy hogy nem szórakozok tovább, hülyebiztos kell. 

 

Előzmény: csubar86 (77263)
kiggyo Creative Commons License 2015.02.03 0 0 77286

Amikor én csináltam bazi drága volt egy gyári tartály, a magnet csinált elérhetőbb áron, mostmár azért vannak olcsók úgy látom. Én is a gyártásban gondolkodtam anno, ott nagyon nem mindegy hogy milyen anyagból kell csinálni, kell-e nyomásállónak lennie. 

Ha elárulom végül mi és mennyiért lett akkor lehet csuklani fognak a szüleim :-)

Vettem 10eFt-ért egy 4m3 körüli IFA lajtoskocsi tartályt, azt az ovális fekvőt amivel vitték a vizet locsolgatni.

6mm-es falvastagság, örök élet.

Azt állítottam fel a sarokban, abból lett pufferem, ebbe tekertem bele a hőcserélőket. Az ismerettségi körben mindenki talált végül valami puffernek alkalmas tartályt.

Nyilván nem gyári, de kis odafigyeléssel mindig vannak a használtpiacon.

Előzmény: csubar86 (77265)
halaloszto Creative Commons License 2015.02.03 0 0 77285

szerintem igen. egy futesben is van olyan uzemallapot, amikor baromira le van fojtva. tizenorakat meg nem fog egyfolytaban menni.

 

Vajk

Előzmény: vftsforever (77284)
vftsforever Creative Commons License 2015.02.03 0 0 77284

azert ragaszkodom a keringeto szivattyuhoz. Mert az van nekem, es az megbízható es csendes is. Bocsánat ha nem egyertelmuen irtam, telefonról,vagyok,sajna. Szoval ha a keringetot leszukitem akkor bypass szelep nelkul is tenni fogja a dolgat boven? Mint mondtam, 5mm a csővezeték amin megy

Előzmény: halaloszto (77219)
csubar86 Creative Commons License 2015.02.03 0 0 77283

Hm, akkor már ezért megérte elkezdeni itt beszélgetni erről a dolgokról. Bevallom nagyon szenvedtem a puffertartályok keresésével az interneten, mivel a legtöbb találat a Google-ban mindenféle idióta reklámoldal volt, s nagy nehezen találtam párat, s egyenlőre így lett egy Hajdú puffer kiválasztva jobb híján. De erre a babótira rákerestem, s jónak tűnik, minőségét tekintve milyen, van valakinek tapasztalata? Ami leginkább jónak ígérkezik, hogy nálam az alapterülete a tartálynak kötve van, viszont magasságával lehet játszani, s egy egyedileg gyártott tartály lehet, hogy nagyobb lehet ezáltal, többet tárolhat, mint egy szériagyártmány. Továbbá, ha ennyivel kedvezőbb az ára, akkor lehet, hogy nem spórolom ki a hőcserélőket, s így a későbbi bővítéseket se zárom ki (pl. gázkazán, kollektor stb).

 

Tágulásit is gyártanának? Mondjuk azzal kiegyezek veled, én is hasonló, 60-70e Ft-os kategóriában találtam tágulásikat. A térfogatára a http://vizfarago.hu/zart-tagulasi-tartalyok-meretezese/ oldal alapján 0,3 bar-os előfeszítéssel, 2.000 literes rendszertérfogattal, 0 méteres magassággal és 100 fokos maximális hőmérséklettel számoltam az 1,5-ös végnyomást.

Előzmény: joevagyok68 (77269)
kormi07 Creative Commons License 2015.02.03 0 0 77282

Idén fűtésátalakítás lesz, megszűnik az átfolyós vízmelegítő, indirekt HMV tartály lesz helyette, télen vegyes, nyáron a gázkazán fűtené(napkolim nincs, egyelőre nem is lesz), és le akarom spórolni az őrlángot.Napi begyújtogatás a másik lehetőség, de azt kihagynám.

2 lehetőség van:

-meglévő gázkazánból kidobom az őrlángos cuccot, megy be a helyére az ionizációs, gázosoknak nem mutogatom

-keresek egy 25kW környéki gyárilag őrláng nélküli állókazánt, beteszem a mostani helyére

 

Minimál költségvetésű a projekt, 10-15e nél többet nem szánok rá, lehet 1-2 év múlva megy az egész a lecsóba.

Előzmény: citcat 18-16v (77228)
kiggyo Creative Commons License 2015.02.03 0 0 77281

Hihetetlen ócska minőségű cuccok vannak a piacon, keresni kell a normális minőséget. A flexicsövekkel dettö ez a helyzet. Spórolsz 300Ft-ot és csinálsz 1MFt kárt az alattad lakónak.

Előzmény: pingui (77280)
pingui Creative Commons License 2015.02.03 0 0 77280

A házzal együtt kaptuk a sarokszelepeket. De igen, menetnèl tört. Csakúgy mint a kádtöltő excenteres izéje. Azt hiszem preventív jelleggel kicserélem mindet. 

Előzmény: kiggyo (77277)
Törölt nick Creative Commons License 2015.02.03 0 0 77279

szigetelésböl ki kell venni. 

terv nem kell.

karbantartás ként meg lehet ezt csinálni.

fal sík alatt csak szerelő horonyban lehetne, de akkor is minden iránytörésnél  kiszellöztetve.

 

Előzmény: Krisztiánné Takács (77258)
Catman Creative Commons License 2015.02.03 0 0 77278

Sziasztok,

 

Panelfelújítást csinálunk, és lenne néhány kisebb vízszerelési munka. Konkrétan:

- 5 sarokszelep cseréje

- mosógépnek kiállás készítése (víz + szennyvíz) a kád oldalára (kb. 170cm cső)

- kád lefolyójának a komplett cseréje

A kérdésem, hogy mennyi lehet ezeknek a reális ára (anyag + munkadíj), illetve tudtok-e ajánlani valakit, aki megcsinálná (Kistarcsán)?

kiggyo Creative Commons License 2015.02.03 0 0 77277

Óccó eszpanyol szelep volt? Én már kicseréltem mindet mofémre. Alig marad anyag a menetárokban.

Előzmény: pingui (77273)
pingui Creative Commons License 2015.02.03 0 0 77276

Köszönöm.  Ez eszembe nem jutott volna.

Előzmény: morgen66 (77275)
morgen66 Creative Commons License 2015.02.03 0 0 77275

Fűrészlap ketté törve,megvágva három részen a betört ment ,majd kiütni kicsi vésővel vagy csavarhúzóval a szétvágott menetet.

De van menetkiszedő is.

 

Előzmény: pingui (77273)
morgen66 Creative Commons License 2015.02.03 0 0 77274

Te tudod,de szerintem nem sok értelme van,fölösleges beruházás.

Csak lentebb kellene tenni az érzékelőt , nem kerül semmibe. :-)

Előzmény: emts (77267)
pingui Creative Commons License 2015.02.03 0 0 77273

Üdv Urak!

Ha egy sarokszelep 1/2"os része beletörik a falban levő kiállásba, akkor hogy szoktátok kiszedni a beletört darabot? 2 éven belül másodszor járok így (a ház különböző helyein), és érdekelne, hogy csinálják a szakik.

morgen66 Creative Commons License 2015.02.03 0 0 77272
Előzmény: Törölt nick (77266)
morgen66 Creative Commons License 2015.02.03 0 0 77271

Email  publikus lenne akkor igen.

Csak azért nehogy megvádoljanak reklámozásért. :-)

Előzmény: Krisztiánné Takács (77262)
joevagyok68 Creative Commons License 2015.02.03 0 0 77270

Pufferról írnál bővebben ?

Ki csinálta ? Milyen hőcserélő(k) ? Mennyiért ? Szegletes ?

Előzmény: kiggyo (77256)
joevagyok68 Creative Commons License 2015.02.03 0 0 77269

Baszki...ez akkor eleg nagy tok es hosszu vono !!!

Baboton az 1000- es puffer /ures/ 85000, az 1500 literes van vagy 120eft. A 200 literes tagulasi 60000 ft, hoszigeteled a puffer hazilad 40000, az szumma 220 eft

 

Amugy ha 0,8 az indulo, es 1,5 a vegnyomas, 1500 literhez lehet keves lesz a 200 tagulasi !

Előzmény: csubar86 (77265)
joevagyok68 Creative Commons License 2015.02.03 0 0 77268

Az van, hogy mindketten elsiklottunk afelett, hogy HŐCSERÉLŐVEL veszi ki a meleget a futokoirnek meg a hmv-nek ! :-) 

Nem a puffer aljaba megy a hideg vissza a futokorbol, hganem a hocserelobe  !

ééted ? :-) 

Előzmény: lala1961 (77264)
emts Creative Commons License 2015.02.03 0 0 77267

Köszönöm szépen. Nálunk is ilyen a tartály, mint az csatolt ábrán. Alul a szolár, felül a kondenzációs gázkazán fűt (80 fokos vízzel). Alul így van bekötve, mint az ábrán (alsó csőkígyó, felül piros, alul kék), viszont a felső kígyó nálam fordított, azaz alul piros, felül kék. Ezek szerint meg kellene fordítani...  a tartály maga 300 literes (rosszul írtam az előbb), csak mivel a szolát télen alig dolgozik (max előfűt), ezért csak a felső egyharmadban lesz meleg víz (ami kb 100-130 liter), s ez a mennyiség a kevés, s a kazán nem tud a szükséges ütemben utánfűteni. A bekötés cseréjén túl akarnánk még télre egy kis forgatót, hogy a teljes 300 liter fel legyen fűtve.

Előzmény: morgen66 (77247)
Törölt nick Creative Commons License 2015.02.03 0 0 77266

köszi! :) Az árkülönbség mennyi lehet arról van sejtésed így láttatlanban?

Előzmény: morgen66 (77259)
csubar86 Creative Commons License 2015.02.03 0 0 77265

Egy 1.500 literes puffer + a 200 literes tagulasi egyutt kb. 320e Ft tokkal-vonoval. A puffer max. nyomasanak 3 bar van megadva, amire lesz jo boven rahagyas, mert 1,5 lesz kb. a max. nyomas.

 

A te verziodban mennyire jon ki egy puffertartaly, egyaltalan van olyan, hogy nem nyomasallo puffertartaly?

Előzmény: kiggyo (77251)
lala1961 Creative Commons License 2015.02.03 0 0 77264

No megpróbálom érhetőbben leírni,hogy mire is gondoltam! 2 nappal a fűtés leállítása után legalul csak a radiátorokról lejövő hideg víz lehet a pufi aljában szerintem,ami ha megfelelő hőlépcső van akkor kb 30 c fok.SZERINTEM.Ha a lakás nem kér akkor lehet ez melegebb ,mert a felsőbb meleg víz miatt kiegyenlítődik valamennyire és akkor lehet 35+ -os is.

Előzmény: kiggyo (77260)
csubar86 Creative Commons License 2015.02.03 0 0 77263

Tudom, elvileg talan a szabvany szerint meg mindig nem lehet zart a vegyestuzelesu rendszer. Velemenyem szerint ez leginkabb a szokasos nem haladnak a korral a szabvanyaink c. fejezet, nem hiszem, hogy pl. nalam 1.500 liter + a csovek, radiatorok, szal kb. 2 m3 vizet fel lehetne forralni (kiveve persze, ha a teljes rendszer mar 70-80 fokos). Pluszban annak elegge kicsi szerintem az eselye, hogy a haromszintu biztonsagi lepcsobol (tapegyseg, visszahuto szelep, biztonsagi szelep) semmi se mukodjon, s felforrjon a viz.

 

A rendszer teljes koltsege most kerek millional jar, de meg a kazan es a radiatorok hianyoznak, viszont ezek csak netes arak, nem pedig egy konkret rendeles, ahol azert ekkora tetelnel mar akad kedvezmeny is. Szerintem ennyit meger egy zart rendszer. Nyitottnal ott van az alacsonyabb hatasfok, plusz a tartalyt kb. a padlasra kene feltenni, ami nem elonyos, mert ott nincs futes. Plusz a diffuzio, nyilvan nem lehet zartnal sem teljesen kizarni, ahogy irtad is, de nalunk a kazanhazban mar bemegy a betonba a cso, s csak a radiatornal jon ki, nem hiszem, hogy 10-15 centi beton alatt nagyon diffundalodna oxigen a csobe.

Előzmény: kiggyo (77251)
Krisztiánné Takács Creative Commons License 2015.02.03 0 0 77262

Köszönöm az infót.Esetleg az elérhetőségét meg tudnád adni az úriembernek ?

morgen66 Creative Commons License 2015.02.03 0 0 77261

Bp. környékén tudok gáztervezőt, Ő megtudja mondani kell-e vagy nem kiszerelni a csövet a szigetelés alól.

 

De ha jól tudom a cső két végén szellőztető kell,és nem kell kibontani a szigetelést.

Előzmény: Krisztiánné Takács (77258)
kiggyo Creative Commons License 2015.02.03 0 0 77260

Nem értem a kérdést, mi van túlfűtve? A pufferban van a fűtés és a hmv hőcserélő. Ezen puffer alját rendszerint nem szoktam 35 fok alá engedni, mert akkor a teteje már hideg a fürdéshez, ez amolyan tapasztalati érték nálam. Kb 2 nappal a kazán kialvása után a teteje 45,az alja 35 fok körül van nagy hidegben. Ez fűteni nálam elég lenne (max 25fok előremenő) de fürödni nem. (Gondolom a 35 fok alsó hőfok a fűtési hőcserélő miatt van, mivel ott is kell delta t a hőátadáshoz.)

Ezért begyújtok. A kazán aljába a puffer aljából megy a 35fokos víz, a tetején meg a meleg megy a pufferba.

Este csinálok már végre egy rajzot és felteszem hátha úgy könnyebben érthető a dolog.

Előzmény: lala1961 (77257)
morgen66 Creative Commons License 2015.02.03 0 0 77259

Barkácsba vegyél occo kínait, ha nem kell a minőség.

 

Én a mofémet venném igaz nem olcsó de tartós,és van hozzá alkatrész ha elromlik.

Előzmény: Törölt nick (77253)
Krisztiánné Takács Creative Commons License 2015.02.03 0 0 77258

Sziasztok!

Tudna nekem esetleg segíteni valaki abban,hogy pár évvel ezelőtt beszigeteltettük a házat.A gázcsövet a szigetelés alatt hagyták.Tudomásunkra jutott,hogy ki kell vezettetnünk,mert megbüntetnek érte.A kérdésem az lenne,hogy kell-e ehhez terveztetés is?,és hogy körülbelül milyen összegre lehet számítani,ha valaki elvállalja?

lala1961 Creative Commons License 2015.02.03 0 0 77257

Honnan van 35 c fokos visszatérőd?Valami túl kell legyen fűtve(radiátor),nálam kb 25-max 30 c fokos csak a visszatérőm.

Előzmény: kiggyo (77254)
kiggyo Creative Commons License 2015.02.03 0 0 77256

Én a fűtéskör hőcserélős leválasztásához azért ragaszkodtam mert a cégünknél nagyon rácsesztünk egy nagy rendszernél. Volt egy höszivattyús, 1000 pufferes padlófűtés+fan coil zárt fűtésrendszerünk. Majd bekerült egy nagy pelletkazán ugyanebbe a vízkörbe és pár év múlva eldugította az osztókat a ruskó. Kideríttettük mi a gond.

A kazán belseje kezeletlen vas. A diffúziómentes cső nem azt jelenti hogy teljesen az, csak minimális diffúziójú. A több km cső beenged annyi oxigént hogy szép lassan zabálgatja a vasat.

A megoldás egy 100kw hőcserélős leválasztás lett volna eredetileg.

Az utólagos megoldás az lett, hogy speckó szerrel kimostuk, majd inhibitor a közel 2000l vízbe. Több mint 1MFT lett a tisztítókúra.

Előzmény: csubar86 (77249)
joevagyok68 Creative Commons License 2015.02.03 0 0 77255

Pufferról írnál bővebben ?

Ki csinálta ? Milyen hőcserélő(k) ? Mennyiért ?

Előzmény: kiggyo (77254)
kiggyo Creative Commons License 2015.02.03 0 0 77254

Az alja 35 fok alatt nemnagyon szokott lenni. A gravitációsnál olyan kicsi az áramlás hogy nem szokott gond lenni. 

A lényeget kimondtad, a fám is száraz, fedett helyen van és tavasszal veszem. Vizes fából másfélszerese fogy.

Próbáltam először az esbe kazánvédőt, nagyon könnyen felrottyant a kazán (nagy teljesítményű is ez tény). Kivettem, szivattyú maradt. A szivattyú tolta bele a 30-40 fokos vizet, 50-60 lett az előremenőm, kátrányosodott alacsony hőfokú puffernél  mivel átöblítette a kazánt. Lett sok 50fokos vizem, hurrá. 

Aztán (meg a forralás után) lett gravis. Önszabályozó, csak meleg kazán esetén indul meg. Nem kell neki áram. Nem kátrányos a kazán. Ha sokáig elutazunk akkor a forróvíz amint elkezd  felrétegződni a puffer tetejére lehet is fürödni.

A kazán is huzatszabályozós, a szivattyú akkor indul el amikor már olyan meleg a puffer alja is, hogy lelassul a gravitációs áramlás. Automata rendszer automatika nélkül. 

Ezek lettek a saját tapasztalatok, azóta gondtalanul üzemel.

 

Előzmény: joevagyok68 (77252)
Törölt nick Creative Commons License 2015.02.03 0 0 77253

Sziasztok,

Konyhai csap vásárláshoz tudtok esetleg tanácsot adni?

Hova érdemes bemenni és milyet. Mit kerüljek el? Elég valami egyszerű csak bírja azért egy ideig. Köszi!

joevagyok68 Creative Commons License 2015.02.03 0 0 77252

"A pufferemet amúgy azért nem engedem 40-50 fok alá"

Ez ok.....a tetejét.

DE az "alja" szinte mindíg "hideg" !

Úgy sincs kátrány ?

(Bár mondjuk száraz fával, fojtás nélkül égetve nem is igazán lehet, még ilyen hőfokú visszatérőnél se nagyon)

Előzmény: kiggyo (77250)
kiggyo Creative Commons License 2015.02.03 0 0 77251

Kazánnal vigyázz, sok nem köthető zárt rendszerre.

Árakat néztél már? Mennyi egy 1500l nyomásálló puffer, és a hozzá való tágulási? Nagyjából mennyibe lenne a te verziód segédberendezésekkel?

Előzmény: csubar86 (77249)
kiggyo Creative Commons License 2015.02.03 0 0 77250

Nem vészes, de jobban keveredett. 3000 literes majd 3 m magas a pufferem. 6 hőmérő van benne jól látom a rétegeket. A gravitációsnál olyan elvágólag vannak a rétegek hogy amikor mondjuk az 50 fokos pufferbe megindul a 80 fokos víz amikor eléri sorban a hőmérőket 50-ről 80 fokra pillanatok alatt fűti fel. Mindkettő működik, ez picit jobb és biztonságosabb, ennyi. Ha lehetőség van rá nem elvetendő, ennyi. A gravitációs előtt 1" csőves volt, egy szivattyúleálláskor szarráégett a kazánom burkolata. Elfújta a vizet a biztonsági szelepen majd felizzott a bele annyira hogy leolvadt róla minden hőmérő, stb. Keresek képet, szép lett.

Akkor döntöttem a hülyebiztos gravitációs mellett.

A pufferemet amúgy azért nem engedem 40-50 fok alá mert a HMV is onnan jön, és így is csak 2 naponta kell begyújtanom. Fűteni 4 napig is tudnék róla.

Előzmény: joevagyok68 (77246)
csubar86 Creative Commons License 2015.02.03 0 0 77249

Azért a zárt rendszer felé hajlok, mert így elkerülhetem a nyitott tartályoknál fellépő oxidációs jelenségeket. Továbbá tudomásom szerint mind a pufferek, mind a lemezkazánok is bírják akár 4-5 bar-ig is a nyomást, de a max. üzemi nyomás 1,5 bar-ra lesz belőve.

 

A gravitációs megoldással én is szimpatizálok, de sajnos egy helyiségben lesz minden tartály egymás mellett a közelben, így nem hiszem, hogy akkora víztér lenne, hogy kialakuljon jól a gravitációs keringés. Pedig jó megoldás, tekintve, hogy nem kell szivattyú, ami elromolhat, áramszünet léphet fel stb, vagyis eléggé faék egyszerűségű rendszer.

 

Előzmény: kiggyo (77233)
joevagyok68 Creative Commons License 2015.02.03 0 0 77248

"A felső 1/3-ot a kazán fűti."

"Télen a melegvíz nem elég, aki utoljára fürdik, annak csak nagyon langyos víz jut."

MILYEN kazán ?

Gondolom nem gáz......ha csak langyos víz jut...

 

Ha meg gáz akkor az miért nem kapcsol be "időben"  ?

 

"vagyis hamarabb készül melegvíz?"

Ha mégis gáz...Gyugd/rakd lejjebb az érzékelőt, hogy "előbb" kapcsoljon..

Előzmény: emts (77244)
morgen66 Creative Commons License 2015.02.03 0 0 77247

Nem tudom milyen megfontolásból van felcserélve a fűtési előremenő és a visszatérő,de az úgy nem tökéletes.

A 130 liter egy kicsit kevés, bár két embernek elég.

 

A képen látszik hogy kellett volna bekötni, szólj a szerelőnek hogy alakítsa át , garanciába, ha most csinálta.

 

http://www.szakszer.hu/wp-content/uploads/prospektus/sol-solar-set_prosi.pdf

 

Tervező is volt projektnél, és nem mondta hogy így nem lesz jó?

 

Én megcserélném az előremenőt és a visszatérőt, biztos jobb lesz.

Előzmény: emts (77244)
joevagyok68 Creative Commons License 2015.02.03 0 0 77246

Hol/Milyen hőfokokat mértél amikor összekutyult a szivattyú ?

 

Mert nálunk - de ahogy olvasom máshol SE - kutyul semmit a szivattyú !

Gyönyörűen rétegződik a víz a pufferbe !

 

Amúgy ezt a "puffert nem hagyom lehülni" dolgot se értem ! :-)

Má csak azért se mert a falfűtésesben valami huszonfokos előremenőröl-meg visszataérőről írtál !

Tehát a puffer alja szinte állandóan "hideg" nálad !

Előzmény: kiggyo (77239)
morgen66 Creative Commons License 2015.02.03 0 0 77245

A kazán előtti sarokcsapból jó nyomással jön a víz?

Csak egy csaptelepnél gyenge a nyomás ,vagy mindenhol?

 

Ha jól jön a sarokcsapon a víz , akkor a kazánon nem megy át a víz rendesen.

 

Ha a kazánon átmegy a víz,akkor a csaptelepbe lehet vízkő.(vagy a csőben)

 

Már találkoztam olyannal,hogy a flexi csőben volt egy kis vízkő , és azért nem jött a csapon a víz rendesen.

Előzmény: Jocee333 (77243)
emts Creative Commons License 2015.02.03 0 0 77244

Sziasztok, nem vagyok szakmabeli, de hátha tud valaki tanácsot adni... van egy 130 literes indirekt melegvíztároló 2 csőkígyóval. Az alsó, ami a tartály 2/3-ad részben van a szolárra csatlakozik. A felső 1/3-ot a kazán fűti. Nyárom ez a megoldás remek, a kazán ki van kapcsolva és van forró víz. Télen a melegvíz nem elég, aki utoljára fürdik, annak csak nagyon langyos víz jut.  A kazán oldali bekötés a gyári ábra szerint olyan, hogy felül van a visszatérő (kazánhoz visszamenő langyos fűtővíz) és középen van az előremenő ág (kazántól jövő forró fűtővíz). Az merült fel, hogy mi lenne, ha megcserélnénk a két csövet, azaz felülről melegedne a víz lefelé. A tervező szerint ennek két előnye lenne: mivel a melegvíz kiállás legfelül van, ezért hamarabb lenne melegvíz a csapoknál, illetve ha felülről lefelé melegíti át  vizet, akkor jobb a hőleadás (a melegvíz felülről lefelé kering így). Ez nekem logikusan hangzik. Szerintetek ezzel javulhat a helyzet, vagyis hamarabb készül melegvíz? 

 

A másik ötlet egy fél colos cső és szivattyú, ami átforgatja a vizet a tartályban, igy az alsó rész nem lesz hideg. s könnyebben megy majd a felfűtés télen.

 

Minden tanácsot, ötletet nagyon megköszönök.

 

emts

Jocee333 Creative Commons License 2015.02.03 0 0 77243

Nincs perlátor rajta. Már a "szelepházból" gyengén jön a melegoldali víz, tehát a kazán előtt van a hiba. (A kazán is le lett szedve.) A hideg oldal akadálytalanúl áramlik. 

Előzmény: morgen66 (77216)
Jocee333 Creative Commons License 2015.02.03 0 0 77242

Atomjaira lett szétszedve de nincs látható vízkő. Már a kazán előtt nincs áramlás, mert az is le lett szedve.

Előzmény: pajaci (77214)
c-stahl Creative Commons License 2015.02.03 0 0 77241

Van sok kazán, ami köthető zárt rendszerre.

Vagy boltit vesz, vagy nem. Én nem tudom.

Nem jól értelmezted amit írtam, nekem is szimpatikus a gravitációs primer kör, forrásveszély elkerülése miatt.

Összekutyulást okát nem tudom innen megítélni, de azt gyanítom, hogy nem önmagában a szivattyú hibája.

Előzmény: kiggyo (77239)
kiggyo Creative Commons License 2015.02.03 0 0 77240

A héten megrajzolom ha lesz egy kis időm.

Előzmény: morgen66 (77238)
kiggyo Creative Commons License 2015.02.03 0 0 77239

Van sok kazán ami nem köthető zárt rendszerre mert nagy felületű lemezkazán, pl bálás. A puffert gondolom ekkorát nem boltit veszel hanem csináltatsz, az is lehet nem nyomásálló kivitel, sokkal olcsóbb.

A gravitációs megoldás miért nem szimpi? Tökre bevált, 60-70 fok alatt me sem indul, utána minél melegebb a kazán annál jobban áramlik. A tartály rétegeit sem kutyulja össze. Nekem mindkettő van, de ez sokkal jobban bevált.

Előzmény: c-stahl (77236)
morgen66 Creative Commons License 2015.02.03 0 0 77238

Van szintkülönbség a puffer és a kazán között?

 

Engem érdekelne a rajzod , mert egy ismerősöm most tervezgeti a pufferes fűtését és minden infót én gyűjtök össze.

 

A rajz jöhet ide is,ha nem titkos. :-)

Előzmény: kiggyo (77233)
kiggyo Creative Commons License 2015.02.03 0 0 77237

Sajnos átengedte nekem is a keverőszelep, nem zárja a hideget teljesen. Viszont vettem kimondottan hmv keverőszelepet, állítható az tökéletesen zár. Azt hiszem honeywell, de megnézem.

Előzmény: pajaci (77227)
c-stahl Creative Commons License 2015.02.03 0 0 77236

Én zárt tág.tartályt feltételeztem.

De ekkor is célszerű nyomott rendszert alkalmazni, de kettő vezeték kell nyitott tágulási tartályhoz.
Ekkor vizsgálni kell a kialakítást (biztonsági előremenőben lévő hurok), megvalósíthatóság, fagyveszély.

 

kiggyo által írt gravitációs kör nekem is szimpatikus. Van előnye is hátránya, én a kettőt keverném, ahogy írta, de a szivattyús üzemet az első számú üzemmódnak.

 

A nyomásállóságot nem értem, lemezkazánnak is van nyomásállósága, egy puffernek meg végképp (műbizonylatolt termékeket feltételezve).

Előzmény: csubar86 (77234)
kiggyo Creative Commons License 2015.02.03 0 0 77235

Bocsánat, nem írtam világosan lehet, a puffer és a kazán köre nyitott rendszer, nyitott tágulási tartállyal (vagy nem rakod a puffert tele és a tágulási tér a teteje.

Mivel az 1500l puffer jelentősen tágul, egy zárt tágulási szép összeg lenne, ezen is spórolhatsz.

Előzmény: kiggyo (77233)
csubar86 Creative Commons License 2015.02.03 0 0 77234

Értem, a kazánköri javaslatot köszönöm, azt akartam is kérdezni, hogy érdemes-e rakni légelválasztót és iszapleválasztót a puffer után is, de akkor rakok (amúgy az iszapleválasztót akkor ezek szerint nem feltétlenül kell a szivattyú szívóoldalára tenni).

 

Így, hogy már többen mondtátok, akkor valószínűleg inkább egy szivattyúval fogom megoldani a HMV-tartály fűtését, s talán méghozzá úgy, hogy a puffer tetején lévő kivezetésre kötöm a HMV-kört, és az oldalán a legfelső kivezetésre a fűtést (azt meg kitalálom, hogy a HMV-részt megcsinálom-e, vagy meghagyom opciónak a jövőre nézve).

Előzmény: c-stahl (77230)
kiggyo Creative Commons License 2015.02.03 0 0 77233

Ezer féle jó megoldás van, kérdeznék párat tőled

 

A, miért akarod nyomás alá helyezni a puffert?

Ha a vegyes kazánnal egy vízkörben van a puffer:

- meg van oldva a nyitott rendszer kérdése, ha felforr (amihez azért jó figyelmetlennek kell lennie, 1500l víz nem forr csak úgy fel) akkor maximum bugyog és kész, nem robban fel semmi 

- nem kell biztonsági hűtőkör, iszapleválasztó. Csak a puffer és a kazán vize közös, mindenki más zárt, hőcserélős rendszer

- SOKKAL olcsóbb puffered lehet, mivel nem kell nyomásállónak lennie

- nem kell nyomásálló kazán, jó a lemez is!

- nem kell kazánvédő keverőszelep (van eladóm ha kell!) lásd később...

- nagy csőátmérő esetén gravitációsan is megfordul 

 

A sokadik tesztelési fázis után alakult ki a rendszerem, ami a következő lett:

- bálás kazán (60-100kW!)

- 3000literes puffer

- a kettő között 2" csövek, gravitációsan megfordul a víz. A visszatérőben 2" nyelves visszacsapó, hogy a kazán leégése esetén ne legyen fordított áramlás

- biztonság kedvéért van szivattyú is rajta, a kazán 95C termosztát indítja, nagyon ritkán megy. Van persze a kazánon 1" biztonsági lefúvószelep is, de csak egy cső dugulás esetén van esélye megindulnia.

 

A felfűtéskor, mivel nem kutyulom szivattyúval a vizet, rögtön rétegződik a víz, a tetején szépen "vastagodik" a melegvíz réteg. A kazán visszatérő hőszabályzóját azért vettem ki, mert nem volt rá szükség. Semmiképpen sem hagyod annyira kihűlni a puffert hogy gondot okozzon a kazánnak, lecsapódás legyen benne, hiszen akkor fűteni sem tudnál.

 

A pufferben vannak a csőkígyók (réz), abból megy a fűtés, HMV, napkoli rásegít, stb. Ha érdekel megnézheted, rajzot küldhetek, stb... 

Az a tapasztalat hogy az egyszerűbb rendszerekkel van a legkevesebb gond.

A puffer és vegyestüzelésű fórumot is ajánlom figyelmedbe, sok okosságot olvashatsz ott is.

Előzmény: csubar86 (77221)
rferi Creative Commons License 2015.02.03 0 0 77232

Nem mindegy, hogy szellőzőakna, vagy kémény, ezt el kéne azért dönteni.

Ha a kémény gyüjtőkémény - nem tudom egyáltalán lehetséges-e gázbekötés ilyen módon -, akkor elképzelhető az is, hogy nála a szintén nyitott égésterű berendezés előbb magába szívja a helyiség levegőjét a kenyérszaggal együtt, majd felküldi az egészet a gyüjtőkéménybe.

Ha lehetséges gyüjtőkémény, akkor lehetséges a sütésszag is -legálisan.

Ha viszont szellőzőakna, akkor ő simán belekötötte a saját szellőzését - mért ne kötötte volna? -, és akkor viszont mit keres benne a te kéményed??

Előzmény: lavendeer (77225)
rferi Creative Commons License 2015.02.03 0 0 77231

XVI ker

Előzmény: lavendeer (77217)
c-stahl Creative Commons License 2015.02.03 0 0 77230

Kazánkör:

- tág.tartály a szivattyú szívó oldalára kötném, szükséges szerelvényekkel

- légleválasztót, iszapfogót a kazán közelébe raknám, nem a puffer közelébe

Felhasználói oldal:

nem spórolnék a HMV szivattyúval, cserébe:

- elmarad egy motoros váltószelep (HMV), vezérléssel, reteszeléssel

- elmarad a hidraulikai összehangolás fűtési-HMV kör között, ha csak egy szivattyú lenne

- elmarad az egy szivattyú munkapontjának meghatározása

- HMV, fűtés párhuzamos üzeme megvalósítható

 

- ide is raknék szűrőt, az előremenőbe.

 

Beszabályozó szelepek, elzárók, hőmérők még hiányoznak.

Előzmény: csubar86 (77221)
csubar86 Creative Commons License 2015.02.03 0 0 77229

Ertem, koszonom!

 

Amugy mi a tapasztalatotok az Esbe szelepekkel, Grundfos Alpha szivattyúkkal es a Honeywell szelepeivel illetve huzatszabalyozojaval kapcsolatban? Van akinek esetleg nem jottek be, nem ajanlja?

Előzmény: pajaci (77227)
citcat 18-16v Creative Commons License 2015.02.03 0 0 77228

Van őrlángos is belőlük, ha kell ionizációs gáz szelep+komplett vezérlés akkor hívj fel van belőle bontott és új is.06309754152

Előzmény: kormi07 (77222)
pajaci Creative Commons License 2015.02.03 0 0 77227

A 322-es nem kéne hogy átengedje a hideget.

Előzmény: csubar86 (77224)
lavendeer Creative Commons License 2015.02.03 0 0 77226

A Főkétüsz még nem válaszolt, lehet, nem is fog. 

lavendeer Creative Commons License 2015.02.03 0 0 77225

Vélemény azzal kapcsolatban, hogy mennyire van rendben hogy a gázbojlerem alu csövén, vagyis a szellőzőaknán vagy kéményen keresztül jön a pékségből a sütésszag?

csubar86 Creative Commons License 2015.02.03 0 0 77224

A forrázás elleni szelepet köszönöm, bár ami a problémám, hogy ezek a szelepek akkor is kevernek, amikor a melegvíz hidegebb, mint a kimeneti maximum (pl. a 60 fokos szelep, az 50 fokos melegvízhez is hozzákeveri a hálózati vizet, így csak pl. 40 fok lesz a csapoknál).

 

Nyáron se probléma a melegvíz, mert egy Hajdú indirekt, hőcserélős tárolót néztem ki, amibe be lesz építve az elektromos fűtőbetét is, ami az elsődleges melegítőforrás lesz. Épp ezért első körben megpróbálom egy szivattyúval a HMV-t és a fűtést, mivel a puffer csak másodlagosan melegítené a HMV-t, csak akkor, ha van elég felesleges hőmennyiség benne, amit nem kell a radiátorokhoz vezetni (ami kézi beállítási lehetőség lenne a HMV/radiátor osztó elosztószelepével, hogy akarjuk-e a vízet így melegíteni, vagy nem).

Előzmény: morgen66 (77223)
morgen66 Creative Commons License 2015.02.02 0 0 77223

Én a pufferből fűteném a HMV-t , és a meleg vizet egy esbe szeleppel szabályoznám, forrázás ellen,igaz így kelle egy plusz szivattyú.

http://netkazan.hu/termek/1151/esbe-vta-322-1-os-35-60-keveroszelep

Nyáron hogy lesz meleg vized?

A fűtést és a hmv-t egy szivattyúval akarod megoldani, akkor szerintem egy motoros szelep kellene,hogy csak a fűtés vagy csak a hmv körben cirkuláljon a vized,mind a kettő egyszerre nem ok.

 

De kérdezz rá itt is 

http://forum.index.hu/Article/showArticle?t=9173884&la=133611542

 

Biztos többen foglalkoznak vele mint itt.

 

Előzmény: csubar86 (77221)
kormi07 Creative Commons License 2015.02.02 0 0 77222

Üdv emberek.

 

Van itt valaki, aki ismeri a régi termomax kazánokat?Az érdekelne, hogy az öv color széria 25-35-45-55kw állókazán típusok mind őrláng nélküli kivitelűek?

Vagy van még ezeken kívül valamilyen kazántípus, ami nyílt égésterű, állókazán, és őrláng nélküli?

(kellene belőle a vezérlése+gázszelep, ilyesmi - vennék egy komplett kazánt)

csubar86 Creative Commons License 2015.02.02 0 0 77221

 

Sziasztok!

 

A képen látható fűtési illetve HMV-rendszer kiépítése előtt állok, s ezzel kapcsolatban érdeklődnék, hogy jól raktam-e össze a dolgokat, vagy van valami, amin változtatni kellene.

 

A kazán egy 30 kW-os vegyestüzelésű kazán (gáz nincs a településen), ami a primer körön keresztül egy 1.500 l-es puffertartályt fűt. A kazán után egy biztonsági szelep illetve egy termikus visszahűtő szelep található, így jut a víz egy légelválasztón keresztül a pufferbe. A visszatérő oldalon a puffer kimenetén egy iszapleválasztó van, majd egy 60 fokos termikus keverőszelep található a szivattyú szívóoldalán; a nyomóoldalon van bekötve a 200 l-es zárt tágulási tartály, illetve a kazán töltésért, ürítésért felelős bekötések. A töltéshez egy kazántöltő szelep kerülne beépítésre (a képen a bekötés rosszul szerepel, nyilván a HMV-t a kazántöltő szelepek előtt ágaztatom le, hogy ne keveredjen a fűtő- és az ivóvíz).

 

A puffertartályból a fűtés mellett adott esetben az indirekt tárolót is fűteném. Ezért egy állítható osztószelepet teszek be, hogy ne a kisebb ellenállású HMV-körön menjen az összes víz (mivel a HMV-tartály mellette lesz, míg a legtávolabbi radiátor ca. 10-15 méterre). Ezután egy állítható keverőszelepen keresztül táplálom az osztót, hogy változtatható legyen az előremenő víz hőmérséklete (pl. ősszel kevesebb is elég, mint télen). A pufferbe visszatérő oldalon pedig a keringető szivattyú szerepel, illetve még a melegvíz-cirkulációs kör látszik a kép jobb szélén.

 

A primerköri szivattyút a kazán vízhőmérséklete alapján vezérelném (pl. ha 60 vagy 70 foknál melegebb a kazánban lévő víz, akkor kapcsoljon be, ha visszahült, akkor kapcsoljon ki, hogy a puffer rétegződése jó legyen), a kazánhuzatot meg huzatszabályozóval. A szekunderköri szivattyú automata lenne, szobákban termosztátos radiátorfejek nyitnának-zárnának, s a térfogatáram-változás alapján automata működés lenne, ahogy a HMV-szivattyúnál is.

 

A biztonságért első rendben szünetmentes tápegység felel (méretezését tekintve 4,5-5 órán át bírja a primerköri szivattyút, amíg a tűz szinte 100%, hogy leég). Másodrendben a 97 fokon nyitó termikus visszahűtőszelep, s harmadsorban minden kötél szakad esetben a biztonsági lefújó szelep.

 

Első körben várom a véleményeteket, hogy mit kell átalakítani, mi nem jó esetleg stb.

morgen66 Creative Commons License 2015.02.02 0 0 77220
Előzmény: vftsforever (77218)
halaloszto Creative Commons License 2015.02.02 0 0 77219

melyik szivattyuhoz ragaszkodsz? mert en nem talalom a hozzaszolasodban a konkret szivattyut.

 

en azt mondom hogy ha zart a rendszer, akkor a futesi keringteto teljesen szuper oda. szerezz egy viszonylag kicsit, es ha lehet rajta allitani akkor tedd a legkisebb fokozatba. nem fog sokat fogyasztani a hegesztoapparathoz kepest.

 

Vajk

Előzmény: vftsforever (77218)
vftsforever Creative Commons License 2015.02.02 0 0 77218

azert ragaszkodom ehhez a szivattyuhoz, mert ezek 20even at teszik a dolgukat, egy akvariumszivattyu egy műanyag vacak a szememben. 10bar,van rairva nekem annyit kell tudjon, hogy egy zárt rendszerben forgassa a vizat kb 6meter csoszakaszon es max 2-3meter magasban, minel halkabban es megbizhatobban. Tudom hogy sokat orazt

Előzmény: halaloszto (77209)
lavendeer Creative Commons License 2015.02.02 0 0 77217

ez melyik rendes önkormányzat rendes környezetvédelmi hatósága?

 

pékségek ellen is ilyen határozottan lépnek fel?

Előzmény: rferi (77212)
morgen66 Creative Commons License 2015.02.02 0 0 77216

A csaptelep perlátorát szedd le , ha úgy se jó, akkor lehet a kazánnál a bajt keresni.

Esetleg a cső a falban vízköves és elvan dugulva,de ez elég ritkán fordul elő.

 

Perlátor

http://www.aquamixwebaruhaz.hu/blog-left-sidebar.php?PID=1121

Előzmény: Jocee333 (77213)
morgen66 Creative Commons License 2015.02.02 0 0 77215

Esetleg egy új tömlő?

Én is dolgoztam AWI géppel,de nekem ha bajom volt a pisztoly hűtéssel ,kicseréltettem a komplett tömlőt.

Szerintem egy kis akvárium szivattyú elég lenne,de nem occó,nem tudom mennyi egy új tömlő,de te tudod.

 

http://korallszirt.hu/aquarium-systems-maxi-jet-1000-szivattyu-es-keringeto-motor.html

Előzmény: vftsforever (77208)
pajaci Creative Commons License 2015.02.02 0 0 77214

Vízköves a mosogató csap?

Előzmény: Jocee333 (77213)
Jocee333 Creative Commons License 2015.02.02 0 0 77213

Kedves Hozzáértők!

 

 Van egy Vaillant MAG  átfolyós vízmelegítőm. A melegvíz oldalon a víz áramlását valami lefolytja. Kb. fél éve elkezdett furcsa zúgó hangot kiadni, ezzel eggyüt kevesebb víz jött belőle. Mára annyira nincs víznyomás, hogy a gáz sem gyullad be. (Az őrláng szépen ég) A kazán rész nincs eltömődve (leszedve átfuvatva), vízbelépésnél a szűrő tiszta, a középső vízmennyiség szabályzó teljesen nyitva van, a víz oldalon a membrán alatti rugós "pöcök" vagy mi a kórság nincs beragadva. HILFE!!!!

 

rferi Creative Commons License 2015.02.02 0 0 77212

Én megkérdeztem erről az önkormi környezetvédelmi irodáját.

Azt mondták, hogy hatósági jogkörrel bírnak, tehát odamennek, és levágnak bármit, amit kell és úgy ítélnek - AZONNAL.

Aztán a bírság megy a szomszédnak.

A kritérium az, hogy nem okozhat sem kárt, sem veszélyhelyzetet, sem rendes használatban akadályt a szomszéd fája-bokra, stb.

Szal hívd fel őket, és érdeklődj.

Előzmény: cucu (77206)
murray Creative Commons License 2015.02.02 0 0 77211

durva. felmész a tetőre és láncfűrésszel igazat teszel. én is levágtam minden átlógó fát. fél fákkal van tele a telekhatárom.

Előzmény: cucu (77206)
rferi Creative Commons License 2015.02.02 0 0 77210

Mert 45 ezres az is, viszont nincs róla senkinek érdemi infója, hogy műkszik-e majd, vagy sem.

Számottevően nem olcsóbb egy tutibiztos megoldásnál, viszont számottevően rizikósabb, és nem játszhatok mások pénzével.

Csak a tutibiztos megoldásban vezetékezni kell, meg meglelni a baromi zsúfolt helyen azt a sarkot, ahová fel tudom kezelőszervileg szerelni a szabályzót, míg a másiknál minden bement volna a padló alá.Ezért szerettem volna vellany nélkülit.

Előzmény: halaloszto (77204)
halaloszto Creative Commons License 2015.02.02 0 0 77209

azt a szivattyut baromira nem erdekli ha teljesen elzarod az sem. nekem volt hogy el lett felejtve es total elzart csapra dolgozott ket napot. meg forro sem lett csak meleg. az a kerdes osszesen hogy lesz-e eleg szallitasa. 

 

nyitott vagy zart a vizkor?

 

Vajk

Előzmény: vftsforever (77208)
vftsforever Creative Commons License 2015.02.02 0 0 77208

 

Sziasztok!

 

Egy kis segítségre lenne szükségem, de egy kicsit OFF téma lesz , remélem nem gond, de Ti talán értetek hozzá!

A gondom az, hogy aluminium AWI hegesztéssel foglalkozom, elég összetett rendszer kell ahhoz, hogy normálisan lehessen dolgozni vele.

Tehát a gondom az, hogy a hegesztőpisztolyt egy külön vízhűtőkör hűti, ám sajnos ez már a végét járja , ezért elkezdtem egy újat építeni magamnak. Amiben a segítség kellene, hogy milyen szivattyú az, ami megbízható, feleslegesen nem túl nagy, és nem is túlságosan hangos. Nyilván egy műhelybe nem baj ha van hangja, de nem ritka, hogy folyamatosan sokáig kell menjen. Annyi a feladata, hogy 3méter magasságig felnyomja a vizet egy 4-5mm-es csőrendszeren(ugye ez a pisztoly belseje). Amire gondoltam, az a fűtésrendszerekben levő keringető szivattyú, viszont az szerintem nem bírná ha a vékony csővel így lefognám, és egyébként is , nekem nem kell nagy szállítási mennyiség, hisz összesen 5liter víz van az egész hűtőrendszerbe. 

 

Tehát a kérdés az, hogy a fűtésrendszerben levő keringető szivattyú bírná e hosszú távon, vagy sem? Esetleg még megfordult a fejembe olyan, hogy csinálok egy T elosztót és egy golyóscsappal beállítom, hogy vissza tudjon menni a tartályba a víz, és akkor nem fojtom le nagyon a szivattyút, vagy nem gond neki?

Mr. Cool Creative Commons License 2015.02.02 0 0 77207

Annyit számít a sok kapcsolás? A kazán nem köszöni meg vagy a pénztárcám? Bár gondolom egyik sem:)

Előzmény: lala1961 (77094)
cucu Creative Commons License 2015.02.02 0 0 77206

Nem. Nekem a kéményembe hullik a szomszéd vörösfenyője. De rajtam kívül senkit sem izgat. Pedig a szakértő leírta, hogy életveszélyes a fa. És nem csak emiatt. Ez már 14 éve húzódik.

Előzmény: lavendeer (77193)
c-stahl Creative Commons License 2015.02.02 0 0 77205

Miért vetted fikázásnak?

A leírtak alapján módosítom a javaslatomat.

Venni kell egy locsolótömlőt, rákötni a vízhálózatra (jó lenne egy visszacsapó szelep), a tömlőt a készülékre, illetve egy-egy gömbcsap a belépő és egy a kilépő ágba.

Ezek után a készülék működésekor (feltételezem ilyenkor állandó felügyelet alatt van) hőmérséklet emelkedésekor a belépőági gömbcsapot teljesen, kilépőt a hőmérséklet emelkedésének függvényében nyitni.

Ennél olcsóbb megoldás nincs.

 

Előzmény: rferi (77203)
halaloszto Creative Commons License 2015.02.02 0 0 77204

hatdemost a haromjaratu szelep a termofejjel miertisnemjo???

Előzmény: rferi (77203)
rferi Creative Commons License 2015.02.02 0 0 77203

Jobban örültem volna, ha  a kérdésemre tudsz érdemi infót adni ahelyett, hogy fikázod az általad nem is ismert rendszert :(

Neked is, és mindenki másnak köszönöm, hogy foglalkoztatok a kérdéskörrel. Gyakorlatilag a feladat megoldásához nem jutottam annál közelebb, mint ahol eredetileg voltam.

Marad az elektronikus szabályzó egy motoros szeleppel. 54 ezresből.

Előzmény: c-stahl (77161)
kiggyo Creative Commons License 2015.02.02 0 0 77202

Természetesen akinek nem inge az ne is vegye magára.

A nagy gond a legtöbb építőipari szakmában az, hogy sokszor az adott nagyobb projektre az utcáról feltupírozzák a létszámot, és tapasztalat, odafigyelés nélkül szerelnek. A kár nem az elvesztegetett munkadíj, hanem az ázások.

 

A cégünknél minden évben jön elő újabb ázás a falból, jellemzően a falikorongok presses kötéseinél.

Úgy tudom hogy rendszerben kellene használni a présszerszámot, azaz ugyanattól a gyártótól kellene csövet és idomot is használni. 

No itt ami a polcon volt minden be lett építve, meg is lett az eredménye.

 

Lehet félreérthetően fogalmaztam, nem minden szerelő rossz, csak sok a kókler, sok a szakmai hiányosság miatti hiba.

Előzmény: morgen66 (77199)
morgen66 Creative Commons License 2015.02.02 0 0 77201

A cső és az idomok voltak rosszak.

Gyári hibás volt a cső,de nem merték bevállalni,hogy az idomok bent maradjanak,így az idomokat is cserélni kellett.

 

Előzmény: pajaci (77200)
pajaci Creative Commons License 2015.02.02 0 0 77200

"a rossz minőségű ötrétegű cső és az idomok miatt.(henco)"

Vagy a rossz minőségű szerelés miatt?

Előzmény: morgen66 (77199)
morgen66 Creative Commons License 2015.02.02 0 0 77199

"sok dögevő szerelő ropogtat mindenféle gyártmányú idomot egyfajta szétkopott géppel"

 

Sajnos vannak kontárok, mint a te szakmádban is, és sok a mek-mester,azt szeretem mikor a kőműves szerel kulcsos idommal.

 

De enged meg , hogy védelmembe vegyem azokat a tisztességes szerelőket, akik megfelelő présgéppel dolgoznak.

Volt olyan eset, hogy egy nagy  csarnokot kellett visszabontani, a rossz minőségű ötrétegű cső és az idomok miatt.(henco)

Na azóta én se szerelek Hencó-val.

Előzmény: kiggyo (77189)
morgen66 Creative Commons License 2015.02.02 0 0 77198

Katasztrófa védelem, kerületileg illetékes polgármesteri hivatal ott megmondják ,hogy milyen osztály foglalkozik vele.

 

Csak óvatosan,mert ha nálad vagy az épületben is szakszerűtlen a gázszerelés, akkor téged vagy az egész házat is kizárhatják a gázszolgáltatásból.

Előzmény: lavendeer (77191)
halaloszto Creative Commons License 2015.02.02 0 0 77197

elbaszni, hozzanemerteni mindent lehet. az aki nem tudod hibatlant csinalni a presses geppel, az a kulcsossal sem tudott volna.

 

vajk

Előzmény: ottakring (77196)
ottakring Creative Commons License 2015.02.02 0 0 77196

Ha már dolgoztál volna présgéppel, tudnád hogyan működik, ezt nem írtad volna le.

Előzmény: kiggyo (77189)
ottakring Creative Commons License 2015.02.02 0 0 77195

De remélem, nem gázt akar szerelni vele?

Előzmény: salieri81 (77177)
murray Creative Commons License 2015.02.02 0 0 77194

Főketüszt próbáltad?  panel vagy tégla társasház? 

Előzmény: lavendeer (77191)
lavendeer Creative Commons License 2015.02.02 0 0 77193

Nálatok is egy albán pékség  büdösít szerteszét? Nálunk 2 éve(!!!) megy a cirkusz, es a hivatalok nem tesznek semmit a felszolitgatásokon kívűl. 

Hogy a fenébe ilyen elnézőek velük?

Előzmény: cucu (77192)
cucu Creative Commons License 2015.02.02 0 0 77192

Amíg nem történik tragédia, fordulhatsz bárhová, nem foglalkoznak vele... Azért mondom ezt, mert hasonló esetet élek át a mai napig, de mindenhonnan lepattintanak. Még a híres RTL-hez és a TV2-höz is fordultam, hogy nyilvánosságot kapjak, de finoman azt válaszolták, hogy ez így nem tartozik rájuk.

Vagyis ez nem hír nekik. Akárcsak a te eseted sem.

Bár ne legyen igazam...

Előzmény: lavendeer (77191)
lavendeer Creative Commons License 2015.02.02 0 0 77191

Sziasztok!

Remelem kapok itt vélemenyt,tanácsot.

Röviden arról van szó, hogy a lakásunk alatt üzemel egy pekseg, mindenféle elszivó nélkül, a legaknán szoktak szellőztetni, ami miatt már kivertük a balhet, de hiába.

A másik, hogy azt vettem észre, hogy a fürdőszobai gázbojler alu csőve menten, a fali lyukból is szivárog időnkent a szag, ehhez letrát szedtem elő , felmásztam es világossá vált, hogy ezek a kémenyünkön is nyomják a gőzt. Szerintetek ez normális? Okozhat bármilyen veszélyt? Ha igen,hová forduljunk? Neha a cső is meleg, mikor csak az őrláng eg órák óta. Itt csak vízmelegesre használjuk a gázbojlert, gázfűtéses az egész ház, van amikor az utcai front felől, a gázkonvektor parapeten is jön a szag. Rendben van ez igy?

kiggyo Creative Commons License 2015.02.01 0 0 77190

ott a pont. A fűtésrendszerem kísérleti fázisában flexi cső helyett is kulcsos idom volt, könnyű volt bontogatni, variálni. A végleges állapotot meg leforrasztottam rézzel.

Előzmény: pajaci (77188)
kiggyo Creative Commons License 2015.02.01 0 0 77189

Jópár évvel ezelőtt néztem, akkor is határozottan olcsóbb volt a kulcsos.

A megbízhatóságról sajnos annyit hogy a sok dögevő szerelő ropogtat mindenféle gyármányú idomot egyfajta szétkopott géppel, a környezetemben lévő presses ház, telephely szerelések MINDEGYIKÉBEN volt sajnos elázás emiatt.

Ez sajnos a magyar valóság, az a rohadt szakszerűtlen szerelés. A kulcsosnál talán egy kicsit kisebb ez a rizikó.

 

Előzmény: C20NE (77186)
pajaci Creative Commons License 2015.02.01 0 0 77188

A megbízhatóság nálam a rézcsövet jelenti.

Előzmény: C20NE (77186)
pajaci Creative Commons License 2015.02.01 0 0 77187

Vízszerelő haverom anno azért vett nagy pénzért pressgépet, mert kiszámolta hogy fél év alatt behozza az árát a kulcsossal szembeni árelőny miatt.

Előzmény: C20NE (77186)
C20NE Creative Commons License 2015.02.01 0 0 77186

Csak a kulcsost keves helyre lehet beepiteni es nemigen fogyott igy gondolom csokkentettek az arat. A presidomot meg megveszed mivel ha megbizhatoan akarod csinalni azt hasznalod ;-)

Előzmény: pajaci (77185)
pajaci Creative Commons License 2015.02.01 0 0 77185

Régen a pressidom sokkal olcsóbb volt a kulcsosnál, érdekes ez a változás.

Előzmény: c-stahl (77182)
sjohn Creative Commons License 2015.02.01 0 0 77184

...mindig szerettem a hozzád hasonlóknak dolgozni...:-))

Előzmény: salieri81 (77183)
salieri81 Creative Commons License 2015.02.01 0 0 77183

nem arról van szó,hogy nem bízom ,csak szeretném azért kontrollálni ,nem vakon fizetni  a dolgokat.

Előzmény: sjohn (77179)
c-stahl Creative Commons License 2015.02.01 0 0 77182

hasonlítsd össze az árakat, én megtettem.

Előzmény: pajaci (77181)
pajaci Creative Commons License 2015.02.01 0 0 77181

Mert azok még drágábbak...

Előzmény: c-stahl (77180)
c-stahl Creative Commons License 2015.02.01 0 0 77180

vagy kulcsos idomokkal

Előzmény: salieri81 (77175)
sjohn Creative Commons License 2015.02.01 0 0 77179

...miért pont őt választottad, ha ennyire nem bízol benne?...vagy miért nem mentél te el megvenni a szutykokat?...

Előzmény: salieri81 (77177)
c-stahl Creative Commons License 2015.02.01 0 0 77178

ezek listaárak.

inkáb a honlapról szedd le az árakat. már tudod mit keress.

Előzmény: salieri81 (77175)
salieri81 Creative Commons License 2015.02.01 0 0 77177

Nem :)

A gázos hozott ilyen anyagot. A csövet és idomokat.

Előzmény: pajaci (77176)
pajaci Creative Commons License 2015.02.01 0 0 77176

Te csukott szemmel előre bevásároltál, és most utólag összehasonlítod az árakat?

Előzmény: salieri81 (77175)
salieri81 Creative Commons License 2015.02.01 0 0 77175

Ezek aztán nem semmi árak,meg vagyok lepődve.

Lehet rézzel olcsóbban jöttem volna ki.

Előzmény: c-stahl (77174)
c-stahl Creative Commons License 2015.02.01 0 0 77174

Tigris K1 Falikorong 90' bm, D16x1/2 16 x 1/2" FTFB16 10 3 098 Ft/db

Tigris K1 Falikorong 90' bm, D20x1/2 20 x 1/2" FTFB20 10 4 331 Ft/db

Tigris K1 Falikorong 90' bm, D20x3/4 20 x 3/4" FTFB201 10 4 500 Ft/db

 

Tigris K1 Red, T-idom D20x16x20 20 x 16 x 20 FTT201620 10 3 128 Ft/db

Tigris K1 Km, csatlakozóidom D20 x 3/4 20 x 3/4" FTMK201 10 2 525 Ft/db

 

Többrétegű cső D16x2mm/200m 16 x 2,00 FFC16 200 m 799 Ft/fm

Többrétegű cső D20x2,25mm/100m 20 x 2,25 FFC20 100 m 1 199 Ft/fm

 

 

Előzmény: salieri81 (77173)
salieri81 Creative Commons License 2015.02.01 0 0 77173

Meg tudod mondani a képen lévő idomok darabja mennyibe kerül, ott ezer kód van az xls-ben :)

Előzmény: c-stahl (77172)
c-stahl Creative Commons License 2015.02.01 0 0 77172

pedig vannak képek is, honlapon is, xls fájlban is.

linkelt készlet szerintem is jó, és ahogy írták a csőanyagnak megfelelő csatlakozással kell venni.

Előzmény: salieri81 (77168)
C20NE Creative Commons License 2015.02.01 0 0 77171

Jo minosegu szelep en is ettol a gyartotol vettem es tokeltesen mukodik. Olyan adaptert veszel hozza amire csak szukseged van: rez, otretegu...

Előzmény: salieri81 (77170)
salieri81 Creative Commons License 2015.02.01 0 0 77170

Gondolom a wavinra gondoltál,hogy jó minőség.

Ez a termoszelep megvásárolható nyugodtan?Vagy nézzek más márkát?

Előzmény: Törölt nick (77169)
Törölt nick Creative Commons License 2015.02.01 0 0 77169

igen ! jó minőségű dolgok ezek. 5 rétegű csatlakoztatható mindenhez.

Előzmény: salieri81 (77168)
salieri81 Creative Commons License 2015.02.01 0 0 77168

Köszi ezeket én is megtaláltam ,de nem nagyon tudom beazonosítani az idomokat.

Jó minőségű cuccok ezek? Remélem gond nem lesz vele.

Radiátorokra ezt a készletet mennyire ajánlott megvenni, 5 rétegű cső csatlakoztatható erre?

http://www.epuletgepeszaruhaz.hu/index.php/danfoss-1-2-sarok-termosztatikus-szelepkeszlet-rae-ra-fn-rlv-s.html

Előzmény: c-stahl (77167)
c-stahl Creative Commons License 2015.02.01 0 0 77167
Előzmény: salieri81 (77166)
salieri81 Creative Commons License 2015.02.01 0 0 77166
Előzmény: salieri81 (77165)
salieri81 Creative Commons License 2015.02.01 0 0 77165

Sziasztok!

Az alábbi alkatrészek árát valaki meg tudná mondani,csak ,hogy képbe legyek az elszámolásnál?

A csőre elég a méterenkénti ár.

köszönöm!

G.b.Reload Creative Commons License 2015.02.01 0 0 77164

SZ.K.

 

Januári fűtési gázfogyasztás 223m3/100nm/állandó 22,5 feletti hőmérséklet.

Előzmény: G.b.Reload (76265)
CoIie Creative Commons License 2015.02.01 0 0 77163

Konkrétan a kép középvonalától felfele vannak lapos szilárdest relék (3 db.) a nagy kondi körül. Balra van 3 egyforma fekete hagyományos relé is. (Legalábbis ezen a képen, mert kissé variálódik néhány alkatrész a sorozattól függően)

Úgy tűnik most, hogy a köv. hétvégén tudom leghamarabb megnézni ismét.

 

Előzmény: pajaci (77153)
halaloszto Creative Commons License 2015.02.01 0 0 77162

nem ismerem a konkret gepet csak a kornyezetet. eselyes hogy akar ennel is kevesebbet.

 

Vajk

Előzmény: c-stahl (77161)
c-stahl Creative Commons License 2015.02.01 0 0 77161

Én nem tudtam hogy 50x1 órát üzemel.

Ha ennyit, akkor ennyit.

Magam részéről az egyenszilárdságú dolgokat szeretem.

(Ja a hűtés módjára azért ne legyetek büszkék :-))

Előzmény: halaloszto (77160)
halaloszto Creative Commons License 2015.02.01 0 0 77160

ha jól értem ez egy kísérleti berendezés. összesen fog üzemelni évente 50x1 órát, és lehet sokat mondtam. csúcsban lehet 20kW, de átlag csak 5kW. akkor évente 250kWh-ról beszélünk, az 10ezer forint. kb 5m3 víz, az még 5ezer. egy fillért nem éri meg rákölteni hogy ne vesszenek ezek kárba.

 

Vajk

Előzmény: c-stahl (77158)
rferi Creative Commons License 2015.02.01 0 0 77159

Egy oktatási intézményben nem tudok ilyesmivel szórakozni

Előzmény: c-stahl (77158)
c-stahl Creative Commons License 2015.02.01 0 0 77158

Készíts HMV-t, fűts vele.

Persze 0 forintból ez az elfolyóvizes dolog a megoldás. Gondolom a vízszámlát nem neked kell majd fizetni :-)

Vízkövesedés az nem jelent veszélyt?

Táguló víz problémáját is érdemes megoldani.

A többi eszközhöz, amihez a hűtést akarod megoldani, honnan van pénz?

Előzmény: rferi (77156)
rferi Creative Commons License 2015.02.01 0 0 77157

bármi van benne, amit akarunk, mivel a frekiváltó programját is mi írjuk. Már persze, ha lehet annak nevezni őket, mivel mindenféle trükköket tudnak majd. 3fázis párhuzba kapcsolása a nagyobb áram  miatt, motoremuláció, amikor nem hajt, hanem fogyaszt, és hasonlók..

Előzmény: halaloszto (77126)
rferi Creative Commons License 2015.02.01 0 0 77156

ès mit kezdjek a hővel? ès honnan vegyek pènzt a berendezèsre??

Előzmény: dejódió (77128)
rferi Creative Commons License 2015.02.01 0 0 77155

miért zsákutca?

Előzmény: Wattocsak (77127)
cucu Creative Commons License 2015.02.01 0 0 77154

Nem tudom, csak az van benne???

Előzmény: pajaci (77152)
pajaci Creative Commons License 2015.02.01 0 0 77153

A csatlakozók forrasztásait is.

Előzmény: CoIie (77150)
pajaci Creative Commons License 2015.02.01 0 0 77152

Szilárdtestrelé érintkezőit?????????

Előzmény: cucu (77151)
cucu Creative Commons License 2015.02.01 0 0 77151

Relék érintkezőit tisztítsd meg. Kontakt tisztítóval, majd utána húzz át köztük egy fehér papírt, amíg tiszta nem marad.

Esetleg polír papírral is tisztíthatod.

Előzmény: CoIie (77147)
CoIie Creative Commons License 2015.01.31 0 0 77150

Igen, jó ötlet (csak nem akartam mindenhol, ahol "nem indokolt" egy újabb nyomot hagyni a ráforrasztással). Egy nagyobb kondit kivettem/visszatettem az alatta haladó vezetékezés ellenőrzése miatt... A szinte egyedüli nagy alkatrész a hálózati trafó (+a gyújtótrafó, egy-két kondi).

Ahogy láttam egy külön trafótekercs mehet a lángérzékelés áramköréhez - ahogy végigkövettem a csatlakozótól. Mintha egy diódán keresztül menne a jel egy szilárdtest relébe... Amint újra odakerülök megpróbálom a forrasztást, akár a trafóval kezdve... Köszönöm a válaszod.

Előzmény: pajaci (77149)
pajaci Creative Commons License 2015.01.31 0 0 77149

Át kellene forrasztani az összes nagyobb méretű alkatrészt, az esetek 50%-ában javulást hoz.

Előzmény: CoIie (77147)
Törölt nick Creative Commons License 2015.01.31 0 0 77148

Az enyém még a szekrény tetején várja a végzetét. Ahhoz is adtak 2 kis bitumenlapot, de az ősöknél, a 18 éve beszerelthez még 2x akkora volt. Lehet ilyet külön kapni?

Előzmény: joevagyok68 (77146)
CoIie Creative Commons License 2015.01.31 0 0 77147

Igazán semmilyen szemre rossz kontaktust nem találtam. Az érzékelő elektródát is átmenetileg kicseréltem, de nem volt változás.

Az viszont jelentkezik, ha éppen nem érzékeli a már begyújtott lángot, de megütögetem pl. a szilárdtest relék egyikét a panelon, akkor kigyúllad a sárga LED és begyújtva marad, tehát jól működik. De vajon hol lehet kontakthiba, ha a forrasztások jónak tűnnek?

Előzmény: pajaci (77058)
joevagyok68 Creative Commons License 2015.01.31 0 0 77146

Lehat azert jol jon amikor is az 1ikben hutod a sert jeges vizben, a masikban meg olvasztod ki a fagyasztott hekket langyosban ! :-) 

 

Amugy a mienkben pont ott van a tulfolyo....orulnek ha suttyomban kifujna valaki es szerelni kene...

 

A zajcsillapittas vegett a mienken alulra van ragasztva valami 2 mm vastag szivacsos anyag.

Előzmény: Törölt nick (77145)
Törölt nick Creative Commons License 2015.01.31 0 0 77145

De csak a kettő között? Ott nem nagyon zavar szereléskor. A többi részen miért nem fújták tele? Zajcsillapítás miatt lehet?

Előzmény: pajaci (77144)
pajaci Creative Commons License 2015.01.31 0 0 77144

Azért jó, hogy szenvedjen vele aki netán szétakarja szedni.

Előzmény: Törölt nick (77143)
Törölt nick Creative Commons License 2015.01.31 0 0 77143

Ilyennel nem találkoztam eddig. Mennyire általános dolog, illetve mennyire-miért lenne jó purhabbal befújni a beszerelt mosogatótálcák közé? Amcsi divat?

 

pajaci Creative Commons License 2015.01.31 0 0 77142

Lehet műhelycsarnokot fűt gázzal.

Előzmény: joevagyok68 (77140)
pajaci Creative Commons License 2015.01.31 0 0 77141

Én gázra gondoltam, azért írtam ezeket.

Előzmény: joevagyok68 (77140)
joevagyok68 Creative Commons License 2015.01.31 0 0 77140

oszt milyen kazan is az ?

"Vegyes" vagy gaz 'tuzelesu' ?

Mivel

Gazbol  meg a 22 is 'sok' mostanaban, minek vennel 32-est ?

Ha meg vegyes, akkor minek kemenysepro ?

es - a kovetkezo hozzaszolasban emlitett - beuzemelo ? /hacsak nem faelgaz es a garihoz kell(het) /

Előzmény: dicsakbuksii (77137)
pajaci Creative Commons License 2015.01.31 0 0 77139

Megkérdezed az üzletben ahol majd vennéd a kazánt, hogy a ki a hivatalos üzembehelyezőjük. Elmondod neki a helyzetet, és ő elmagyaráz, elintéz mindent, attól függően milyen mélyen nyúlsz a zsebedbe.

Előzmény: dicsakbuksii (77137)
sjohn Creative Commons License 2015.01.31 0 0 77138

Kivel szerelteted be, mert a szerelő, mielőtt bármit csinálna, elkéri a kéményseprő szakvéleményt?

Előzmény: dicsakbuksii (77137)
dicsakbuksii Creative Commons License 2015.01.31 0 0 77137

Üdv

 

Azt szerentém kérdezni, hogy ha elromlott a régi kazánunk és veszünk egy újat, beszereltetjük, akkor utána mi dolgom van a kéményseprőknél? kell valamit fizetni? nagyobb teljesítményű mint a régi (22 -> 32 kW)

Törölt nick Creative Commons License 2015.01.31 0 0 77136

Hát igen.

Előzmény: pajaci (77135)
pajaci Creative Commons License 2015.01.31 0 0 77135

Az hogy mi a logikus, és mi a törvény, az abszurdisztánban két külön fogalom.

Előzmény: Törölt nick (77134)
Törölt nick Creative Commons License 2015.01.31 0 0 77134

Ezt nem vitatom, csak hülyeség az egész. Ha tisztességesen megcsinálom a jelenlegit, ugyanoda jutok szellőzésileg. Az ablaküveg persze nem hőszigetelt, de ez gáztűzhely tekintetében mindegy.

Előzmény: Lacivill (77133)
Lacivill Creative Commons License 2015.01.31 0 0 77133

Meg kell érteni, hogy a te érdekedben kell levegő utánpótlásról gondoskodni.

Előzmény: Törölt nick (77131)
0l0 Creative Commons License 2015.01.31 0 0 77132

Asszem a két teljesítmény fokozatot.

Előzmény: laci19791202 (77130)
Törölt nick Creative Commons License 2015.01.31 0 0 77131

Ha a konyhában a jelenlegi 30 éves ablakot műanyagra cserélem, azt a gázosok ugye nem nagyon komálják. Na de ha fából készültre cserélem, azt sem? És ha tisztességesen beállítom, körbeszilikonozom, leszigetelem a jelenlegi ablakot, így az ugyanúgy nem fog egy pisszenésnyit sem szellőzni, az senkit nem zavar?

laci19791202 Creative Commons License 2015.01.31 0 0 77130

Sziasztok.

Bocsánat de mit jelent egy keringető szivattyún a P1 és P2?Köszönöm.

morgen66 Creative Commons License 2015.01.30 0 0 77129

Elmegy. Szivattyú bírni fogja?

Szigetelés elég.

 

 

Előzmény: PSASA (77123)
dejódió Creative Commons License 2015.01.30 0 0 77128

Miért nem hűtöd hőszivattyúval? A hőforrást még fel is lehet részben használni hozzá akár vizes hőcserélőn keresztül is.(2 fázisú rendszer) De egy passzív hűtést is lehet rátenni(free cooling rendszer) Vagy vegyesen. A kidobott hőt is lehetne hasznosítani a már említett módon.

Előzmény: rferi (77125)
Wattocsak Creative Commons License 2015.01.30 0 0 77127

A kimenő vezetékre tenni az érzékelőt zsákutca!

Milyen drága a megvédendő berendezés? Ha drága értékes a cucc akkor egy vízautomatára bíznám, de ha nem olyan veszélyes az ára akkor egy vegyes kazánhoz alkalmazott vészhűtő is megteszi. Szerintem:-)

Megjegyzem a hálózati vízhűtéstől drágábbat még nem találtak fel.

Előzmény: rferi (77125)
halaloszto Creative Commons License 2015.01.30 0 0 77126

azért bízom benne hogy van valami riasztás a hűtött eszközön túlmelegedésre.

Előzmény: rferi (77125)
rferi Creative Commons License 2015.01.30 0 0 77125

Köszi, hogy foglalkozol a bajommal.

A hőmérőt mindenképpen a kimenő vízre tenném, és legfeljebb - ha a szabályozó tökig le tud zárni- egy erősen szűkített kerülőágat rakok a szelephez, ami mindenképpen áramlást biztosít neki.

Amúgy is raknék egy totál elzárót az egész miskulanciára a legelején, ha nincs használva, akkor tuti ne legyen semmi élő nyomás alatt

Előzmény: halaloszto (77124)
halaloszto Creative Commons License 2015.01.30 0 0 77124

aki használ ilyen keverőszelepeket nézze már meg, hogy ez pl jó lehet-e?

 

http://www.gepesz.hu/termekek/szerelvenyek_csovezetekek/golyoscsapok_szelepek/keveroszelepek_csapok_zonaszelep/HON_TM200-3-4E 

 

ennek beépített a hőmérője.

 

ideálisan a primer kimenetére kellene tenni a hőmérőt a hőcserélőnek, egyrészt mert az kell megfelelő legyen a gép hűtéséhez, másrészt meg azon a koron mindig van áramlás. a hidegvizes kort ha a szelep elzarja nem lesz aramlas es nem lesz mit merni.

 

 

vajon erre a szelepre: http://www.gepesz.hu/termekek/szerelvenyek_csovezetekek/golyoscsapok_szelepek/keveroszelepek_csapok_zonaszelep/HON_V135-3-4B 

 

ez a termofej jó?

 

http://www.gepesz.hu/termekek/szerelvenyek_csovezetekek/radiatorszelepek__termosztatfeje/termosztatfejek_kezikerekek/HER_1-7421-00

 

Vajk

Előzmény: rferi (77122)
PSASA Creative Commons License 2015.01.30 0 0 77123

Sziasztok,

 

Kérdésem lenne radiátoros fűtés kialakítás ötrétegű csővel témakörben:

- d16 csővel kb 12m-re lévő 2db 800x600 lapradiátor elmegy-e egy pár csövön ami a radiátor előtt van 'T' idommal elosztva két felé? (Mi lehet a max. teljesítmény amire a d16 cső elegendő?)

- padlóban (beton) a radiátorhoz vezetett csövet kell-e külön gégecsőbe rakni vagy elég csak a szigetelés rá (vízhőfok 60-70°C)?

rferi Creative Commons License 2015.01.30 0 0 77122

na, közben találtam valami tavalyi árlistát a danfossnál, és potom 408 000.-ből kijön a nekem kellő páros.

huh, innom kell.

Előzmény: rferi (77121)
rferi Creative Commons License 2015.01.30 0 0 77121

Elsőre ez is járhatónak tűnik.

Mondjuk a témában teljesen járatlan vagyok, kellenének ezekből akapható tipusok kódjai, mert el vagyok veszve..

Amúgy a linkeden megtaláltam ezt:

http://futestechnika.danfoss.com/PCMPDF/VDJKB347_AVT_VGU-F.pdf

 

Ami elsőre jónak tűnik, bár kicsit rémísztően nagy, a legkisebb is 4m3/óra áteresztős.

Cserébe viszont eszméletlen méretű a hőmérője! Hová tudnék akkora bigyót bemeríteni??

Ami tényleg pozitívuma, hogy ez tuti kibírja a nagy nyomáskülönbséget a két oldala között a teljes működési tartományban. A telefonban említett Siemens szelepek azért 4barnál megállnak.

Kérdés, vajon menyibe fáj?

És az ötletedre tipust tudsz mondani?

Előzmény: halaloszto (77120)
halaloszto Creative Commons License 2015.01.30 0 0 77120

mi lenne ha

 

veszed a termofejet aminek kapillaros erzekeloje van. ezzel az a gond hogy melegre zar

 

es a fojtoszelep helyett egy haromjaratu szelepet teszel be. eredetileg ennek egyik aga a hidegviz, a masik aga a melegviz, es ugy kever hogy ha tul meleg a kimenet akkor a hideg fele nyit, ha tul hideg a kimenet akkor meg a meleg fele nyit. hat a meleg bemenetere nem kotsz semmit hanem ledugozod es kesz. igy pont azt csinalja amit kell.

 

Vajk

Előzmény: rferi (77119)
rferi Creative Commons License 2015.01.30 0 0 77119

Naszóval Halálosztó értette meg a feladatot.

Én két darab elektronikus berendezést kéne hűtsek a vízzel a hőcserélőkön keresztül, és spórolni akarok a csapvízzel, ezért ha kicsi a hűtési igény az elektronikus cuccban, akkor lejjebb venném az elfolyó víz mennyiségét, addig, hogy a kimenő víz szintén 60 fokosra melegedjen fel.

A legnagyobb számított veszteségünk 18-20 kilowatt, ezt kell elhűtenünk a csapvízzel, de a minimum majdnem nulla.

Szóval ha nincs szabályzás, akkor a maxra kell méretezni az elfolyást, de az meg totál vízpazarlás az alacsony teljesítményű tartományban.

És időkitöltés szerint jóval többet megy majd a cucc kis teljesítményeken, mint nagyon.

halaloszto Creative Commons License 2015.01.30 0 0 77118

viszont ugytunik forditva kellene, valamit hut a hocserelo, es igy kell 60-ra szabalyozni a hidegvizet.

Előzmény: joevagyok68 (77116)
halaloszto Creative Commons License 2015.01.30 0 0 77117

sehol nem irt keveroszeleprol. 

 

Vajk

Előzmény: joevagyok68 (77116)
joevagyok68 Creative Commons License 2015.01.30 0 0 77116

biztos ?

 

Mert ugye ezt írta

"- a hálózati vizet kéne szabályoznia (max 6bar ugye)

- kimenő oldalán két nagy hőcserélőbe menne a víz, onnan a lefolyóba, ez esetleges nyomáskérdésben érdekes lehet

- a kimenő oldali víz hőfokát kéne egy adott hőmérsékleten tartani, mondjuk 60°C, és ehhez a kimenő csőre kéne fel/berakni a hőmérő szenzorát."

 

Ez alapján nem lehet tudni hogy minek a "Kimenő oldaláról" ír ! 

Mert ha a keverőszelepéről, akkor akár az említett VTA-Hwell mégiscsak jó lehet !

Előzmény: halaloszto (77114)
halaloszto Creative Commons License 2015.01.30 0 0 77115
Előzmény: halaloszto (77114)
halaloszto Creative Commons License 2015.01.30 0 0 77114

tehat neked egy fojtoszelep kell, nem kevero. 

 

olyan kell, hogy ha a hocserelo utan a vized hidegebb mint 60 fok akkor nyit, ha melegebb akkor zar.

 

 

Előzmény: rferi (77110)
joevagyok68 Creative Commons License 2015.01.30 0 0 77113

Mostmá kíváncsivá tetél....

A milyen projekt/élethelyzet az, amikor a csatornába menő víz hőfokát kell 60 fokon tartani ? 

Vagy most se értem mi is a feladat ?  :-)

Előzmény: rferi (77110)
joevagyok68 Creative Commons License 2015.01.30 0 0 77112

NEM ! NEM !

Félreértettem a feladatot !

Ezek NEM JÓK NEKED !

bocsi...felületes voltam..

Előzmény: joevagyok68 (77111)
joevagyok68 Creative Commons License 2015.01.30 0 0 77111

Ezeknek a termosztatikus szelepeknek  a 2. pontod kritériuma nem tudom mennyire befolyásolja negatívan a működésüket!

 

DE ha nem , akkor az alábbiak akár jók is lehetnek.

- ESBE VTA "sorozat"---321-372-572 stb.  Ezeknek nincs "érzékelője"  ! Magán a keverőszelepen állítod be a kívánt hőfokot. áruk 13-tól-25eFT-ig

- honeywell V135 + T 100 R. Ez "érzékelős"....ÉS drága ...2 kettő együtt 50eFT körül van újonnan....

Előzmény: rferi (77110)
rferi Creative Commons License 2015.01.30 0 0 77110

Kedves Hozzáértők!

 

Segítségképpen tudnátok nekem ajánlani olyan termosztatikus szelepet, ami a következőket tudja:

 

- a hálózati vizet kéne szabályoznia (max 6bar ugye)

- kimenő oldalán két nagy hőcserélőbe menne a víz, onnan a lefolyóba, ez esetleges nyomáskérdésben érdekes lehet

- a kimenő oldali víz hőfokát kéne egy adott hőmérsékleten tartani, mondjuk 60°C, és ehhez a kimenő csőre kéne fel/berakni a hőmérő szenzorát.

 

Petya79 Creative Commons License 2015.01.30 0 0 77109

A Honeywellnél a szabályozás 0,5 fok, azonban az érzékelője 0,1 fok pontosságú. Ha az érzékelt hőmérséklet akár 0,1 fokkal meghaladja a beállított hőmérsékletet, akkor onnantól kezdve még a minimális fűtési időre sem kapcsol be a termosztát! Én pont emiatt vettem meg inkább a Beryl-t.

Előzmény: halaloszto (77107)
citcat 18-16v Creative Commons License 2015.01.30 0 0 77108

Az ötrétegű csövet nem szabad kifúrni mert a rétegek közé megy a nyomás és teljes hosszában szarrá megy. Azt el kell vágni és t idomot belerakni ehhez persze le kell engedni a vizet vagy el kell fagyasztani (ha van elég hely és nem áramlik benne a víz)

Előzmény: JanikaS (77090)
halaloszto Creative Commons License 2015.01.29 0 0 77107

nekem kellene erteni. van az a nagy sav, a masfel fok, ha azon kivul van akkor fixen be vagy kikapcsol es kesz.

 

ha beert a savba, akkor eldonti hogy hany %-ban kell futeni, es az alapjan kapcsolgat a 20 perces ciklusokban. de persze ekkor is donthet ugy hogy 100%-ban futeni kell, es akkor nem lesz kapcsolgatas :-)

 

de ha szepen a beallitott kornyeken van a lakas, es a kazan eloremeno sincs a hatar kozelebe alacsonyra allitva, akkor kapcsolgatni fog mindenkepp. max nem 20 percenkent 2 percre megy hanem 20 percenkent 18-ra. ennel jobbat nem tudsz, mert ha kellene mind a 20 akkor akar keves is lehetne, es akkor nem tudna tartani az elvart hofokot.

 

Vajk

Előzmény: smith (77106)
smith Creative Commons License 2015.01.29 0 0 77106

Igen, ez lenne a logikus.

Nem állítom, hogy pontosan értem a cm707 lelkét, de egyáltalán nem úgy működik, ahogy én gondolom. :-)

Tehát hiába van másfél fok arányossági tartománya, szerintem csak az utolsó fél fokon kezd kapcsolgatni.

 

Előzmény: halaloszto (77105)
halaloszto Creative Commons License 2015.01.29 0 0 77105

erdekes helyzet. ez tartosan fenn tud allni? ahhoz hogy a termosztat folyamatosan jarassa a kazant az kell hogy jelentosen hidegebb legyen a beallitottnal, nem? kulonben mindenkeppen kapcsolgat.

 

Vajk

Előzmény: smith (77104)
smith Creative Commons License 2015.01.29 0 0 77104

Mert van az az üzemállapot, amikor az elvárt teljesítmény >= a kazán által még kiszolgálni képes minimumnál. Ekkor nincs kapcsolás, hiszen a kazán a visszatérőre modulálva teszi a dolgát. Amikor átbillen ezen, na akkor jön a kapcsolás, a periódus kitöltési tényezőjével játék.

 

Előzmény: halaloszto (77103)
halaloszto Creative Commons License 2015.01.29 0 0 77103

miert? o a pd szabalyozos termosztatra gondolt orankent 3 ciklussal.


Vajk

Előzmény: smith (77102)
smith Creative Commons License 2015.01.29 0 0 77102

Az a 72 kapcsolgatás csak akkor annyi, ha az elvárt teljesítmény alatta van a modulációs minimumnak. De akkor a valódi probléma a kazán túlméretezettsége.

Szvsz.

Előzmény: Petya79 (77098)
sjohn Creative Commons License 2015.01.29 0 0 77101

kombikazan mit csinal zuhanyozaskor? percenkent kapcsolgat ki-be.

 

Az egy elég gyatra kazán lehet...

Vagy a zuhanyozási szokás nem tökéletes...

Előzmény: halaloszto (77100)
halaloszto Creative Commons License 2015.01.29 0 0 77100

mihez képest sok. ha tul nagy a teljesitmenye a beallitott eloremenohoz, akkor siman van hogy 5 percenkent kapcsolgat ki-be. vagy egy kombikazan mit csinal zuhanyozaskor? percenkent kapcsolgat ki-be.

Előzmény: Petya79 (77098)
Petya79 Creative Commons License 2015.01.29 0 0 77099

A Computherm nálam is szépen tette a dolgát, a kijelzője is informatív, könnyen leolvasható. A programozása viszont szerintem csapnivalóan rossz, és sajnos túl kevés a programhelye is. A Beryl nagyságrendekkel jobb nála, leszámítva a "futófényes" kijelzőjét, és a szappantartó dizájnt.

Előzmény: Mr. Cool (77092)
Petya79 Creative Commons License 2015.01.29 0 0 77098

Ezt értem, de 20 perces intervallumokkal számolva nem lenne sok egy kondi kazánnak az a napi 72 kapcsolgatás? Így 1 hónap alatt annyi lenne a gyújtások száma, mint eddig másfél év alatt összesen. Pont ezért nem akartam megvenni a gyári Sensyst, vagy valamilyen PI termosztátot.

A Beryllel fél órás intervallumokat tudok megadni, tehát legfeljebb napi 24 ki-be kapcsolást tudnék elérni. De lehetőség szerint ezt is csökkenteném. Majd kipróbálom, hogy éjszakára hosszabb szakaszokban fűtsön, napközben meg rákényszerítem a rövidebbekre.

Előzmény: halaloszto (77086)
pocsolya84 Creative Commons License 2015.01.29 0 0 77097

http://www.conrad.hu/conrad.php?name=Products&pid=560476

 

Itt van egy Conrados, nem tudom, hogy ez megfelelő -e.

pajaci Creative Commons License 2015.01.29 0 0 77096

Nekem is csak guglim van.

Előzmény: smith (77095)
smith Creative Commons License 2015.01.29 0 0 77095

Ehhez egy beárazott linket tudnál?

Nekem nem sikerült.

Előzmény: pajaci (77087)
lala1961 Creative Commons License 2015.01.29 0 0 77094

Nem rossz a Q 7,de ha gázzal mész akkor nem célszerű a legkisebb érzékenységet használni ,mert sok kapcsolása lesz a gázkazánnak.Ha jól emlékszem +-0,1-0.4 c fok között állítható a Q7 érzékenysége.

Előzmény: Mr. Cool (77092)
Mr. Cool Creative Commons License 2015.01.29 0 0 77093

"fél fok"

Előzmény: Mr. Cool (77092)
Mr. Cool Creative Commons License 2015.01.29 0 0 77092

Pár évvel ezelőtt én is játszottam azzal, hogy csak akkor fűtök, amikor otthon vagyok, különben 2 fokkal kevesebb, de nem volt se nem komfortos, se nem takarékosabb. 2 éve át lett alakítva a fűtési rendszerem, a "vendégház" külön szabályozható kört kapott, pont ilyen Siemens termosztáttal, mint amit említettél, a fő részben pedig megmaradt a szintén pont ilyen Computherm. A Siemens egy a szar, A Compu frankó, nekem a programozása is jobban bejön. Az a fél fog nagyon sokat számít, érezhetően ingadozik a hőmérséklet, hol meleg van, hol hideg. A Compuval ugye 4tizeden belül tartja, az kellemes, bár nem észrevehetetlen az sem.

Előzmény: nemazoty (77091)
nemazoty Creative Commons License 2015.01.29 0 0 77091

Sziasztok!

 

17-07 óra között tartózkodunk otthon. Ez esetben költséghatékonyabb állandó (21C) hőmérsékleten tartani a házat vagy inkább a hazaérkezéskor felfűtés (kb. 19,5-ről 21C-ra) a jobb? Általában 17, 20 és 6 órától megy a fűtés kb. egy-egy órát.

Paraméterek: 95 nm (10cm EPS-sel szigetelt) kockaház kis hozzáépítéssel, Termotéka ÖV-28, műa. 5r cső, DÉG lapradiátorok.

 

Érdemes egy Siemens RDE 10.1 termosztátot lecserélni egy Computherm Q7-re? Utóbbi 0,2 C "érzékenységű" (a Siemens 0,5C). Előbbit (tán csak a márkanév miatt?) kétszer annyiért forgalmazzák.

JanikaS Creative Commons License 2015.01.29 0 0 77090

Sziasztok!

Valaki esetleg tud megoldást ötrétegű cső utólagos "meglékelésére"?

Egy radiátort szeretnék betenni, de belül bent a víz:)

köszi

halaloszto Creative Commons License 2015.01.29 0 0 77089

facepalm

Előzmény: halaloszto (77088)
halaloszto Creative Commons License 2015.01.29 0 0 77088

nem mondtam hogy a padlofutes termosztat nem jo. azt mondtam hogy egy olyan termosztat ami mindenkeppen fut x percenkent megoldja a problemat. es nem kell hozza erzekelot hekkelni a kesz padloba.

 

Vajk

Előzmény: pajaci (77087)
pajaci Creative Commons License 2015.01.29 0 0 77087

Egy rendes padlófűtés termosztátnak minimum két érzékelője van, egy a padlóhőmérsékletét nézi, a másik a levegőét. Az egy érzékelős csak kókányolás.

 

 

https://products.ecc.emea.honeywell.com/hungary/ecatdata/pg_th132.html

Előzmény: halaloszto (77086)
halaloszto Creative Commons License 2015.01.29 0 0 77086

tényleg egy olyan termosztát kellene neked mint amit smith irt. ezek nem ugy mukodnek hogy ha hideg van futok, ha meleg van nemfutok. hanem inkabb ugy, hogy huszpercenkent futok 8percet, es nezem hogy hul a szoba vagy melegedik. ha latom hogy hul, akkor a 8 perc keves, inkabb 20 percenkent 9 percet futok, ha meg melegedik akkor inkabb 20 percenkent 7 percet. mivel 20 percenkent mindenkepp fut valamennyit, szep egyenletes lesz a padlod homerseklete.

 

Vajk

Előzmény: Petya79 (77084)
Petya79 Creative Commons License 2015.01.29 0 0 77085

A lehetőségekhez képest minimumon megy a kazán, most már csak az osztó-gyűjtő beszabályzását tudom finomítani.

Előzmény: smith (77080)
Petya79 Creative Commons License 2015.01.29 0 0 77084

Egy ilyen hónapban nagyjából 100 m3 gáz megy el a fűtésre. Korábban éjszakára alacsonyabb hőfokot állítottam be, így reggelig szinte nem is kapcsolt be a kazán. Az utóbbi időben viszont állandó hőmérsékletet tartok. Úgy vettem észre, hogy a fogyasztás nem igazán változott. Gondolom, korábban a reggeli felfűtésre több energia ment el, így hiába állt éjszaka kikapcsolva, végülis a fogyasztás nem csökkent. A célom persze nem a 0-24 órában való fűtés lenne, de a nagyjából 3 órás fűtési szakaszoknak jobban örültem volna. A termosztátommal amúgy napi 48 programot tudok megadni, fél órás időközönként, úgyhogy rá tudom kényszeríteni akár sűrűbb ki-be kapcsolgatásra is.

Előzmény: halaloszto (77079)
Petya79 Creative Commons License 2015.01.29 0 0 77083

Talán azt kellett volna vennem alapból, de amúgy a mostani termosztátommal sincs bajom (újabb kiadású Beryl IT1), szépen teszi a dolgát: 0,2; vagy legfeljebb 0,3 fokon belül hullámzik.

Előzmény: pajaci (77078)
halaloszto Creative Commons License 2015.01.28 0 0 77082

egyetértek.

Előzmény: smith (77081)
smith Creative Commons License 2015.01.28 0 0 77081

Na most ezt én egy cm707-tel csinálom. Óránként csak három ciklust csinálhat, ha már az arányos tartományon belül van. Nálam ez vált be.

Előzmény: halaloszto (77079)
smith Creative Commons License 2015.01.28 0 0 77080

Vedd lejjebb az előremenőt, csökkentsd a tömegáramot, amíg csak engedi a kazán minimum teljesítménye.

Előzmény: Petya79 (77076)
halaloszto Creative Commons License 2015.01.28 0 0 77079

gondolom jol szigetelt a haz. a kazanod a minimum 2.5kW. ha a kazan 2.5kW-al menne 24 oraban az bo 6m3 gazt enne meg naponta. az a tippem, hogy nem akarsz meg a mostani nullaban sem napi 6m3 gazt elfuteni, ha nem muszaj. ugyhogy meg kell baratkozz a gondolattal, hogy nem fog ejjelnappal menni a viz a padloban. 

 

legegyszerubb lenne ratenni egy kapcsoloorat, a regi korbeforgosat, es negyedorankent ki-be kapcsolni. a masik humoros de meglepoen hasznos megoldas a termosztatot kozelebb tenni a padlohoz/holeadohoz. igy nem hagyja a kazant orakig egyfolytaban futeni, amint eler a direkt meleg a termosztathoz az leallitja a kazant. de ha a szoba meg nem eleg meleg, hamar kiegyenlitodik, es ujra futeni kezd.

 

Vajk

Előzmény: Petya79 (77076)
pajaci Creative Commons License 2015.01.28 0 0 77078

Vegyél padlófűtés termosztátot.

Előzmény: Petya79 (77076)
PetiCsokvaomány Creative Commons License 2015.01.28 0 0 77077

A konyhai szagelszívót nem integrálnám bele a szellőztető rendszerbe. Egyrészt a konyha megköveteli a magas légcsereszámot.....meg, amúgy sem szokás. Olajos, párás levegőt szív onnan a ventillátor, nem volna szerencsés ezt rávezetni a légkezelő hővisszanyerőjére.

Előzmény: Markolóstejó (77061)
Petya79 Creative Commons License 2015.01.28 0 0 77076

Nincs hideg, mármint a szobahőmérsékletet egyenletesen tudom tartani. Viszont alap felállásban túl hosszúak a szünetek, aminek néha hidegebb padló az eredménye. A termosztáttal persze rá tudom kényszeríteni a kazánt, hogy gyakrabban fűtsön, csak jobban örültem volna, ha sikerül folyamatos temperálást elérnem, alacsony hőfokon. Legalábbis ez lett volna a cél.

 

Előzmény: halaloszto (77075)
halaloszto Creative Commons License 2015.01.28 0 0 77075

én még mindig nem értem hogy mi a gond? tul hideg van a lakásban? vagy túl nagyok a szünetek a fűtések között?

 

Vajk

Előzmény: Petya79 (77070)
szekely001 Creative Commons License 2015.01.28 0 0 77074

Ezt csak egy tartalék szivattyúnak tartanám meg,és ha nem kötöm be sehova akkor egy fordulaton menne.

Gondolom én.

Előzmény: smith (77073)
smith Creative Commons License 2015.01.28 0 0 77073

Például. De azért jobb volna manuált túrni hozzá.

Előzmény: szekely001 (77072)
szekely001 Creative Commons License 2015.01.28 0 0 77072

Lehetséges akkor hogy egy külső vezérlő szabályozhatta a fordulatát?

 

Előzmény: smith (77071)
smith Creative Commons License 2015.01.28 0 0 77071

Gondolom, azon keresztül kommunikál az elektronikával, ha már pwm.

Előzmény: szekely001 (77069)
Petya79 Creative Commons License 2015.01.28 0 0 77070

Köszi! Ha a megfelelő visszatérő hőmérséklet eléréséhez kénytelen vagyok túlzottan lefojtani az adott kört, abból lehet valami baj? Úgy értem, hogy az árt a szivattyúnak, vagy valami másnak?
 
Ariston Genus EVO kazánom van, annak 2.4 kW a minimuma. Minden helyiségben hidegburkolat van.
Amit furcsállok, az az, hogy az aljzatszigetelés mindössze 4 cm lépésálló + hőtükör, ennek ellenére mégsem igazán csökken a visszatérő hőfoka, még relatív hosszabb állás után sem (a hidegburkolat persze ilyenkor érezhetően hűlni kezd). Fűtéskor jellemzően 26 fokot jelez a visszatérőnek, 28-30 fokos előremenő mellett.

A gond az, hogy nem tudok folyamatos, alacsony hőmérséklettel temperálni. Így, hogy nő az előremenő (és vele együtt a visszatérő), csak szakaszos üzemben tudok fűteni, jó esetben úgy 1,5-2 órán keresztül.
Nálam fagypont körüli külső hőmérsékletnél olyan 27-28/24 fok lenne az ideális, de ezt képtelen vagyok elérni.

Most annyit módosítottam, hogy a szivattyút modulációs üzem helyett alacsony fokozatra állítottam. Így annyit értem el, hogy továbbra is melegedett a rendszer, viszont valamivel lassabban.

Előzmény: halaloszto (77067)
szekely001 Creative Commons License 2015.01.28 0 0 77069

Elnézést ha nem ide tartozik,de kaptam egy vaillant vp8 pwm típusú keringető szivattyút.

A 230v-tos bekötés tiszta, de jön még a belső elektronikából egy kéteres vezeték,erre lennék kíváncsi mire szolgál? 

Válaszokat előre is köszönöm.

Mezőföldi 2 Creative Commons License 2015.01.28 0 0 77068

 1. Van un. gumi muff.  Mind a két csőre ráhúz és 2 db. AWA bilinccsel rögzítve.

 

 2. Cement habarccsal,

 

 3. csak gumi tömítés kell, ragasztás nem.

Előzmény: Dockworker (77064)
halaloszto Creative Commons License 2015.01.28 0 0 77067

eddig csinaltad jol. a lenyeg hogy a fojtas a leheto legkevesebb legyen. a legmelegebb visszaterot fojtod, ettol oda kevesebb viz jut, kisebb lesz a hobevitel, hidegebb a padlo, hidegebb a visszatero.

 

ha mar a kezdeten 24-25 fokos a visszatero, az azt jelenti hogy a padlo egyaltalan nem hideg. ennel hidegebb nem lesz a visszatero sehogysem. (egy 22 fokos szobaban ahol a padlo 25 fokos nem tudja a padlo 25 fok ala huteni a vizet ugye) 

 

ha a 27 fokos vized 27 fokra melegitene a padlot tok egyenletesen, akkor is az lenne hogy

  1. 22 fokos szobaba a 27 fokos padlo szonyeg es butor nelkul kb 50W/m2-t tud leadni, ami 70m2-re 3.5kW osszesen. es mivel van butor, inkabb kevesebb. (plusz amit lefele az anyafoldnek ad le, de bizzunk benne az keves. ) legyen 4kW hogy tuti ne lojjuk ala. ha a kazanod minimum teljesitmenye nagyobb a 4kW-nal, akkor nincs mas valasztas mint hogy a kazan altal a vizbe tett ho egy resze nem megy ki a lakasba hanem benne marad, ezzel melegitve a vizet. 

  2. 2 fok deltatT-vel 4kW-ot elvinni az 28 liter/perc, nem keves. nem tuti hogy ezt atkergeti a rendszereden a kazan szivattyuja

 

igazibol az a kerdes hogy mi a gond? nem futi ki a lakast? vagy hogy magasabb az eloremeno? pont addig fog felmaszni ahol mar le tudja adni a kazan teljesitmenyet. meg mindig jobb mintha a kazan letiltana es faznal.

 

Vajk

Előzmény: Petya79 (77065)
Miskolci Zoltán Tóth Creative Commons License 2015.01.28 0 0 77066

Üdv!!

K18- féges kazán.

Nyári állásba a melegvíz van, beindul, de téliben nincs fűtés.

Mi lehet a problem??

Előre is, Köszönöm a segítségeteket!

Petya79 Creative Commons License 2015.01.28 0 0 77065

Pontosan: a beállított hőfokhoz képest emelkedik az előremenő ill. a visszatérő.
Ha például 27 fokot állítok be, kb. fél óra elteltével már 28 fok lesz, újabb fél óra múlva 29, aztán 30.

A két kisszobában és a fürdőszobában sűrűbben lettek fektetve a csövek.
A körök eddig teljesen nyitva voltak, most kezdtem el próbálkozni a beszabályzással.
A visszatérők leghidegebb és a legmelegebb ágai közt nagyjából 2 fok a különbség.
Például a fűtés kezdetén a következőket mértem a visszatérőkön:
25.0; 24.5; 24.5; 25.0; 23.0; 23.5; 23.5


Gondolom, a cél az lenne, hogy ahol a visszatérő hőfoka alacsony, ott csökkenjen az áramlás,
ahol pedig magas, ott emelkedjen. A kérdés az, hogy ehhez a legmagasabb előremenő osztóját, vagy pedig a legalacsonyabb visszatérő gyűjtőjét lenne érdemes lefojtani?

Eddig az osztók felől zártam mindig a legmagasabb hőmérsékletűt. De az nem gáz, ha van olyan kör, ahol majdnem teljesen zárni kellett a "csapot"?

Előzmény: halaloszto (77063)
Dockworker Creative Commons License 2015.01.28 0 0 77064

Sziasztok , BUÉK mindenkinek akinek még nem ... :) 

 

Ne haragudjatok,hogy csak így ide esek de egy kisebb problémával kerültem szembe ... Tetőfedőként ...

 

Holnapi nap folyamán szennyvíz csövet kell cserélnem ajtón kívül ... 150es sárga PVC kerülne be a meglévő eternit helyére a lakás ajtajától a tisztító aknáig . Tehát ajtón belül eternit marad . Amivel nem vagyok tisztában : 

 

1,)eternit - pvc találkozáshoz van valami speciális gumi karmantyú (nem tudni az eternit mekkora) vagy valami képlékeny anyaggal ki kell tömíteni a rést köztük ? Nyilván szerencsésebb lenne ha az eternit bele menne a pvc-be . Vagy nem tudom . Ötlet ? 

 

2,)kmt.téglából van a szennyvíz akna . Abba ahogy bele megy a PVC cső , azt mivel lehetne tömíteni ? 

 

3,)tokos - tömítéses csatlakozásokat nem kell semmivel sem ragasztani már ugye ?

 

Tisztítók-ágak , stb. rendben lesznek , szimplán a vizes bohóckodik ezzel a melóval december óta , ezért kell nekünk beugrani .

 

Millió hála és köszönet előre is a segítségért !

 

Üdv.:

D.W. 

halaloszto Creative Commons License 2015.01.28 0 0 77063

mi az hogy megemelkedik? az eloremeno magasabb lesz mint a beallitott?

 

koronkent nezted a visszaterot? nem lehet hogy a korok egy reszen csak csordogal a viz, valamelyiken meg expressz megfordul es a meleg megy a visszaterobe?

Előzmény: Petya79 (77062)
Petya79 Creative Commons License 2015.01.28 0 0 77062

Sziasztok!

70 nm-es padlófűtéses házunk van, 7 körrel kiépítve. A gond az, hogy ha beállítok egy fix hőfokot a kazánnak, fűtéskor az előremenő és visszatérő hőmérséklete rövid időn belül megemelkedik.
Elképzelhető az, hogy a kazán szivattyúja kevésnek bizonyul erre a 7 körre?
Pillanatnyilag modulációs üzemben van a szivattyú, de majd kipróbálom alacsony vagy magas fordulatszámon is.

Markolóstejó Creative Commons License 2015.01.28 0 0 77061

sziasztok

ajánlatot szeretnék kérni a következőre:

Családi ház szellőző rendszer:
 - az alapszerelés készen van (gégecsövek behúzva), kivéve a külső áttöréseket
 - be kellene szerelni egy szellőzőgépet és megcsinálni a külső fal/ tetőáttöréseket
 - meg kellene csinálni a konyhai szagelszivót (legjobb lenne beintegrálni a szellőzőrendszerbe), födémáttörés megvan az elszivónak

Családi ház tartalék vegyestüzelésü kazán bekötése.
 - az alap fütési rendszer már kész van  - gázüzemü  indirekt tárolós HMV és központi fütés, radiátorral és padlófütéssel, átadott kémény van
 - gyakorlatilag a pincében kellene összerakni a kazánt, puffertárolót és egyebeket. az anyag nagyrésze (kazán és puffer is) már a helyén van

Esetlegesen szolár rendszer telepitése tetőre, HMV indirekt tárolóba bekötés - ez a költségvetés kérdése.
Annyit szeretnék, hogy a kivitelezőnek legyen légtechnikai referencia munkája - úgy vettem észre ehhez még nem sokan értenek.

Kb prioritási sorrendben irtam ezeket.

 

Ha valakit érdekel, dobjon rám egy mélt. Tudok küldeni rajzokat.

Üdv

CoIie Creative Commons License 2015.01.27 0 0 77060

Köszönöm az ötleteket.

halaloszto Creative Commons License 2015.01.27 0 0 77059

kulonosen sulyosabb alkatreszek, melegedo a alkatreszek es mechanikai hatasnak kitett alkatreszek labait kell nezegetni. nagy kondi, rele, csatlakozo, transzformator, tekercs.

 

Vajk

Előzmény: pajaci (77058)
pajaci Creative Commons License 2015.01.27 0 0 77058

Erős nagyítóval ilyesmit kell keresni. Sokszor nem látszik ennyire egyértelműen, csak egy hajszálvékony körberepedés vehető észre.

 

Előzmény: CoIie (77056)
mevet Creative Commons License 2015.01.27 0 0 77057

Talán valamelyik elko (kondenzátor) pusztulhat a táp részében. ESR mérővel rájuk kellene csekkolni, vagy akár kapásból kicserélgetni őket. Nem nagy értékű alkatrészek.

 

 

 

Előzmény: CoIie (77056)
CoIie Creative Commons License 2015.01.26 0 0 77056

Egy keveset használt kazánról van szó, bár már 11 éves. Tehát szinte minden része újszerűnek tűnik. Az elektróda teljesen tiszta, a kerámia szigetelés is épnek látszik.

Valamennyire biztosan megkülönbözteti azt az állapotot amikor az érzékelő kábelét széthúzom, mert akkor folyamatosan szikrát ad, normál esetben pedig 3x teszi meg kis szünetekkel. Talán kevés az áram ami átfolyik az érzékelőn és ez okozhatja a bizonytalan lángérzékelést? Láng azonnal van mindig!

Előzmény: Törölt nick (77055)
Törölt nick Creative Commons License 2015.01.26 0 0 77055

védőföld hibája is okozhatja de előbb végig kell járni a tipikus hibákat.

nem hiszem hogy panel csere kell.

előbb elektróda pucera, gáz nyomások ellenőrzése.

Előzmény: CoIie (77054)
CoIie Creative Commons License 2015.01.26 0 0 77054

Sajnos újabb kazán probléma...(melyet a cirkó oldalról most ide is betettem) Hátha tud valaki konkrétan erre a hibára válaszolni.

 

A Chaffoteaux Elexia Comfort hetek óta, de egyre gyakoribban a kezdeti gyújtás és a láng megléte mellett leáll és a 60-as LED-et villogtatja, azaz 'hiba a lángérzékelő áramkörben'. Már a 70/80-as LED is kijött egyszer, szintén valami gyújtáshibát jelez (sajnos spanyolból kellett visszafordítanom, már amennyire pontosan sikerült).

 

Gondolom panelhiba lesz, mert minden csatlakozót lehúztam/visszadugtam, a készülék 3x próbálja meg szikrázással begyújtani a lángot, amely már az első pillanatban jól ég, de az áramkör nem érzékeli valahol belül (mára már az esetek rel. nagy százalákában). Mindez annak ellenére, hogy ha a láng érzékelő csatlakozóját széthúzom, akkor nem 3x gyújtogat szünetekkel, hanem kimondottan úgy érzi, hogy nincs láng, végig szikrázik a hiba miatti tiltásig. Tehát a lángérzékelő vezetékét összedugva már érzékel valamit, de nem minden esetben eleget. (A reset gomb megnyomására üzemkész lesz ismét, vagy esetleg több reset is kellhet, mert az azonnali próbálkozásra ismét újra kijön a 60-as LED. Úgyanígy indul újra egy rövid feszültségmentesítéssel is.)

 

Mit lehetne tenni a hiba pontosabb behatárolásáshoz, vagy marad a panelcsere (az honnan szerezhető be konkrétan)?

A nyákon minden nagyon szép, ami a forrasztásokat illeti, tehát időzített, hibás forrasztást sem találtam.

 

Olvastam valahol az esetleges földelési hibát.

Köszönöm!

murray Creative Commons License 2015.01.24 0 0 77053

hát lehet. ahogy láttam nekem egy új mérőt raktak be. mindegy 

Előzmény: halaloszto (77038)
murray Creative Commons License 2015.01.24 0 0 77052

értem. akkor nemtom:-)

Előzmény: SolnesMM (77037)
SolnesMM Creative Commons License 2015.01.24 0 0 77051

Az almérő az tényleg a lakástulajdonosok tulajdona. De lehet szerződni a Vízművekkel a közvetlen számlázásra is a Díjbeszedő zrt közvetítésével. Ennek a külön ára 340 ft /hó / lakás. + a fogyasztás.

 A vízművek így se fizet rá. Összeadja az almérők fogyasztását, a különbözetet meg kiszámlázza a társasháznak. Tehát  az egyszerűség kedvéért 4 lakás  az éves fogyasztás az almérők összesítése alapján  432 m3 /év, a társasház óráján pedig 510 m3 szerepel, akkor a társasház jön még neki   510 -432 = 78 m3 víz   + csatorna díjjal. Aztán a tulajok egymás között a közgyűlésen ennek díját egymás között elosztják. Ezek pici számok/ kistársaház/ egy komolyabb háznál 5 -6 e m3 fogyasztás van. Nálunk egy másik házban azon ment avita hogy a nagyjából 1800 m3  + fogyasztást hogyan osztják el.

 Elcsurgott, a lépcsőhát mosták, meg ellopták.

 Az eredeti törvény 4 - 4 évről szólt / a mérésügyi törvény egyik mellékletében / de úgy 92 -93-ban a T. Józsibá' odaszólt az egyik minisztériumba, hogy mit lacafaszáztok, miért nem 6 év az  ? Gyorsan kijavították 6 -ra, most tavaly megint odaszólt valaki, hogy miért nem  8  ? hát kijavították 8 - ra, de ennyi erővel lehetne akár 10 év is.

 

 Meg van olyan gyakorlat is a t. házaknál, hogy akinek nincs vízórája, arra számláznak mindent  . Meg a közös költségbe beépítik.

 Másutt vannak bérlőim. Az egyik lakásban 17 évig volt az almérő. Sk.  A végén kb. 10 % -kal mért kevesebbet. Hordós módszerrel kalibráltam, végül cseréltem.

 

 Nem vesztem ezen össze a bérlőmmel.

 

 Érdekességként : a villanyórák hitelesítési ideje az egyik leghosszabb - 14 év,

a gázmérőké 10 év,

a vízmérőké 4 év, aztán vannak éves hitelesítésü idejű mérőeszközök  és

vannak amiket csak eccer kell, aztán soha.

Előzmény: halaloszto (77049)
PetiCsokvaomány Creative Commons License 2015.01.24 0 0 77050

Oké, mondjuk, hogy nem könnyűszerrel nyitod ki, de nem vág orrba, és nem egy 100 wattos kis axiálventilátor csinálja, hanem egy bika nagy több kilowattos centifugális gép. Arra akartam csak rámutatni, hogy kicsit eltúloztad amit a kisventillátorokról írtál.

Előzmény: Wattocsak (77045)
halaloszto Creative Commons License 2015.01.24 0 0 77049

tehat almerok. az almerovel csak a lakok szamolnak el egymas kozott, belugyuk kellene legyen hogy mit fogadnak el es mit nem. de van a szep torveny a 8 evrol ugye...

 

bezzeg a fomero az a vizmuvek penze, o nem is dobja ki, hanem siman ujrahitelesiti, akar fel is ujitja.

 

Vajk

Előzmény: SolnesMM (77047)
halaloszto Creative Commons License 2015.01.24 0 0 77048

nalunk az irodahazban ugye eleg nagy ajtok vannak. saccra 120x220. meg tuzallo is, ezert alapbol is van egy tehetetlensege. ha megy a tulnyomasos szellozes tuzriado probakor,  50 kilo alatti ember nem nyitja ki. ha az elete mulna rajta lehet sikerulne neki, de elsore meg masodikra siman lepattan. az ujoncok kozul volt aki azt hitte be van zarva.

 

Vajk

Előzmény: Wattocsak (77045)
SolnesMM Creative Commons License 2015.01.24 0 0 77047

Régiek, kis társas lakásaiból házból lett leszerelve.

Előzmény: halaloszto (77038)
Wattocsak Creative Commons License 2015.01.24 0 0 77046

Bakker rákereshettem volna. :-) Na mindegy legközelebb résen leszek.

Előzmény: c-stahl (77044)
Wattocsak Creative Commons License 2015.01.24 0 0 77045

A füstmentes lépcsőházban 25-50 Pa lehet, és az ajtót úgy kell méretezni, hogy az ajtó nyitás max 100N erővel történhet. Tehát konyha nyelven max 10 kg erő kell egy ajtó kinyújtásához. Szerinted simán nyílik? persze ha már 3 centit nyitottál rajta akkor már semmi gáz.

Előzmény: PetiCsokvaomány (77043)
c-stahl Creative Commons License 2015.01.24 0 0 77044

Tényleg nem. :-)

54/2014 OTSZ, 57 pont, 97.§:

(4) A túlnyomásos füstmentes lépcsőház gépészetének
a) valamennyi lépcsőházi nyílászáró csukott állapota esetén 50 Pa ą 10% relatív túlnyomást,
b) egy nyitott lépcsőházi ajtó esetén 10 Pa túlnyomást,
c) a (6) bekezdésben meghatározott darabszámú lépcsőházi nyílászáró nyitott állapota esetén a nyitott nyílászárók
keresztmetszetében legalább 1 m/s sebességű légáramlást kell biztosítania.
(5) Előteres túlnyomásos füstmentes lépcsőház esetén a (4) bekezdés a) pontja szerinti relatív túlnyomás mértéke a
lépcsőházban az előtérhez viszonyítva 50 Pa ą 10%, az előtérben 10–15 Pa.

Előzmény: PetiCsokvaomány (77043)
PetiCsokvaomány Creative Commons License 2015.01.24 0 0 77043

Egy füstmentes lépcsőház ajtaját simán kinyitod üzemelő ventilátor mellet, anélkül hogy orbavágna, vagy leszakítaná a lábujjkörmöd, karod...stb. És beláthatod, hogy ott nem 50 Pa-ról beszélgetünk.

Előzmény: Wattocsak (76985)
DCSNZS Creative Commons License 2015.01.24 0 0 77042

nem bántad meg h. puffer mellett döntöttel? vannak akik e nelkul csinaljak a vegyest....

ill nem bántad meg h. nem a gaz mellett döntöttel?

Előzmény: Tomsojer68 (77034)
sjohn Creative Commons License 2015.01.24 0 0 77041

Tudtam, de nem gondoltam.

Előzmény: nixon70 (77040)
nixon70 Creative Commons License 2015.01.24 0 0 77040

Neked elárulom: motorolaj :-D

Előzmény: sjohn (77031)
nixon70 Creative Commons License 2015.01.24 0 0 77039

A rezet hasznosítsd, a többi kuka.

Előzmény: SolnesMM (77035)
halaloszto Creative Commons License 2015.01.24 0 0 77038

a vízművek konkrétan újrahitelesíti és felszereli másnak. amit kaptál azon mi a gyártási dátum?

Előzmény: murray (77036)
SolnesMM Creative Commons License 2015.01.24 0 0 77037

 Én se akarok már mérni vele. Csak gondoltam ingyért azért nem adom. Állítólag összegyűjtik, kisavazzák, tisztítják, kalibrálják, hitelesítik és újra árulják. Jó 12 db. nem tétel, de Mo.-n kb. 8 millió vízmérő van, az átlagos használat 6 év, így  8. x10 hatodikon per 6 az kb. 1,3 .millió /per év.

 egy százast sem ér ?

 Ja főmérő hitelesítése 4 év, mellékvízmérőé pedig egy éve 8 év.

 Csak abból gondolom így írja a törvény - 4 évenként hitelesítendő és nem eldobandó.

 De hát ha gazdagok vagyunk, akkor azok.

 Még annyit - a mostani mérők már a litereket is mérik és kijelzik . 

Előzmény: murray (77036)
murray Creative Commons License 2015.01.24 0 0 77036

nálam most járt a vízművek, vízmérőt cserélt. a régit a kivett óraállással ötször lefényképezték majd ötször aláírtam és elvitték, majd beraktak egy nullás mérőt a helyére.  

én már csak a nyugalmam miatt sem kísérleteznék ezek újrahitelesitésével. 

bontsd el, ami jó marad, a többi kuka. 

Előzmény: SolnesMM (77035)
SolnesMM Creative Commons License 2015.01.24 0 0 77035

Sziasztok !

 

Van  12 db. lecserélt vízmérőm.

Érdemes ezeket újra hitelesíteni?

 Vagy szemét, hulladék az egész?

 

 SM.

Tomsojer68 Creative Commons License 2015.01.24 0 0 77034

Nekem 1000l es pufi van, naponta gyujtok be 3 ora hossza alatt felfutom 25 kg nyarfaval 40-45fokot emel a homersekleten.

A haz 150m2 alapteruletü 110 fütott lakoterrel, kozepesen hoszigetelt. A belso homerseklet stabil 21 fok.

Remelem ez kielegiti a kivancsisagod.

Előzmény: DCSNZS (77023)
Chilkoot járó Creative Commons License 2015.01.24 0 0 77033

Igen, vehetjük stirling gépnek.  kb. 5cm-es csőszakaszon van fűtve egy borszesz égő égővel, és közvetlenül mellette hűtve. Majd parabola tükörbe lenne a technika...

Előzmény: halaloszto (77032)
halaloszto Creative Commons License 2015.01.24 0 0 77032

abszolut egyetertek, hogy ekkora nyomasokkal csinjan kell banni. elsore kicsiben kell megcsinalni, a hutogepes cuccok kornyeken nezelodnek.

 

ha jol ertem ez egy speci stirling gep. az egyik veget melegited, a masikat hutod,es kozben ugy rezeg, hogy valamifele allohullam alakul ki benne. ennek az alacsony nyomasu vegen veszi fel a hot es a magas nyomasun adja le.

 

Vajk

Előzmény: joevagyok68 (77026)
sjohn Creative Commons License 2015.01.24 0 0 77031

Az attól függ, miből fogyaszt ennyit?...benzin?...gázolaj?...PB?...petróleum?

Előzmény: nixon70 (77030)
nixon70 Creative Commons License 2015.01.24 0 0 77030

Nekem rubinvörös és 3,1 L a fogyasztása.

Az jó?

Előzmény: Wattocsak (77029)
Wattocsak Creative Commons License 2015.01.24 0 0 77029

Ha piros az autóm akkor az mennyit fogyaszt? Szerintetek mennyivel csökken a fogyasztása, ha sárgára estem?

Előzmény: DCSNZS (77028)
DCSNZS Creative Commons License 2015.01.24 0 0 77028

normalis esetbe fával ,ha felfűtok a 1000l puffert,hány fokig kell es hany orat tud tarolni?

pajaci Creative Commons License 2015.01.24 0 0 77027

Sose.

Előzmény: halaloszto (77025)
joevagyok68 Creative Commons License 2015.01.24 0 0 77026

Mar az 'indulaskor'/hidegen 10-12 bar lenne a nyomas benne , es aztan melegitened meg ??

 

Mitol ugralna benne a levego dugattyukent ?

Mivel csinalsz 5-600 fokos melegitest ? Hogyan oldod meg, hogy annak az 'energia ellatasa' IS rugaslmas legyen ?

Ha mar az 'rajta' lesz, nem mind1 a cso falvastagsaga ?....tomeg miatt !

Azert ilyen nagy nyomason gaz halmazallapotu dologgal lehet csinjan kene banni !

Mert ha kicsit sok lesz a nyomas, az nem csak 'kinyilik' mint folyadekosnal !

De lehet tevedek....

 

Szerintrem nezz inkabb tudomanyos csatornakat, mig van 2 szemed !  :-) 

Előzmény: Chilkoot járó (77020)
halaloszto Creative Commons License 2015.01.24 0 0 77025

te meg sosem irtad rossz ablakba a valaszt?

Előzmény: pajaci (77024)
pajaci Creative Commons License 2015.01.24 0 0 77024

Kivel beszélgetsz?

Előzmény: DCSNZS (77023)
DCSNZS Creative Commons License 2015.01.24 0 0 77023

nem egeszen ertetted mit kerdezem,mindegy....a papirbriketthez mit szolsz, ha befőtök vele este, stabilan tarja a puffert?

stevemegane Creative Commons License 2015.01.24 0 0 77022

Szerintem nem itt nem nagyon fogjuk tudni megmondani, hogy kibírja-e majd a nyomást a csöved.

Ez ha felrobban és megsérül valaki, mehetsz a hűvösre.

Előzmény: Chilkoot járó (77020)
DCSNZS Creative Commons License 2015.01.24 0 0 77021

sziasztok!

 

feldobok egy temát erre a napra, remelem sok ember megoszja velemenyet!

 

Sörkollektort akarok csinalni, a vegyes tűzelesem melle.

Hát ez hatalmas, most  futottam bele, de hát keszen vagyok:D

 

megeri?

 

hasznal vki ilyet?

 

űdv

Chilkoot járó Creative Commons License 2015.01.24 0 0 77020

Sziasztok! Semmit nem értek a csövekhez, a tanácsotokat szeretném kérni. Csak gondolkodom egyenlőre... Egy kísérlethez kellene 25-35mm belső átmérőjű cső, ami mindkét végén le van zárva, de az egyik oldalán könnyen bontható. Egy szelepet is rá kéne applikálni, és max. 10-12 bar nyomást kellene kibírnia. A hossza max. 2 méter lenne, még pontos adatokat nem tudok... Ami még nehézség, hogy minél vékonyabb fala legyen, és egy helyen, miközben nyomás alatt van, tartósan ki kell bírnia, 5-600 fokos melegítést. Szerintetek mennyire megvalósítható, ha igen, mennyiből jön ez ki, és ha esetleg van ötlet miből, hogy, azt is jól jön... Hogy mégis mihez kellene: A csőben az egyik végétől, kb. 1/6 -nyi távolságban egy kis katalizátor kerámia, vagy ahhoz hasonló porózus betét van, aminek egyik felét melegítve, a benne lévő levegő dugattyúként fog ugrálni a cső két vége között. Ez rezgésbe hozza az egész csövet. A cső rugós felfüggesztést kap, és egy mágnest a végére, amely egy tekercs segítségével némi delejt adna. A kísérlet lényege, hogy mennyit, milyen hatásfokkal, stb. produkál. Parabola tükörbe napenergiás dolog lehetne... https://www.youtube.com/watch?v=dQ_r64eCQCc Köszönöm, ha van meglátás! 

 

laci19791202 Creative Commons License 2015.01.23 0 0 77019

De hogy vagyok szerelmes :) Nem azt vettem meg amit linkeltem,Vateráról vettem egyet 100ft ér,elküldik,ha jó fizetek ha nem nem.Nekem nem sokat menne.

http://epitkezes-kert.vatera.hu/kert_mezogazdasag/kerti_mezogazdasagi_gepek/szivattyu/laing_szivattyu_2027149280.html

tszabi Creative Commons License 2015.01.23 0 0 77018

Kösz az infót.

Előzmény: morgen66 (77003)
pajaci Creative Commons License 2015.01.23 0 0 77017

Dehát szerelmes bele, onnantól meg nincsenek észérvek.

Előzmény: kormi07 (77016)
kormi07 Creative Commons License 2015.01.23 0 0 77016

Valószínű elírás a 15 ezer forint, ez nem ér 1500-at se.3 darabot hajítottam ki 10 év alatt a fűtésrendszerből, volt ami leégett, volt amelyiknek darabok váltak le a forgórészéből, kiegyensúlyozatlan lett, zörgött mint állat(ezt később talajvízszivattyúzásra még használtam).

Az utolsót épp most tettem a helyére(ócskavasas vödör), már annyira kikopott az a lemez, ami állásában tartaná a forgórészt, hogy ne érjen hozzá az állórészhez, hogy nem pörgött fel...

 19 éve tettünk be helyettük egy wilót, még megy, örök, mint a nyomorúság.

Előzmény: laci19791202 (77015)
laci19791202 Creative Commons License 2015.01.23 0 0 77015

1-2 másodperc csak nem okoz neki gondot.

Előzmény: pajaci (77014)
pajaci Creative Commons License 2015.01.23 0 0 77014

Valószínű, igaz épeszű ember még nemigen járatta szárazon.

Előzmény: laci19791202 (77013)
laci19791202 Creative Commons License 2015.01.23 0 0 77013

Az ha kicsit hangja van szárazon az ugye természetes?

laci19791202 Creative Commons License 2015.01.23 0 0 77012

Köszi,értelek,amit venni akarok az is két fokozatú, P1:100w  P2:30w.csak bőven elég lett volna az 1"-os kivezetés,na de 1500ft ér nem válogathatok,és nem sokat menne,max pár órát 1 héten. 

Előzmény: pajaci (77010)
morgen66 Creative Commons License 2015.01.23 0 0 77011

Én nem venném meg, mert ennyiért drága, használt nincs rá garancia.

Inkább ezt:

http://xn--pletgpszet-96afb3x.com/webaruhaz/f%C5%B1t%C3%A9si-szivatty%C3%BAk/greenpro-rs32-7g-f%C5%B1t%C3%A9si-keringet%C5%91-szivatty%C3%BA

 

Igaz nem Grundfos.

 

Előzmény: laci19791202 (77002)
pajaci Creative Commons License 2015.01.23 0 0 77010

Nem a kivezetés a lényeg. Ez 30w-on eldolgozik egyes fokozatban.

http://olx.hu/hirdetes/keringeto-szivattyu-grundfost-3-sebesseges-IDaSuR.html#d31da5aa8d

Előzmény: laci19791202 (77009)
laci19791202 Creative Commons License 2015.01.23 0 0 77009

Nem igazán van kisebb,jó ahogy nézem ezekbe is van ami 6/4-es és van ami 1"-os kivezetésekkel vannak el látva,és ezek tuti birják a meleg vizet,persze jóval kisebb valami is elég lenne.

Előzmény: pajaci (77008)
pajaci Creative Commons License 2015.01.23 0 0 77008

Oda főleg felesleges egy ekkora.

Előzmény: laci19791202 (77007)
laci19791202 Creative Commons License 2015.01.23 0 0 77007

Láttam őket,nem fűtéshez hanem egy kompresszor hengerfején keresztül akarom vele a vizet forgatni.

Előzmény: pajaci (77005)
laci19791202 Creative Commons License 2015.01.23 0 0 77006

Köszi szépen,az ha kicsit hangja van szárazon az ugye természetes?

Előzmény: halaloszto (77004)
pajaci Creative Commons License 2015.01.23 0 0 77005

Vegyél grundfost, három sebességest használtan kapsz 7-8 ezerért hirdetési oldalakon.

A 9-10 ezres új grundfosnak hirdetett szivattyúk hamisítványok.

Előzmény: laci19791202 (77002)
halaloszto Creative Commons License 2015.01.23 0 0 77004

ugyanugy mukszik mint az osszes tobbi. hivjak nedvestengelyes vagy magnesmotornak is. 

 

villanymotor ez is, csak a forgoresz egybe van a jarokerekkel, es nincs benne hagyomanyos ertelemben csapagy.

Előzmény: laci19791202 (77002)
morgen66 Creative Commons License 2015.01.23 0 0 77003

300 liter esetleg meleg víz ellátásra elég,puffernak nagyon kevés.

Miért lenne probléma hogy magasabban van,minimum az 1000 liter de 1500 még jobb lenne.

Előzmény: tszabi (77000)
laci19791202 Creative Commons License 2015.01.23 0 0 77002

Sziasztok.

Valaki esetleg ismeri ezt a fajta keringető szivattyút?Én nem igazán értek hozzá de a tulaj szerint ebbe nem elektro motor van hanem valamilyen elektromágnesesen működik.

Ha valaki tud róla valamit mondani annak megköszönöm.

http://olx.hu/hirdetes/laing-sfm-60-tip-keringteto-szivattyu-ID30Jv9.html

pajaci Creative Commons License 2015.01.23 0 0 77001

Oda teszed ahova akarod, akár 20 méterre. Vannak fekvő puffertartályok is.

Előzmény: tszabi (77000)
tszabi Creative Commons License 2015.01.23 0 0 77000

Üdv !

 

Fűtésrendszer összeállítással kapcsolatban lenne kérdésem.

 

Egy 82 nm-es családi ház fűtését 27KW-os vegyestüzelésű lemezkazánnal szeretnénk megoldani.

A kazán a pincében lesz, egy puffertartállyal kiegészítve. A gond ott kezdődik, hogy 175cm magas a pince, így max egy 300 literes tartály fér el a pincében.

Kérdéseim:

- mire elég egy 300 literes tartály?

- jobb megoldás lenne, ha a pince melletti melléképületben (ami kb 50 cm-el magasabban van) helyeznénk el egy nagyobb, pl 1000 literes tartályt? Probléma-e hogy ez magasabban lenne mint a kazán?

Zöldár Creative Commons License 2015.01.23 0 0 76999

Ha ez így lesz a jővőben mint itt jó 15 -20 hozzászólásban megy a vita, kimegy divatból a vezetéses gáztűzhely.A lakosság zöme ilyen mókába nem megy bele, hacsak nem csalják be.

halaloszto Creative Commons License 2015.01.22 0 0 76998

fel meter hosszu, nevleges atmeroju

Előzmény: halaloszto (76997)
halaloszto Creative Commons License 2015.01.22 0 0 76997

ismerem. a szabvány fél méter névleges átmérőjű csővel mér, 15Pa mellett adja meg a légszállítást. 

 

gondolhatjuk hogy a kísérletben pont totál fojtva van, nincs légszállítás, ezért ponthogy maximális a nyomás. viszont ezek a ventik képtelenek igazi nyomás létrehozására, ha közvetlen befognám talán meglenne az 50Pa, de lehet akkor sem. ki kellene probaljam

 

Előzmény: c-stahl (76996)
c-stahl Creative Commons License 2015.01.22 0 0 76996

http://www.vivanyi.hu/katalogusok/para_informaciok.pdf

 

UNE EN 61591 szabvány

A konyhai elszívó-berendezésekre vonatkozó UNE EN 61591 szabvány a valós - köbméter óra (m3/óra) alapú - légszállítási teljesítményt, valamint a kürtőben lévő nyomás nagyságát (Pa) értékeli egy adott ellenőrzési ponton.

Az elszívási teljesítmény és a zajszint érvényes összehasonlítása csak akkor lehetséges, ha valamennyi mérést ezen szabvány szerint végeztek.

 

UNE EN 60704 szabvány

A konyhai elszívó-berendezésekre vonatkozó UNE EN60704 szabvány a működés közben decibelben [db(A)] mértmaximális zajszint nagyságát vizsgálja. A mérések visszhangmentes, vagy félig visszhangmentes kamrákban történnek.

 

 

Előzmény: halaloszto (76992)
balsa02 Creative Commons License 2015.01.22 0 0 76995

100W-tal csak a levegőt kavarják ezek a radiális ventik, nem szívnak azok semmit.

Előzmény: Wattocsak (76994)
Wattocsak Creative Commons License 2015.01.22 0 0 76994

Hát nem.

Előzmény: halaloszto (76992)
balsa02 Creative Commons License 2015.01.22 0 0 76993

Az enyémre rá is állhatok, akkor kibír 500Pa-t is? :)

Előzmény: Wattocsak (76991)
halaloszto Creative Commons License 2015.01.22 0 0 76992

nekem ebbol az jol le, hogy egy konyhai elszivo az eletben nem csinal 50Pa-t.

 

Vajk

Előzmény: Wattocsak (76985)
Wattocsak Creative Commons License 2015.01.22 0 0 76991

Bármelyik ajtó. Csak 8 kg-t kell megtartani.

Előzmény: balsa02 (76989)
sjohn Creative Commons License 2015.01.22 0 0 76990

A szakma az szakma...

Előzmény: balsa02 (76989)
balsa02 Creative Commons License 2015.01.22 0 0 76989

Azért majd szólj, ha majd megtaláltad az a konyhaajtót ami ellen tart 50Pa-nak. :)

Előzmény: Wattocsak (76985)
Wattocsak Creative Commons License 2015.01.22 0 0 76988

Harag? 

 

Viccelsz? :-) Miért lenne harag? Véleményeltérés az igen, de ettől még simán mehetünk a kocsmába egy sörre.

Előzmény: kormi07 (76987)
kormi07 Creative Commons License 2015.01.22 0 0 76987

Vazze:-), ez komoly.

 

Az elszívót ha a padlásra vezetted az nem szerencsés, mert a tetőszerkezet fog elrohadni nagyon hamar az elszívott levegőben lévő szennyeződésektől, kis szerencsével eltüzeled a tetőt.

 

Az életben nem fog elrohadni semmi sem, sima cseréptető, átfúj rajta a szél, az elszívó meg nem lesz használva, mint említettem, előtte sem volt.Egyébként a padlásajtó is innen nyílik, üzemszerűen fel van támasztva néhány centire, de télen, zárt állapotában sem a tökéletes tömítés netovábbja.

 

Légbeejtővel semmi probléma, mert ha lesz valami gond akkor csak ti fogtok széndioxid mérgesét kapni, ergó a szomszédokat nem veszélyezitek.

 

Ebben a helységben eddig egy B típusú gáz állókazán volt, az megszűnt, egy másik helységben lett felszerelve egy kombicirkó, C típusú, értelemszerűen zárt égésterű, mivel lakótérben nem nagyon engedélyeznek új beépítésként B típusút már.A légbeejtőt a gáztűzhely miatt abban az esetben kellett volna felszerelni, ha a konyha nyílászárói a 40 éves romok helyett újra cserélődnek valamikor.Tehát az átvétel idején a régiek vannak bent, ergo légbeömlő sem kell.

 

Az meg, hogy milyen mesterrel dolgoztattál azt a munkája minősíti, a tervet és előírásokat semmibe sem vette, remélem azóta elvesztette a gázszerelői igazolványát.

 

Teljesen hivatalos minden, gázterv,engedélyezés, csőhegesztés, óra le-fel, nyomáspróba, gázmeo.

 

Az már csak hab a tortán, hogy még el is dicsekedsz vele. Hát szerintem ez több mint elgondolkodtató.

 

Gondolkoznod azon kéne, hogy ha elsőre nem értesz meg valamit, akkor van-e értelme ennyi negatívumot azzal kapcsolatban feltételezned/leírnod.

 

Az egész abból indult ki, hogy kell légbeömlő, munkaponti vizsgálat, gázszelep, meg mitudomén még micsoda egy gáztűzhely üzemeltetéséhez, miközben azt ugye nem tudjuk, hogy az a gáztűzhely milyen körülmények között is üzemel.

Nekem nem kellett, hivatalosan sem.

 

Aztán ha szerencséd van akkor kijön egy másik ember a szolgáltatótól és leveszi az órát szabálytalan vételezés miatt.

 

Valószínű.

 

Nincs harag:-)))))))

 

 

 

 

 

 

 

Előzmény: Wattocsak (76934)
Wattocsak Creative Commons License 2015.01.22 0 0 76986

Van program amivel a légcserét lehet számolni, de szerintem talán 5-en tudják kezelni:-) Ez a program írója mondta nem én találtam ki.

A természetes légcserénél nagy probléma a szél. Nem elég, hogy állandóan változik az iránya, és ha ez nem lenne elég még az erőssége is elég hektikus. Tehát számolhatatlan. A ventilátort meg elég jól tudom számolni és tudom mi várható tőle.

Aztán már nem is kell megemlíteni a téli és nyári állapotot.

Előzmény: c-stahl (76984)
Wattocsak Creative Commons License 2015.01.22 0 0 76985

Nézzük csak mi az az 50 Pa. Tételezzük fel, hogy a konyhádban van egy elszívó ventilátor ami 50 Pa nyomáskülönbséget hoz létre. 

Becsukod az ajtót és a konyhából ki akarsz jönni:

  1. befele nyílik az ajtó ekkor ha lenyomod a kilincset kirobban az ajtó a képedbe, mivel az ajtóra kívülről közel 8 kg erő hat és befelé tolja az ajtót. Peches esetben ha az orrod van elől akkor simán orrba vág, vagy ha papucsban közlekedsz és a lábad van elől akkor a nagy lábadról leugrik a köröm:-)
  2. Kifele nyílik az ajtó. Ekkor megint csak kellemetlen a helyzet, mert nem tudod kinyitni az ajtót mivel ekkor is legalább 8 kg erővel kell húzni az ajtót, ergó szép lassan letéped a kilincset és nem tudsz kijönni:-) 

Tehát a légbeejtőt nem a hóbortos gépészek találták ki.

Előzmény: balsa02 (76972)
c-stahl Creative Commons License 2015.01.22 0 0 76984

Azért csak el lehet követni vmiféle méretezést ( külső és belső levegő sűrűségkülönbségéből, a helyiség magasságából származó gravitációs felhajtóerőből), ha vki annál többet akar leírni, mint hogy, lyukas a ház és majd szellőzik :-)

 

Előzmény: Törölt nick (76983)
Törölt nick Creative Commons License 2015.01.22 0 0 76983

nem ! de mivel méretezni a természetes légcserét nem lehet, ezért ma a tervezők igy vetik le a felelősséget  biztos ami biztos alapon.

Előzmény: pajaci (76981)
halaloszto Creative Commons License 2015.01.22 0 0 76982

van olyan hely, ahol igy ertelmezik. de nincs ertelme agyalni rajta, mert idoben es terben is surun valtozik hogy mi a szabaly es hogyan ertelmezik. 

 

annyit tehetsz, hogy a gaztervnek megfelelsz es kesz. meg epesszel csinalsz mindent.


Vajk

Előzmény: pajaci (76981)
pajaci Creative Commons License 2015.01.22 0 0 76981

Tehát azt akarod mondani, hogy gáztűzhelyt csak páraelszívóval lehet üzemeltetni?

Előzmény: Törölt nick (76977)
c-stahl Creative Commons License 2015.01.22 0 0 76980

Ott ahonnan te is idéztél. 4.3.1.

Egyébként véleményed szerint egy gázellátás terve azt kellene beírni, hogy úgyis lyukas a ház, majd jön vhonnan a levegő, ne aggódjon senki?

Előzmény: balsa02 (76979)
balsa02 Creative Commons License 2015.01.22 0 0 76979

Úgy kell bekötni : a gáz mágnesszelep ne nyisson ki amíg a páraelszívó nem működik.

 

Ok ez lenne a gyakorlat. De hol van ez leírva? Most már tényleg érdekel.

Előzmény: Törölt nick (76977)
balsa02 Creative Commons License 2015.01.22 0 0 76978

A szellőző levegő beáramlását a légbeejtő luk hozza létre, nem az elszívó

 

Levegő áramlást nyomáskülönbséggel és legalább két lukkal lehet elérni. Nyomáskülönbséget vagy gépi úton (venti), vagy gravitációs elven (kémény) lehet létrehozni. Egy luk csak szükséges, de nem elégséges feltétel. És ahogy Wattocsak is fogalmazott, még egy passzív ház is tele van lukkal, gyakorlatilag a légbeejtő teljesen felesleges egy páraelszívó számára.

 

Sajnos a törvényalkotó a 4.3.1 c.) pontban egyszuszra túl akart lenni az A és B típusú készülékeken, de sajnos nem sikerül neki, mert a kérdéses mondat esetén a két készülékcsalád másképp viselkedik. Ami jó B-re (kéményes), tehát a rendelet mostani szövege, az nem jó az A-ra (kémény nélküli).

 

De egyébként a 4.3.1-es pont a.) b.) c.) d.) e.) mondatai között VAGY kapcsolat van. A e) pont pedig nem ír elő automatikusan záró szerelvényt.

 

Előzmény: pajaci (76974)
Törölt nick Creative Commons License 2015.01.22 0 0 76977

feltételezve hogy: a kazán zárt égésterű, a lakásban nincs más nyitott égésterű tüzelőberendezés :Pl. kandalló.

Akkor a páraelszívó a tűzhely fölé kell , 

Úgy kell bekötni : a gáz mágnesszelep ne nyisson ki amíg a páraelszívó nem működik.

A pára elszívó által kiszívott levegő pótlásáról légbevezetővel kell gondoskodni.

Na most a lényeg: vizsgálatkor az építéskori szabályoknak kell megfelelni.

Az építéskori előírásoknak viszont nem csak a gázkészülékeknek és azok bekötéseinek kell megfelelni hanem ezekkel összefüggő minden épület elemnek.

Ha pl ablak csere történik  akkor bizony a mostani szabályoknak megfelelően átalakítások kellenek.

Előzmény: joevagyok68 (76976)
joevagyok68 Creative Commons License 2015.01.22 0 0 76976

Ha vegzel akkor hatha te elarulod vegre, hogy mi a helyzet turbos/zart egesteru cirko eseten a tuzhellyel , elszivoval ?

Mert amit szenacel bacsi bekopizott az a 'szabaly' nyilt egesterure vonatkozik !

Es szerintem kormibak se az lett felteve !!

Előzmény: Törölt nick (76975)
Törölt nick Creative Commons License 2015.01.22 0 0 76975

Felülvizsgálatot én is végzek!

hidd el lakótelepi lakások 40 % ban kizáratásra ítéltek!

 it a 70  es években épült házakra gondolok.

Kirohadt ablakokat újra cserélt lakó aki nem  oldotta meg a légellátását a készülékének azonnal kizárható.

stb .stb.stb.

kicsit fura a helyzet mert nem jogunk van a baleset veszélyes helyzet jelentésére hanem kötelességünk azt jelenteni.

Másik :

ha valaki megvádol hogy korrupt vagyok, és nem tudja bebizonyítani miből gondolod , hogy nem vádolom meg becsületsértésért, és nem fogom hitelrontásét elkalapálni. Persze jogi úton!

Előzmény: Palási (76939)
pajaci Creative Commons License 2015.01.22 0 0 76974

A szellőző levegő beáramlását a légbeejtő luk hozza létre, nem az elszívó. Elszívó nélkül is üzemelhet a gáztűzhely jól záródó ablakok mellett, ha van légbeejtő.

Én úgy tudom, a nyílt égésterű kazánoknál kell tiltani a ez elszívót, hogy ne szívja vissza a füstöt a kéményből.

Előzmény: balsa02 (76971)
balsa02 Creative Commons License 2015.01.22 0 0 76973

csak, hogy játszunk kicsit magyartanárosat a törvényalkotóknak:

 

Mit kell reteszelni? A ventilátor üzemét.

Mivel kell reteszelni? A gázfogyasztó készülék üzemével.

 

Mit jelent a reteszelés: lezárás.

 

Tehát, ha a gázkészülék üzemel, akkor reteszelni (le kell zárni) a ventilátor üzemét.

Üzemelhet a a gázkészülék ventilátor nélkül? Igen.

Üzemelhet a ventilátor, mikor a gázkészülék üzemel? Nem.

Előzmény: balsa02 (76971)
balsa02 Creative Commons License 2015.01.22 0 0 76972

Más kérdés, hogy ha az a 80-100 m3 összejön légbevezető nélkül akkor az a ház olyan mint a szita. :-)

 

passzívház blower door tesztjében <=0,6-os légcsere @ 50 Pa az előírás, tehát 80-100 m3/h simán összejön bármilyen házban egy páraelszívó hatására.

Előzmény: Wattocsak (76968)
balsa02 Creative Commons License 2015.01.22 0 0 76971

Én értem, de nem az van odaírva. Tárgyként a ventilátor üzeme szerepel. Vagy én nem tudok magyarul. :)

 

Ha a szellőző levegő beáramlását ventilátor hozza létre, akkor annak üzemét a gázfogyasztó készülék üzemével reteszelni kell."

 

Nincs kecmec, minden gázszelepet áramláskapcsolóra kell cseréni. Eztet mondja a tölvény kéremszépen.

Előzmény: Wattocsak (76969)
nixon70 Creative Commons License 2015.01.22 0 0 76970

Ha van elég víz a rendszeredben, álló szivattyúval tekerd ki a kupakokat.

Miután kifújta a levegőt, tekerd vissza, mert bizonyos esetekben szívhat is be levegőt.

Előzmény: méray (76908)
Wattocsak Creative Commons License 2015.01.22 0 0 76969

Pont fordítva! :-)

Tehát ha a szellőző levegőt ventilátor hozza létre, akkor a gázkészülék üzemét addig le kell tiltani, amíg a szellőztetés nem üzemel. Tehát a gázkészüléket addig nem lehet üzembe helyezni amíg a szellőzés nem biztosított.

Ebből az következik, hogy a páraelszívót akkor üzemeltetheted amikor csak akarod, de a gáztűzhely csak akkor tudod begyújtani ha az elszívás már működik.

Előzmény: balsa02 (76953)
Wattocsak Creative Commons License 2015.01.22 0 0 76968

 Na most a topiktárs ideiglenesen egy   80 - 100 légm3-es padlástérbe engedi és akkor te rohadásról beszélsz .

 

Nem akarok kötekedni, de kormi07 topiktárs nem írt semmiféle ideiglenes bekötésről. Megjegyzem volt már szerencsém látni pár ilyen elrohadt tetőszerkezetet. Nekem mindegy ha elrohasztja engem nem zavar.

Más kérdés, hogy ha az a 80-100 m3 összejön légbevezető nélkül akkor az a ház olyan mint a szita. :-) 

 

Engem az háborít fel, hogy van egy link szerelő és egy link gázmeós produktumát hozzuk példának, mint kovetendőt, hogy nem kell semmivel sem foglalkozni jó az ahogy mi kigondoltuk, oszt jó napot.

Előzmény: Zöldár (76962)
c-stahl Creative Commons License 2015.01.22 0 0 76967

oké :-)

Előzmény: Zöldár (76966)
Zöldár Creative Commons License 2015.01.22 0 0 76966

 Már meg is vette  kormi07 a csőhosszabításhoz az anyagot. Ha lesz ideje tovább viszi a héjazat fölé.

Előzmény: c-stahl (76965)
c-stahl Creative Commons License 2015.01.22 0 0 76965

És milyen előnnyel jár, hogy a padlástérbe nyomja be a párás, zsíros, büdös levegőt?

Illetve ez az előny nagyságrendekkel nagyobb, mint a padlástér (faszerkezet) állagának romlása miatt időben később kialakuló hátrány?

Egyébként vagy jól szellőztetett adott padlástér, vagy nem. Képernyő elől számomra a megnyugtató megoldás a szabad térbe történő kivezetés (illetve ha gázellátást is érinti a dolog, akkor kötelező is).

Igaz én a problémákat nem megoldani szeretem, hanem egyből elkerülni a lehetőségét.

Előzmény: Zöldár (76962)
bag53 Creative Commons License 2015.01.22 0 0 76964

Tudtommal a Topiktárs a 80-as évek villanytűzhelyéről írt, erre értettem a fogyasztást pld. az indukcióshoz képest.

Előzmény: Zöldár (76963)
Zöldár Creative Commons License 2015.01.22 0 0 76963

 Az mit tesz hogy horror ?

 

 

 

  A főfogyasztás a fűtésnél van, majd a meleg víz termelés és végül a konyhai tűzhelyé. Tény , hogy   majd 4 x -es  a villany ára mint a gázé , de  a főzési és  sütési energia nem sok , így egy villanytűzhely fogyasztását ki lehet bírni.

 Ráadásul az un. indukciósoknál meg jó a hőhasznosulás.

 

 

 Valamikor az anyósom volt úgy villanykályhákkal fűtött és 25 -ös izzókat használt. Nem modern égőket, hanem a hagyományos izzókat.

 

 Sokan vaccillálnak a villanyfűtésen , győzködik magukat innen is várnak megerősítést, mert nem hiszik, hogy nagyon drága, mások meg egy villany tűzhely fogyasztásától félnek.

 

 

A kettő nem egy platformon van.

Előzmény: bag53 (76961)
Zöldár Creative Commons License 2015.01.22 0 0 76962

 " Az elszívót ha a padlásra vezetted az nem szerencsés, mert a tetőszerkezet fog elrohadni nagyon hamar az elszívott levegőben lévő szennyeződésektől, kis szerencsével eltüzeled a tetőt.  "

 Remélem nem komoly ez az aggály ! 

 Mo.-on van kb. 4,1 milló háztarás, mondjuk felében gáztűzhely , kerekítsünk lefelé. Legyen 2 millió, jó ha 10 % a rendelkezik konyhai elszívóval, a többi konyhába direkt megy az égéstermék. Tény van és kell lenni légcserének  - már vagy 50 éve.

 Ennek ellenére a magyar konyhák javát terheli a gáztűzhely égésterméke és természetesen a bútorzatot is. Ráadásul a magyar konyhák térfogata eléggé kicsi. Mondjuk az átlag  nem több 25 légm3- nél.

 Na most a topiktárs ideiglenesen egy   80 - 100 légm3-es padlástérbe engedi és akkor te rohadásról beszélsz . Persze lehet beszélni róla ,  csak éppen nem valós probléma.

 

Természetesen a padlástér legyen jól szellőzött.

 

Ez meg sok más szempontból is javallott.

Előzmény: Wattocsak (76934)
bag53 Creative Commons License 2015.01.22 0 0 76961

Ja, meg horror fogyasztása.

Előzmény: balsa02 (76958)
Zöldár Creative Commons License 2015.01.22 0 0 76960

 Az eljárás a következő :

 

 

 Bejelented a szolgáltatónál az igényed a felülvizsgálatra és ők az esedékes mérőcserénél elvégzik.  Ingyenesen.

 A napokban voltam az egyik szolgáltatónál.  Dec. 31 -ig fogadtak bejelentkezést, nagyon sok hátralékuk van, mivel 35 -45 éves rendszerek is várnak felülvizsgálatra.

 A rendszer ellenőrzést végzik, ami 10 évente esedékes. A készülék felülvizsgálatot megkerülték, nem adtak rá egyenes választ. Azokat 5 évente kell felülvizsgálni. Nyilván terhes nekik ez a tevékenység.

 Aztán van a fizetős vizsgálat, de azt 20 alatt nem lehet megúszni  +  még az esetelegesen kreált javítás  költsége. Inkább a 30 .

 A kizárás ? A hibától függően azonnal vagy a hiba elhárítás határidejének lejártakor.

 Az azonnali kizárás elvileg csak a szivárgáskor történik meg.

Előzmény: Törölt nick (76924)
murray Creative Commons License 2015.01.22 0 0 76959

köszönöm. 

jó drága ez a szelep. .-(

örülök ha egy 50esből megúszom ezt az elszivó projektet..hogy ott babusgassak egy tizéves gáztüzhelyet.. érdekes a panelban a kutyát se érdekelte a gáz pedig ott aztán dunszt volt és az elszivó rendszer is rossz volt.

Előzmény: c-stahl (76956)
balsa02 Creative Commons License 2015.01.22 0 0 76958

A villanytűzhely már nem olyan mint a 80-as években.

 

Pedig a vasmagos az igazi... Nem kapcsolgat ki be, szép egyenletes, igaz van egy késleltetése.

Előzmény: C20NE (76957)
C20NE Creative Commons License 2015.01.22 0 0 76957

A villanytűzhely már nem olyan mint a 80-as években. A feleségem is gáztűzhely párti volt, ma már el sem tudná képzelni, hogy ne villanytűzhelye legyen. Nem kell gáz a lakótérbe, nem kell a légbevezetés, elég egy szagelszívó. És nem a feleségem tüdejében landolnak az égéstermékek amiknek kéményben lenne a helyük .

Előzmény: bag53 (76954)
c-stahl Creative Commons License 2015.01.22 0 0 76956
Előzmény: murray (76950)
murray Creative Commons License 2015.01.22 0 0 76955

ja, bejött a gázmérnök a konyhába meglátta a 2 új ablakot kérdezi mikor cseréltem? mondom 2 hónapja.

"kár volt" ennyit mondott.. kicsit sem voltam ideges..

Előzmény: joevagyok68 (76951)
bag53 Creative Commons License 2015.01.22 0 0 76954

"a zasszony meg nem akar villanytűzhelyt. :-("

 

Az enyém se akart, de mostmár imádja az indukciós lapot. :)

Én pont a fentiek miatt cseréltem le a már öregecske gáztűzhelyet.

Előzmény: murray (76950)
balsa02 Creative Commons License 2015.01.22 0 0 76953

"Ha a szellőző levegő beáramlását ventilátor hozza létre, akkor annak üzemét a gázfogyasztó készülék üzemével reteszelni kell."

 

Ha jól értem a magyar nyelvet, akkor a páraelszívó csak akkor üzemelhet, ha a gázfogyasztó készülék is üzemel, tehát nem kell mágnesszelep, de áramláskapcsoló igen. Kedves jogalkotók, tetszettek volna általános iskolába járni.

Előzmény: c-stahl (76949)
t.zsolti Creative Commons License 2015.01.22 0 0 76952

a páraelszívót csak kültérre vezetheted ( nekem a kazánházba van átvezetve azt is meg kell szüntetni , fújjam az udvarra a meleget )

Előzmény: Wattocsak (76934)
joevagyok68 Creative Commons License 2015.01.22 0 0 76951

Inkább rakj vissza egy régi ablakot !  :-)

Előzmény: murray (76950)
murray Creative Commons License 2015.01.22 0 0 76950

valaki lécci árulja el hol a túróba kapok (pesten) ilyen mágnesszelepes elszivót, meg csövet hozzá. ahol a cirkót vettem fűtéstechnikai bolt ott nincs.  multiba nem merek venni.  mondjuk én nem tudom kivinni a tetősík fölé az elszivó kivezetést, kirakom a fal oldalába a tető alá kicsivel és kész. 

azt se tudom mekkora legyen a távolság a falon a légbeejtő meg a elszivó kimenő között..

 

kivagyok már ettől a 20forintos gáztüzhelytől, hogy kétszer kell kilukasztanom a falat miatta meg csilliók, meg kockázat.

a zasszony meg nem akar villanytűzhelyt. :-(

c-stahl Creative Commons License 2015.01.22 0 0 76949

"amennyiben a régi nyílászárókat új, fokozott légzárásúakra cserélik, úgy AT-G60 fali légbeejtő beépítése kötelező" + mágnesszelep, reteszelve a páraelszívóval+ páraelszívó tetősík fölé vezetve.

 

Részletek a 11/2013. (III. 21.) NGM rendeletből:

 

4.3. A gázfogyasztó készülék légellátása, helyiségének szellőzése, az égéstermék elvezetése.

4.3.1. ... Ha a szellőző  levegő  beáramlását ventilátor hozza létre, akkor annak üzemét a gázfogyasztó készülék üzemével reteszelni kell. ...

4.3.2. Égéstermék elvezetés nélküli (nyílt égésterű), „A” típusú gázfogyasztó készülékek helyiségének levegőellátása, szellőzése Az „A” típusú gázfogyasztó készülékek biztonságtechnikai és egészségügyi szempontból kifogástalan üzemének biztosítása céljából gondoskodni kell a helyiség olyan légcseréjéről, ami az égéstermék és a használat során keletkezett egyéb szennyező anyagok koncentrációját az egészségügyi követelményeknek megfelelően korlátozza. A szellőző levegő térfogatárama a gázfogyasztó készülék egyidejű terhelésére vonatkoztatva legalább 12 m3/h/kW legyen.

 

 

 

Előzmény: kormi07 (76932)
halaloszto Creative Commons License 2015.01.22 0 0 76948

ne terjessz teveszmeket. a szendioxid mergezo. 

 

hirtelen ezt találtam neked: http://www.omikk.bme.hu/collections/phd/Gepeszmernoki_Kar/2009/Herczeg_Levente/ertekezes.pdf

 

18. oldal alja.

 

ha a levegőben sok a co2, akkor a tüdőben a vörösvértestek nem tudják leadni a saját széndioxidukat. amíg a vérben sok a co2 a levegőben meg kevés, a tüdőben "magától" a kiegyenlítődés fele megy a dolog, megy kifele a co2. ha a levegőben emelkedik a koncentráció, egyre kevésbé megy a vérből kifele. hiába van oxigén bőven, megfulladsz mert nem vesz fel a véred oxigént mert nincs hova.

 

lásd még apollo13, film is készült belőle. volt oxigénjük bőven, viszont nem volt elég co2 elnyelő moduljuk mert többen és tovább tartózkodtak a leszállóegységben mint amire tervezték.

 

lásd még búvár újralélegző készülék. nem levegőt vagy más direkt lélegezhető gázkeveréket visznek le, mert annak nagyrésze ugye nitrogén vagy más intert gáz, feleslegesen foglalja a helyet. oxigént visznek, és a kilélegzett levegőhoz folyamatosan adagolják, azt lélegzik be. ráadásul a kilélegzett levegőben is van oxigén, az sem veszik el teljesen, szuper mi? azonos méretű palackkal többszörös eltöltött idő. viszont a co2-t el kell tüntetni a kilélegzett levegőből, ezért az újralélegző készülék lényege a co2 elnyelő eszköz.

 

remélem nem volt túl unalmas.

 

Vajk

Előzmény: FOMA (76947)
FOMA Creative Commons License 2015.01.22 0 0 76947

A szén-dioxid nem mérgező, a veszélyt az oxigénhiány jelenti magas szén-dioxid arány esetében. A szén-monoxid a mérgező. Biztosan találsz rá szakirodalmat a neten, de ha visszaemlékszel az iskolai kémia órákra, ott tanultuk.

Előzmény: halaloszto (76946)
halaloszto Creative Commons License 2015.01.22 0 0 76946

hogyapicsaba ne lenne mergezo. nagyonis mergezo. persze nem annyira mint a szenmonoxid, de mondjuk 5% szendioxid tartalmu levegoben nincs sok idod. 

 

Vajk

Előzmény: FOMA (76945)
FOMA Creative Commons License 2015.01.22 0 0 76945

"ti fogtok széndioxid mérgesét kapni"

 

Abszolút kizárt, mivel a szén-dioxid nem mérgező.:-)

Előzmény: Wattocsak (76934)
Palási Creative Commons License 2015.01.22 0 0 76944

"hol vegyek ilyen oldalra kivezetős elszivót meg csővet amibe nem kötnek bele? "

 

 

 Az elszívók a tűzhely felett vannak bizonyos távolságra. Más a villanyé és más a gázé.

 

 

 A hozzávaló cső lehet alumínium un. hajlítható ( korábban Westernform légtecnikai csőnek is nevezték )  és lehet műanyag, pl. nagyon jó a narancssárga   csatorna cső. Nem árt egy visszacsapó szelepet is beleépíteni.

Előzmény: murray (76925)
murray Creative Commons License 2015.01.22 0 0 76943

igen a gázterv maga engedélyezett,  rajta van a főgáz pecsétje.  már így hozta az ember

Előzmény: c-stahl (76926)
Palási Creative Commons License 2015.01.22 0 0 76942

 Mondjad miért szabálytalan vételezés az   kormiónál  van leírva ?

 

 

 

 Készíttetett egy tervet, kifizette, majd a Tigáz ellenőrízte a tervet. Ezután    k. megcsináltatta a terve alapján a projektet, kijött a tigáz meosa  és leellenőrizte a munkát, hogy a terv szerint készült e, mindent rendben talált, megkóstólta a diót. Intézkedett a gázszolgáltatásról.

 

Volt ott elszívó -igaz vita tárgya, hogy meddig vezetjük ki. Nem volt viszont légbeejtő és  mágnesszelep se - mert a terven se volt.

 És erre egy másik muki csak úgy lekapja azt az órát  !

 

 

 

 

"Az meg, hogy milyen mesterrel dolgoztattál azt a munkája minősíti, a tervet és előírásokat semmibe sem vette, remélem azóta elvesztette a gázszerelői igazolványát."

 Ezt honnan veszed ?

 A meós mást állapított meg   - elfogadta, mert a tervek szerint készült  - feltételezem.

Na ezen kéne elgondolkodni !!

Előzmény: Wattocsak (76934)
Zozzantoz Creative Commons License 2015.01.22 0 0 76941

A musttól:)

Előzmény: joevagyok68 (76940)
joevagyok68 Creative Commons License 2015.01.22 0 0 76940

Ezt irta.

vízmelegítő-állókazán megszűnik, másik helységbe kombicirkó felszerel

 

Gondolom zart egesteru....es mg az is lehet az a helyiseg nem is a lakasban van !

 

 fogtok széndioxid mérgesét kapni, 

A gaztuzhelytol ?

Előzmény: Wattocsak (76934)
Palási Creative Commons License 2015.01.22 0 0 76939

 Nagyjából ezeket kell megvizsgálnia   a felülvizsgálat során   : / ha érvényben van még ez   a részletes előírás /

 

 8.1. Törvényben előírt időszakos műszaki biztonsági felülvizsgálat

8.1.4. A műszaki-biztonsági felülvizsgálat során ellenőrizni, dokumentálni és értékelni kell a fogyasztási helyen felszerelt gázfogyasztó készülékek:

- gyártmányát

,- típusát

,- gyári számát,

Gázfogyasztó készülékenként ellenőrizni kell a készülék:

- rögzítését

,- tömörségét szivárgás ellenőrzéssel a készülék elzárót is beleértve

,- biztonsági berendezések (égésbiztosítás, határolók) működőképességét

,- bekötés megfelelőségét, (gumitömlő, tömítés

)- az elektromos bekötés szabályosságát, földelés, EPH meglététét

,- égéstermék elvezető cső szabályos kivitelét, rögzítését,

- égési levegőellátás biztosítottságát

,- égéstermék visszaáramlás esetleges jelenlétét

,- a hőcserélő állapotát megtekintéssel

,- az égő állapotát, égés egyenletességét,

- csatlakozási nyomás megfelelőségét, és az előírásnak megfelelő égőnyomást

,- gázterhelését (ha a fogyasztói berendezés mérőjével megállapítható)

,- hatásfokát műszeres méréssel, (indirekt mérés

)- koncentrikus égéstermék-levegő csővel szerelt „C” típusú készüléknél az égéstermék csőszivárgásmentességét műszeres vizsgálattal, (CO2 mérés)

- környezetét (éghető anyag, bútor közelsége, építészeti átalakítás miatti nem megfelelőség

)8.1.5. A műszaki-biztonsági felülvizsgálat során elvégzett hatásfokméréshez legalább kalibrált mérőműszert kell használni.

.A jegyzőkönyv:- első példánya a tulajdonosnál marad (az épület energetikai audit részeként kezelve)- második példányát a felülvizsgáló köteles 10 évig megőrizni.

 Természetesen találhat  hibát, De minden hibáért azonnal nem zárhatnak ki a fogyasztásból. Vagy ha igen, csak lesz aki megóvja, netán kártérítést kér.  Sőt akinél már minden vesztve van  feljelent pl. korrupcióért.

 És a 'Jóbarát' tanítása alapján nem is kell azonnal megnevezni a korrupció konkrét tárgyát elég annyi hogy  XY  korrupt a felülvizsgálatok során.

 Szóval a szolgáltatók se nagyon örvendenek ennek a munkának.

Azért az az óra lekapkodás/kizárás csak indokolt okok miatt lesz lehetséges.

Előzmény: Törölt nick (76929)
Palási Creative Commons License 2015.01.22 0 0 76938

"Most nem tudom, hogy ez a bizonyos kötelező ellenőrzés, amit tavaly ingyenessé tettek a lakosság részére (vagyis ráterhelték a szolgáltatóra), az ingyenesség továbbra is fennáll-e, tudja valaki?"

 Meg kell kérdezni a szolgáltatót. De szerintem ez púp nekik is a hátukon, mert ha mindent felülvizsgálnának, nagyon ráfizetnének.

 Kizárják a fogyasztót  ? Ok. de akkor egyszer csak nem marad ügyfelük.

Előzmény: Törölt nick (76924)
Dunit Creative Commons License 2015.01.22 0 0 76937

Az egyik rokonnál már négy éve hasonlót írt rá. annyi különbséggel, hogy majd ha lesz nyílászáró csere kell légbeejtő.  Volt elszívó, semmi mágnesszelep.

 Viszont a gázmeós nem a tervet hagyja jóvá, hanem a terv szerint készült munkát.

Előzmény: kormi07 (76932)
Dunit Creative Commons License 2015.01.22 0 0 76936

Azt elfelejtette hozzátenni, hogy később meghosszabbítja és ezzel kivezeti a héjazat fölé.

 Vagy csak ritkán  használja..

 Nem vagy kissé félős ?

Előzmény: Wattocsak (76934)
cat5409 Creative Commons License 2015.01.22 0 0 76935
Wattocsak Creative Commons License 2015.01.21 0 0 76934

Aztán ha szerencséd van akkor kijön egy másik ember a szolgáltatótól és leveszi az órát szabálytalan vételezés miatt.

 

Pár gondolat:

Az elszívót ha a padlásra vezetted az nem szerencsés, mert a tetőszerkezet fog elrohadni nagyon hamar az elszívott levegőben lévő szennyeződésektől, kis szerencsével eltüzeled a tetőt. 

Tehát remélem, hogy én értetem félre az írásod.

Légbeejtővel semmi probléma, mert ha lesz valami gond akkor csak ti fogtok széndioxid mérgesét kapni, ergó a szomszédokat nem veszélyezitek. 

Az meg, hogy milyen mesterrel dolgoztattál azt a munkája minősíti, a tervet és előírásokat semmibe sem vette, remélem azóta elvesztette a gázszerelői igazolványát.

 

Az már csak hab a tortán, hogy még el is dicsekedsz vele. Hát szerintem ez több mint elgondolkodtató.

Előzmény: kormi07 (76932)
halaloszto Creative Commons License 2015.01.21 0 0 76933

nekem hányódik valahol pár soha be nem épített 10-15éves darab. megkeressem?

Előzmény: _szerel (76931)
kormi07 Creative Commons License 2015.01.21 0 0 76932

Tavaly augusztusban csináltattunk gáztervet, vízmelegítő-állókazán megszűnik, másik helységbe kombicirkó felszerel, gázcső nyomvonal módosítás, régi készülékek csövének megszüntetése.

A gáztűzhely fölé rajzolt egy elszívót a tervező(a valóságban nem volt), meg ráírta a tervre, hogy "amennyiben a régi nyílászárókat új, fokozott légzárásúakra cserélik, úgy AT-G60 fali légbeejtő beépítése kötelező", vagy valami hasonlót.

Gáztervet a Tigáz engedélyezte, én feltettem egy használt, működő elszívót, függőleges kivezetéssel a padlástérbe(fa födém, szerencsémre), légbeejtőt nem tettünk, mágnesszelepet sem.

Jött a gázmeós, megnézte az elszívót, megkóstolta a konyhaasztalon lévő dióbelet, majd jóváhagyta a tervet.

Előzmény: c-stahl (76913)
_szerel Creative Commons License 2015.01.21 0 0 76931

Nem azonos a két típus, még áramlástanilag sem, és a a felálló csonkok egymástól mért távolsága is eltérő, kb 5mm-el :-(

Előzmény: c-stahl (76912)
joevagyok68 Creative Commons License 2015.01.21 0 0 76930

Tenyleg megfordult a fejemben, hogy kidobom a gaztuzhelyt...es veletlenul tudni szeretnem..

Es nem ertek semmihez...

Igy se mondod el ?

 

Komolyan erdekel !

De erdekelhet olyat is, aki konvektort szeretne megszuntetni/leszerelni !

Igy se mondod ?  :-) 

Előzmény: c-stahl (76923)
Törölt nick Creative Commons License 2015.01.21 0 0 76929

Isten óvj az ingyenestől!

fizess érte és akkor talán nem egy barom jön aki azonnal kizárat a fogyasztásból ha talál valami hibát!

Előzmény: Törölt nick (76924)
halaloszto Creative Commons License 2015.01.21 0 0 76928

ha meg csobog az egesz, akkor ott a rendszer legmagasabb pontjan mar nincs benne eleg viz...

amugy inkabb ugy szokott elromlani, hogy beragad, meg kell tolni gyufaszallal ovatosan.

 

Vajk

Előzmény: ottakring (76927)
ottakring Creative Commons License 2015.01.21 0 0 76927

A mellékelt képen automata légtelenítők vannak. Ha úgymond betekered, azaz lezárod, akkor a felgyülemlő levegő nem tud eltávozni a rendszerből. Jó félig ki kell tekerni, akkor szükség esetén automatikusan légtelenít. Ha netán víz spriccel ki rajta, akkor megadta magát, lehet cserélni.

Előzmény: méray (76908)
c-stahl Creative Commons License 2015.01.21 0 0 76926

Engedélyezett gázterv?

Mibe kötnének bele, hisz 2010 előtt telepített.

Előzmény: murray (76925)
murray Creative Commons License 2015.01.21 0 0 76925

itt van előttem a gázterv. az elszivó típusra illetve kivezetés módjára (födém vagy oldalfal) sem a rajz nem tér ki sem a leírás.

a mérnök is azt mondta hogy tökmindegy.

 

annyit ír hogy 2010 előtt telepitett elszivó és légbeeresztőt kell mondani. a légbeeresztő meg van adva : Aereco Efa 581  (ablak) vagy a rajzon AIR tonic ATG60 van. ez a fali.  én falit akarok. 

hol vegyek ilyen oldalra kivezetős elszivót meg csővet amibe nem kötnek bele? 

Előzmény: c-stahl (76913)
Törölt nick Creative Commons License 2015.01.21 0 0 76924

Ez így van sajnos, sokan meg szívták, akik ablakcserét végeztek, utána kötelezték őket ilyen kényszerüzemű elszívóra. Nem olcsó a gázelzáró mágnesszelep sem, meg a többi.

 

Tavaly nekem is leste a kéményseprő az ellenőrzésénél, hogy milyen ablak van: hagyományos van, és marad is. Inkább javítom, karbantartom, de a konyhában nem fogok ablakot cserélni.

 

Legutóbb azt hallottam a Híradóban, hogy a kéményseprőnek ezentúl be kell mutatni a kötelező gázellenőrzés jegyzőkönyvét. Pedig azt hittem, majd csak a legközelebbi gázóracserénél fogják kérni.

 

Most nem tudom, hogy ez a bizonyos kötelező ellenőrzés, amit tavaly ingyenessé tettek a lakosság részére (vagyis ráterhelték a szolgáltatóra), az ingyenesség továbbra is fennáll-e, tudja valaki?

Előzmény: joevagyok68 (76920)
c-stahl Creative Commons License 2015.01.21 0 0 76923

Nem írom le.

Csak ismételni tudom magamat, nem érdekel, hogy kinek mi a véleménye az előírásokról, szabályokról.

Leírtam, hogy mik a követelmények. De követelmények miatt ugye nem én vagyok a hibás?.-) (Gondolom ismerjük a mondást: Szólj igazat, betörik a fejed.)

MNeg hátha olvassa ezt a fórumot olyan ember is, aki mondjuk, véletlenül, tudni szeretné, hogy mi az előírás, és nem ért mindenhez...

 

Előzmény: joevagyok68 (76921)
Törölt nick Creative Commons License 2015.01.21 0 0 76922

Ezeket majd szépen át fogják kötni egy dróttal, mint a régi hőkioldós biztosítékokat.

Előzmény: joevagyok68 (76915)
joevagyok68 Creative Commons License 2015.01.21 0 0 76921

Es azt leirnad szivessegbol, hogy mi a feltetele/szabalya ha valaki szeretne megszuntetni a vezetekes gaztuzhelyet ?

Mi a szabalyos ? eljaras/kivitelezes konyhai gazcsap kornyeken ?

 

Amugy meg a pb gazossal mi van ? Arra mi a szabaly ?

Előzmény: c-stahl (76919)
joevagyok68 Creative Commons License 2015.01.21 0 0 76920

Nekem csak az furcsa/nem eletszeru, hogy felkel a paraszt hajnal negykor, inna egy kavet amit tuzhelyen fozne le 4 perc alatt......ezert kell menjen az elszivo kozben.

Előzmény: c-stahl (76919)
c-stahl Creative Commons License 2015.01.21 0 0 76919

Én leírtam, szívességből, hogy mik az előírások.

Ki, hogyan viszonyul ehhez, az az ő dolga.

A FŐGÁZnál ezek szükségesek egy terv jóváhagyáshoz. Tervtől el lehet térni (bizonyos feltételekkel), gondolom ezt is mindenki tudja.

Hogy mit, hogyan vesz át a MEO, az egy másik kérdés.

 

A lényeg, hogy csak akkor kapjon a tűzhely gázt, ha működik az elszívás.

 

Varek1 Creative Commons License 2015.01.21 0 0 76918

Felfele természetesen kb. 50 cm és nem az égig !!

Előzmény: Varek1 (76916)
Varek1 Creative Commons License 2015.01.21 0 0 76917

 Ha már ennyire a biztonság. nálam van egy másik helyen szintén tűzhely. nos ez elektromos szikráztatós begyújtóval van ellátva. Ha az tűzhelyszikráztatóját összekötnék az elszívóval, csak feltűnne egy két balkezesnek, hogy nincs szikra, gyúfázni kell.

 

 

 Elvileg sok mindent lehet kérni, de az előbb utóbb kontraproduktív lesz.

Előzmény: c-stahl (76913)
Varek1 Creative Commons License 2015.01.21 0 0 76916

Szerintem is elegendő az oldalra való kivezetés.

 

 Nálam ráadásul egy régi elszívót is elfogtak, csak annyi volt a terven hogy elszívó a tűzhely felett.

 Igaz a cső nem  túl hosszú, felfele  kb. 50 , oldalra meg 1,5 m.  Van viszont egy probléma . Nincs benne visszacsapó szelep, így télen eléggé bejön a hideg / de télen elzárva - a tűzhely az ablaktól kb. 1 m-re. A kivezető cső , A sárga  csatorna cső , később a konyha falával azonos színűre festve. Így van 4 éve minden probléma nélkül.

 Reteszelés és munka pont mérés , lehet , de nem maximalizmus ez ??

 A régi ablakok miatt a légbeejtőket is megúsztam.

Előzmény: murray (76909)
joevagyok68 Creative Commons License 2015.01.21 0 0 76915

Ezt nem mondod komolyan !!??

A NASAnal nincs ilyen szigorusag ! :-) 

 

Ezt kifejtened bovebben ? Mikor-mit reteszel mi ?

A gázcsatlakozásba be kell építeni egy mágnesszelepet, melyet reteszelni kell az elszívóval.

Ha mindez igaz, akkor ha oknyomozo riporter lennek oly szivesen megneznem annak a lakasat aki ezt kitalalta/beterjesztette/alairta !

Előzmény: c-stahl (76913)
joevagyok68 Creative Commons License 2015.01.21 0 0 76914

76913 hsz. szerint nem !

Előzmény: murray (76909)
c-stahl Creative Commons License 2015.01.21 0 0 76913

Elvileg a terven fel kell tüntetni az elszívó típusát, munkapontját.

A gázcsatlakozásba be kell építeni egy mágnesszelepet, melyet reteszelni kell az elszívóval.

Légbeeresztőt is be kell építeni.


Gázmeora kell egy mérési jegyzőkönyv a páraelszívó üzeméről.

 

De ezeket a tervről is meg lehet tudni.

Előzmény: murray (76909)
c-stahl Creative Commons License 2015.01.21 0 0 76912

Pedig az katalógusban van DN15 (alias 1/2") méret.

Előzmény: _szerel (76911)
_szerel Creative Commons License 2015.01.21 0 0 76911

Köszi, de ez nem az, más a csatlakozási méret.

Előzmény: c-stahl (76905)
halaloszto Creative Commons License 2015.01.21 0 0 76910

a lenyeg hogy eselyes hogy keves a viz a rendszerben. zart vagy nyilt?

Előzmény: méray (76908)
murray Creative Commons License 2015.01.21 0 0 76909

ok, köszi

akkor ezeknek tökmindegy csak legyen elszivó. nagy főzőcskét nem rendezünk simán megvagyunk nélküle csak a gázmúvek miatt kell megcsinálnom. 

Előzmény: joevagyok68 (76907)
méray Creative Commons License 2015.01.21 0 0 76908

Köszönöm szépen a válaszotokat! 

 

Akkor most kitekert vagy betekert (néha kitekerni) állapotban kell lenniük? 

 

Üdv méray! 

joevagyok68 Creative Commons License 2015.01.21 0 0 76907

Szerintem a gázműveknek mind1..

Inkább az elszívó ventilátor lesz "szomorú", hogy többet kell dolgozzon.......meg te hogy kevés/kevesebb levegőt szállít.

Előzmény: murray (76892)
C20NE Creative Commons License 2015.01.21 0 0 76906

10 évig nézegettem egy ilyen konvektor-t és azt szólom, hogy a tapasztalat mást mutat mint a barátod elmélete :-) Az üveg nem azonnal meleg, pontosan látod, mikorra melegszik be, amikor a pára eltűnik róla.

Előzmény: ancoraa (76904)
c-stahl Creative Commons License 2015.01.21 0 0 76905

https://products.ecc.emea.honeywell.com/hungary/pdf/v2200-v2210-v2220-hu0h039hu01r0399.pdf

 

http://www.sns-automatika.hu/index.php?action=productdetailes&pid=354

 

http://www.sns-automatika.hu/arlista/honeywell_ecc_2012_pricelist_hu.pdf

 

 

Előzmény: _szerel (76903)
ancoraa Creative Commons License 2015.01.21 0 0 76904

ehhez a meglatashoz mit szolsz? a baratom ezt mondja: amint az egosor begyullad,kozvetlen az uveg elott,ugye,a latvnykonvektornal, akkor az uveg azonnal meleg,ez egy.ketto: a nagy homerseklet miatt,ami odabent keltekezik,a paranak el kellene parolognia rogton,nem?

_szerel Creative Commons License 2015.01.21 0 0 76903

Segítségre volna szükségem!

Az alábbi fűtés szerelvényt hol lehet megvásárolni?

MNG DN 15 jelzést látom rajta.

 

C20NE Creative Commons License 2015.01.21 0 0 76902

A pára kicsapódásához elég ha az üveg eléri a harmatpont hőmérsékletét, nem kell, hogy a Te fogalmaid szerint "hideg" legyen. Nézz utána, vannak diagramok ahol megnézheted.

Előzmény: ancoraa (76901)
ancoraa Creative Commons License 2015.01.21 0 0 76901

Anniyra az az uveg nem hideg sose,mert 19 foknal lejjebb nem esik a homerseklet a szobaban meg szellozteteskor sem.

Vagy ugy erted,a legelso begyujtaskor decemberben keltekezett az a lecsapodott para?

Előzmény: C20NE (76705)
Brikk stone Creative Commons License 2015.01.21 0 0 76900

 Sziasztok !

 

Van egy előírás, ami kb. egy éve sűrűn napirenden volt. Ez az un. biztonsági felülvizsgálat.

Idézet a rendeletből :

 

" egyetemes szolgáltatásra jogosult felhasználók, akik/amelyek ingatlantulajdonosai részére a Rendelet előírja, hogy a csatlakozó vezetékek és a felhasználói berendezések műszaki-biztonsági felülvizsgálatát – a gázfelhasználó technológia kivételével – az ellátását lehetővé tevő, területileg illetékes földgázelosztótól történő megrendelés útján köteles elvégeztetni a Rendeletben meghatározott időbeni ütemezéssel és gyakorisággal (csatlakozó vezeték esetében 10 évenként, felhasználói berendezés esetében 5 évenként). "

 

 

 Tehát meg kell rendelni a szolgáltatótól, amely előír ezt azt.

 Volt aki már átesett ezen  ?

 

 Nálam a vezetékek több mint 10 évesek, a készülékek közül van ami igen, van ami nem.

 Korábban,   amikor még nem a szolgáltatók végezték, mennyibe került ez ??

halaloszto Creative Commons License 2015.01.21 0 0 76899

pont erre gondoltam, csak nem voltam benne biztos. a klasszik rozsda, voros vasoxid, hematit Fe2O3 az gyengen magneses, sokkal kevesbe mint a vas. viszont a magnetit, magnesvaserc, fekete vasoxid Fe3O4 az nagyon magnesezheto.

 

logikusan hangzik hogy az a fekete trutyi az az utobbi, oxigenszegeny kornyezetben keletkezik. ha szabad levegon hagyod, akkor megbarnul, atalakul.

 

Vajk

Előzmény: tangerine (76894)
hunorok Creative Commons License 2015.01.21 0 1 76898

Kedves mindenki!


BIASI CONTRACT 24S kazánom van és elkezdett rendellenesen működni. Fűtés és melegvíz készítés közben ki-be kapcsolt 5-10 másodpercenként. Nagyon idegesítő, mert a fűtés még elmegy így, de zuhanyozni egy extrém sport volt. Bárhol keresgéltem, mindenhol az elektromos alaplap vagy panel cseréjét javasolták a hiba elhárítására, ami újonnan 40-50ezer Ft.

Mivel még egy hozzászólásban sem láttam az NTC termisztort, mint a hiba forrását megemlíteni én most leírom az én sztorimat. 2 db ilyen NTC szonda van a kazánba építve egy a HMV a másik a Fűtési meleg víz hőmérsékletét érzékeli, gondolom azért, ha eldugulna a rendszer le tudjon tiltani a kazán és ne forralja fel a vizet. Könnyen hozzáférhető helyen van beszerelve mindkettő. A kazán első és oldalsó burkolatát kell csupán eltávolítani. A fűtés előremenő és visszatérő ágának elzárása után a kazánból leürítjük a vizet. A szondákról lehúzzuk a 2 eres kábelt és egy 15-ös csillagkulcs segítségével kitekerjük a szondát. Ilyenkor még jöhet víz ezeken a lyukakon én ezért letakartam az elektromos panelt. Ezután beletekerjük az újat visszatesszük a kábeles csatlakozást(nem lehet elrontani csak egyféleképpen megy rá) visszatöltjük a vizet a kazánba és már készen is vagyunk. Az első bekapcsoláskor nekem többször újra kellett indítanom a kazánt mire az összes levegő kidolgozta magából.

 

Az NTC szonda beszerzése: Első körben 6700Ft+postáért találtam, majd rátaláltam a http://www.tme.eu/hu/ honlapra ahol netto 1011 Ft-ért már hozzá lehet jutni. Én 2 db-ot rendeltem utánvéttel 2 nap alatt kiszállították és 4595 Ft-ot fizettem érte.

 

A termék lapja: http://www.tme.eu/hu/details/b57301k0103a001/homerseklet-erzekelok-ntc-termisztorok/epcos/# 

 

A cserét követően a kazán tökéletesen működik :-)

apa48 Creative Commons License 2015.01.21 0 0 76897

Köszönöm.Tavaly savaztam, szörnyü dolgok jöttek ki belőle.Úgy látszik nem volt elég.

Előzmény: hunorok (76896)
hunorok Creative Commons License 2015.01.21 0 0 76896

Ha vízköves vagy koszos a hőcserélő akkor szokott érdekes hangokat adni az én kazánom.

Előzmény: apa48 (76895)
apa48 Creative Commons License 2015.01.21 0 0 76895

Mitől tud durrogó hangot adni egy kazán müködés közben? Előre is köszönöm.

tangerine Creative Commons License 2015.01.21 0 0 76894

A koromfekete trutyi, amiből a legtöbb van a vízben az magnetit és mágnesezhető!

Előzmény: Tomsojer68 (76890)
tangerine Creative Commons License 2015.01.21 0 0 76893

Én is próbáltam, jól működik, csak hamar megtelt. Végül inkább a meglévő iszapleválasztót (3/4" Flamco) alakítottam át mágnesesre, abban van bőven hely. Azelőtt kb. semmit nem fogott meg, de új mágneses szűrőt meg nem akartam 40 ezerért, ezt meg kidobni. Most 1 nap után elég sok trutyi kijött, azóta nem pucoltam, megvárom a szezon végét.

 

Előzmény: pajaci (76884)
murray Creative Commons License 2015.01.21 0 0 76892

Hello, ilyen gáztüzhely fölé rakható szagelszivó kérdésem lenne.  fűtéskorszerusitést tervezek konvektor helyett cirkó, családi ház. megvan a gázterv a mérnők mondta hogy mindenképp kell a gáztüzhely fölé szagelszivó, kivezetéssel. 

namost én nem szívesen fúrom át a födémet hanem oldalra vezetném ki (kb 3-4m) a ház oldalába a kimenő csövet.  ezt elfogadja a gázművek átadáskor? 

mekkora a max csőhossz ami nekik még jó? vagy ez mindegy? 

milyet vegyek amúgy?  köszi

epitkezes1 Creative Commons License 2015.01.20 0 0 76891

lehet, de a cucc nem csak sima mágnes. olvasd el ezt: http://www.gepeszbolt.hu/forgathato/16503-total-filter-tf1-szr.html

Előzmény: Tomsojer68 (76890)
Tomsojer68 Creative Commons License 2015.01.20 0 0 76890

A rozsda azaz vasoxidok tudtommal nem mágnesezhetők!?

Előzmény: epitkezes1 (76889)
epitkezes1 Creative Commons License 2015.01.20 0 0 76889

az iszap tudtommal a radiátorokból származó rozsda valójában, tehát fémből van, így a mágnes megfogja. az enyém fogott sokat, jön ki a koszos trutymák.

Előzmény: Tomsojer68 (76888)
Tomsojer68 Creative Commons License 2015.01.20 0 0 76888

...és fogott a mágnes valamit?

 

Vélelmezésem szerint ami eldugitotta a szűrőt nem ép mágnesezhető cucc volt!

Előzmény: pajaci (76884)
epitkezes1 Creative Commons License 2015.01.20 0 0 76887

a szar spirovent miatt majdnem savazni kellett a kazánom, az sok píz ám. megúsztam..ha a Te megoldásod is működik, mint ez a drága cucc, akkor a különbség csak az a ménkű sok hambi, amit megveszel a különbözeten. Na, ez a profizmus! :)

Előzmény: pajaci (76886)
pajaci Creative Commons License 2015.01.20 0 0 76886

Inkább csóró :-)

Előzmény: epitkezes1 (76885)
epitkezes1 Creative Commons License 2015.01.20 0 0 76885

profi! :))

Előzmény: pajaci (76884)
pajaci Creative Commons License 2015.01.20 0 0 76884

Én meg az Y szűrőbe tettem egy kis mágnest költséghatékonyság jelleggel.

Előzmény: epitkezes1 (76883)
epitkezes1 Creative Commons License 2015.01.20 0 0 76883

nekem is ez volt..kábé semmire, a szerelőm azt mondta, nem lájkolják. hozott helyette egy mágneses finomszűrőt, az viszont pöpec, kiszedett mindent, no problémó. igaz, az "még olcsóbb".

http://www.akciosgazkazan.hu/termekek.php?category=fernox-magnesesiszaplevalaszto

Előzmény: Tomsojer68 (76880)
pajaci Creative Commons License 2015.01.20 0 0 76882

valamiből a boltosnak is élni kell :-)))

Előzmény: Tomsojer68 (76880)
Gyuriszan Creative Commons License 2015.01.20 0 0 76881

Na, oda kellett volna az iszapleválasztó! :)

Előzmény: Tomsojer68 (76880)
Tomsojer68 Creative Commons License 2015.01.20 0 0 76880

Tudásotok tapasztalatotok alapján a spirovent 1"-os iszapleválasztó  mire jó azon kívül hogy sokba kerül a boltban?

 

Kettő is van a rendszeremben. 1 a fűtőkör viszzatérőben egy pedig a a kazánkör visszatérőben. Ürítéskor néhány mákszemnyi szemcse szokott benne lenni, ennek ellenére a keverőszelep torkában lévő szitaszűrő eldugult az iszaptól.

PetiCsokvaomány Creative Commons License 2015.01.20 0 0 76879

A légtelenítő oldalán lévő csavaroknak mindig kitekerve kell lenniük. Ha be van tekerve, nem tud légteleníteni, mert be van zárva. Nem hiába vannak azok ott, valószinüleg arra emelkednek a csövek.....bár a légtelenítők beépítése elég gyengén van megoldva :S

Előzmény: méray (76877)
István a kováts Creative Commons License 2015.01.20 0 0 76878

  "     a szelepeknél csavaroknak betekert vagy kitekert állásban kell lenni? "

 
 
Azok ott fent légtelenítők. Én néha kitekerem, jön egy kis levegő, majd vissza.

Előzmény: méray (76877)
méray Creative Commons License 2015.01.20 0 0 76877

Sziasztok! 

 

Nagynénémnek gondja van a fűtéssel. 

Cirkója van. 

A gond az, hogy mikor bekapcsol a cirkó, akkor a képen látható szelepek előtt (jobbra) kb. 2 méteres szakaszon bugyog. 

 

Ez mitől lehet? 

 

Tudtommal voltak már cserélve a szelepek. 

 

A másik kérdésem, hogy a szelepeknél a csavaroknak betekert vagy kitekert állásban kell lenni? 

Most per pillanat be van terve (finoman). 

 

A szelepek és a cirkó között kb. 6 méter van. (ha ez lényeges) 

 

Válaszotokat előre is nagyon szépen köszönöm! 

 

 

Üdv méray! 

Csigaföld Creative Commons License 2015.01.19 0 0 76876

Szia Motorolaj!

 

Segíts légy szíves ha tudsz. Nekem még megvan az Electrolux GCB 350 kazánom. Működik, csak néha felforralja a vizet és kikapcsol. Szerelő azt mondja, lehet elég lenne kicserélni a hőérzékelőket. Milyen típust keressek? hol találhatok hozzá alkatrészt? Eddig akinek mondtam milyen kazánom van, azt mondta "olyan nincs is".

Előre is köszönöm a választ.

Előzmény: motorolaj (74275)
t.zsolti Creative Commons License 2015.01.19 0 0 76875

savazva mikor volt a höcsi?

Előzmény: H_Kata (76861)
pajaci Creative Commons License 2015.01.19 0 0 76874

Micsoda szerencse hogy én nem költöttem ilyenekre, csak egy Y szűrőm van. Az első időkben háromszor megtelt iszappal, azóta tiszta.

Előzmény: Tomsojer68 (76872)
tnz Creative Commons License 2015.01.19 0 0 76873
Sziasztok!
Mindenkinek köszönöm a segítséget!
Végül kihívtam a szerelőket, kiderült, hogy el volt dugulva a másodlagos hőcserélő. Kisavazták, megszűnt a hiba.
Tomsojer68 Creative Commons License 2015.01.19 0 0 76872

Olvársak! Heuréka!

 

Megoldódott a fűtőkörben a tömegáram problémám! Nem a keverő 2,1 kvs értéke volt a fő probléma, hanem a keverő torkában lévő szitaszűrők voltak eldugulva.

Pedig van nagy-nagy ülepítőm a pufi, meg 2 spirovent iszapleválasztóm az egyik a kazán a másik a fűtőkörben.

Mindegyik ürítve van, de csak szemcsés cucc amit leválaszt, a finom iszap az ezek szerint megy tovább.

Vibers67 Creative Commons License 2015.01.19 0 0 76871

Ez lenne az!

 

 

 

Ha kedveled azért, ha nem azért nyomj egy lájkot a Fórumért!